成都楼市火热真想-【中海云缦源境】在售产品介绍-房价-配套-联系方式

搜狐焦点乐山站

2025-06-05 12:29:28

购房群

买房如何避坑,加入购房群,看看他们怎么说

立即进群

成都中海云缦源境售楼处电话:028-87777213【营销中心】

☎【置业顾问】:18613205563「微信同步」☎

☎【置业顾问】:19983517822「微信同步」☎

在去库存、严控土地的“火力覆盖”下,短期内,5+2区域的房价、土拍会直线飙升,这是楼市回暖必须要走的路!

真相没有打脸,去年7月,成都房价正式突破10w大关,紧接着是12w,再到3月金融城交子缦华取证,房价天花板来到16.98万/㎡。

土拍更凶猛,从“2”字开头到“4”字起手,仅相隔半年时间,后面还有个起拍价2.02万/㎡的茶厂地块,虎视眈眈!

本以为随着成都新房、二手房价格实现6连涨,市场或将进入横盘期。(国家统计局70城房价数据)

万万没想到,近期,温江、郫都等二圈层同样出现了普涨行情,新房单价2万+轻轻松松,2.5万/㎡也不在少数,并且还卖得贼好,甚至有种“手慢无”的既视感!

2t2纯板式独立光厅入户

法务区地铁6号线百米直达

双TOD|万方法务岛绿廊

基础信息

总占地:93亩

总户数:871户

面积区间:100-103-112-132

楼层:7-17层

梯户比:1T2、2T2、2T4

容积率:2.0

交付时间:预计25年底

装修标准:2950元

物业:中海物业

坐享天府CBD&天府中央法务区双重区域优势

建面约100-132㎡公园艺境臻宅,首发成都

中海新南图 天府东翼2.0战略启新

2019年,以天府CBD人居地标-天府里启幕天府东翼1.0

2022年,于新川、麓山、中央法务区四子成川,全面焕新商务区板块人居风貌

中海云缦源境坐拥双区高能级配套,精粹生活圈,麓湖公园区-中央法务区-天府CBD聚合式铁三角,更有国际会议中心、中国西部国际博览城等世界级文化交流配套,大悦城等高阶商业配套,匹配您的丰盛生活。

【高阶商业】

天府大悦城、天府和悦广场、麓湖水镇、麓湖伊藤店(在建中),满足大型购物及居家消费需求,享受便捷生活。

【健康医疗】

近享四川省第二人民医院、四川天府新区人民医院(在建中)、四川大学华西天府医院等健康医疗

【全龄优教】

香山k12教育组团、成都市实验外国语学校、天府三中、麓山国际光亚学校等0-18岁全系教育资源丰富。

【项目规划】

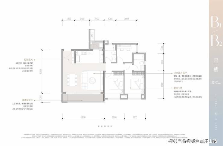
A户型 建面约100㎡三室两厅两卫

成都中海云缦源境售楼处电话:028-87777213【营销中心】

☎【置业顾问】:18613205563「微信同步」☎

☎【置业顾问】:19983517822「微信同步」☎

___欢迎来电咨询丨专业一对一热情服务丨看房需提前预约

——如有侵权请联系我们删帖——

温馨提示:为了节约您的等待时间,看房请提前致电售楼处预约!!!

全部

相关资讯

报名成功
稍后会有专业的置业顾问联系您
返回楼盘

频道导航

返回首页

看房小程序

APP下载

电话拨通后,请您手动拨打分机号

确定拨打电话

电话号码:

分机号:(可能需要拨分机号)