成都【华侨城七十二院】楼盘详情-最新房源查询-营销中心

搜狐焦点乐山站

2025-09-05 13:12:11

购房群

买房如何避坑,加入购房群,看看他们怎么说

立即进群

华侨城七十二院【营销中心】:028-87777213「销售热线」

【置业顾问】:18613205563「微信同步」

【置业顾问】:19983517822「微信同步」

2025年7月,成都新房价格环比下跌0.2%,同比上涨0.1%,成为全国仅有的5个同比转涨城市之一。

而二手房价格环比继续回落,环比下跌0.4%,同比下跌0.3%。

市场呈现“新房企稳、二手承压” 的结构性特征。

同时,8月20日,央行公布新一期LPR报价:2025年8月20日贷款市场报价利率(LPR):1年期LPR为3.0%,5年期以上LPR为3.5%,以上LPR在下一次发布LPR之前有效。

虽然仍然保持不变,不过根据多家中小银行密集发布存款利率调整公告来看,新一轮的降息,已经在路上了!

洛带古镇4A级景区|现房独栋合院

国风建筑|五大建筑派系|一户一栋

项目概述:

洛带华侨城·七十二院,东邻龙泉山城市森林公园,北接洛带古镇4A级景区,西毗邻洛水湿地公园,南望千亩蔚然花海。

该项目承袭了客家人五次大迁徙的文化传承,精选了闵、海、川、晋、徽五大中国建筑派系,展现了中国传统建筑艺术的独特魅力,街巷与院落的空间变化相得益彰。

基础信息:

项目位置:成都市龙泉驿区洛带三峨街999号

占地面积:约200亩

物业公司:华侨城物业(集团)有限公司成都分公司

水电气收费:水4.3元/吨,电0.79元/度,气2.59元/立方米

建筑面积:200—500平

总价区间:300万—1000万(特价房178万起)

赠送花园面积:80-300平

容积率:0.65

物业费:5元/㎡

现房出售,即买即装修,水电气俱全。

项目区位图:

周边配套:

交通设施:

项目周边交通便利,如成都五环路(成环路)、成洛大道、渝蓉高速、蜀都大道等城市主干道,同时还有219路、850路、K7快速公交等十余条公交线路。距离双流机场和天府国际机场约40公里,40分钟内即可轻松抵达全球各地。

生态环境:

周边生态资源丰富,龙泉山城市森林公园、洛水湿地公园和4A级景区蔚然花海近在咫尺。

教育资源:

周边有龙泉驿区洛带第二幼儿园、洛带小学、洛带中学以及在建的成都康礼·克雷格公学。

医疗设施:

医疗资源配套齐全,包括龙泉驿区第二人民医院、洛带公立卫生院、龙泉驿区第一人民医院、龙泉驿区妇幼保健院以及四川省人民医院东院。

休闲娱乐:

毗邻4A级景区洛带古镇和中国艺库商业街,提供多种休闲选择。

产品介绍:

闵派:自持商业院落,面积范围30-300㎡,打造城市商业步行街

海派:自持商业院落,面积区间300-3000㎡,打造中法特色风情街

川派:在售合院,面积段200-500㎡,均价约15800元/平,总价范围300-900万

晋派:在售合院,面积范围400-600㎡,均价约17800元/平,总价区间680-1000万

徽派:面积区间210-350㎡,均价约15000元/平,总价段300-520万

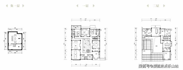
户型鉴赏:

川派:明月府 9-2#(建筑面积373.17㎡,实际面积约513㎡)

川派:南风院 6-3#(建筑面积369.13㎡,实际面积约513㎡)

川派:千虹院 12-5#(建筑面积448.24㎡,实际面积约633㎡)

川派:虹霓院 13-2#(建筑面积370.09㎡,实际面积约514㎡)

【营销中心】:028-87777213「销售热线」

【置业顾问】:18613205563「微信同步」

【置业顾问】:19983517822「微信同步」

温馨提示:专业一对一热情服务,为了节约您的等待时间,看房请提前致电预约!!!

免责声明:

以上内容仅作为邀约邀请,涉及的图片为部分区域实拍图和美学畅想图,具体内容请以现场公示和合同约定为准;本文部分资料、部分图片来源于网络,如有侵权请联系我们删除。

全部
报名成功
稍后会有专业的置业顾问联系您
返回楼盘

频道导航

返回首页

看房小程序

APP下载

电话拨通后,请您手动拨打分机号

确定拨打电话

电话号码:

分机号:(可能需要拨分机号)