成都 隆科熙悦【营销中心】:028-87777213「销售热线」
【置业顾问】:18613205563「微信同步」
【置业顾问】:19983517822「微信同步」
项目为温江稀缺现房,得房率120%,交房即拿证。
位置优越,地处江安河畔,临温江高速 交通四通八达,刚需客户温江优选。

🚄 立体交通路网🚄
三横三纵三地铁:快速串联全城,延伸城市生活空间
•三横:成温邛高速、光华大道、花都大道
•三纵:绕城高速、南熏大道、凤溪大道
•三地铁:地铁17号线(市五医院站1.8KM)、地铁4号线(南熏大道站1.5KM)、地铁远期规划28号线(长安桥西站)
🏫优质教育资源🏫
名校荟萃,嫡传城芯人文气息
•幼儿园:公平街办安居幼儿园、公平星星幼儿园、爱仁堡幼儿园、温江实验幼儿园
•小学:温江区东大街第二小学(根据2023年区域划片合江路合江社区均为东二划片范围)、温江区东大街第一小学、东二长安路校区,成实小
•中学:温江中学、温江二中、成都实验外国语学校、七中冠城学校、绵阳东辰、七中菁才(未建成)
•大学:西南财经大学、成都中医药大学、四川农业大学、成都师范学院、成都交通职业技术学院、成都农业科技职业学院
医疗
🏥完善医疗护航🏥
立体康疗机构,护航四时健康
•5分钟车程——三甲医院“成都市第五人民医院”+温江区中医院+温江区人民医院
•10分钟车程——国际医学城:囊括了“八一康复中心”、“华西医院”、“美国阜外心血管医院”等专科性医院
商业
🌇 醇熟生活配套🌇
成熟商业环伺,点亮城芯日常
5分钟车程——
商业配套:珠江广场+新光天地+伊藤洋华堂;
生活购物:盒马超市+家乐福+永辉超市;
五星酒店:费尔顿凯莱+珠江凯悦酒店+皇冠假日智选酒店。
项目周边——“合江新城”板块内城市更新,规划6大特色市井商业配套
生态
🏞绝版生态配套🏞
城芯天赋谧境,惬享宜居生活
•江安河滨河公园
•280亩温江公园
•350亩光华公园
产业光华中心,集购物中心、影院、体验式商业、写字楼等业态于一体的城市综合体。但与其他城市综合体不同,其最大特色在于依托温江区主导发展产业,打造“健康服务业”高端企业孵化楼宇。
【项目总平】

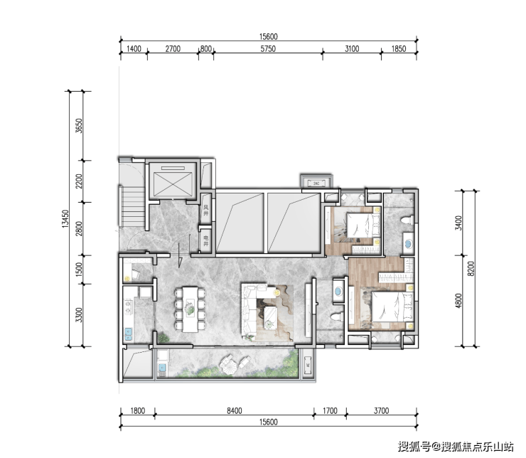
【户型鉴赏】【约89-125㎡无界平层,明星户型推荐】
B2户型-建筑面积113㎡户型亮点

B1户型—建筑面积约113㎡户型亮点

A户型—建筑面积约125㎡户型亮点

成都 隆科熙悦【营销中心】:028-87777213「销售热线」
【置业顾问】:18613205563「微信同步」
【置业顾问】:19983517822「微信同步」