成都 新川雅境【营销中心】:028-87777213「销售热线」
【置业顾问】:18613205563「微信同步」
【置业顾问】:19983517822「微信同步」
又出新政
自2026年1月1日至2027年12月31日,对出售自有住房并在现住房出售后1年内在市场重新购买住房的纳税人,对其出售现住房已缴纳的个人所得税予以退税优惠。其中,新购住房金额大于或等于现住房转让金额的,全部退还已缴纳的个人所得税;新购住房金额小于现住房转让金额的,按新购住房金额占现住房转让金额的比例退还出售现住房已缴纳的个人所得税。
1 高新南新川核芯,实景现房即买即享
2 地铁6号线新通大道站,出行快人一步
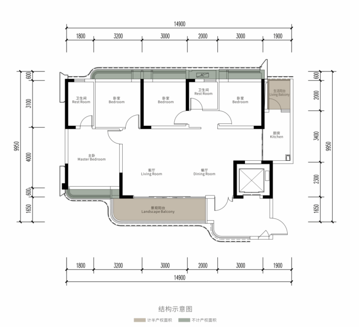
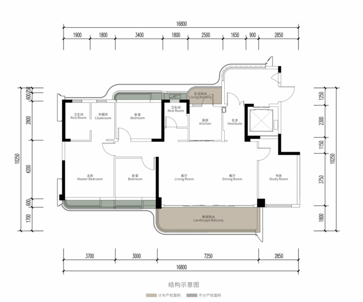
3 2梯2户板式大宅,通透采光超给力
4 户户超大入户光厅,超高得房率
5 双滨河三公园,龙湖物业贴心守护
【公园城市示居住范本区】
新川总面积10.34平方公里,配套17.5%的公园绿地,为区域业主提供优质的公园住居体验,也是未来城南高新区最宜居的板块。
交通
地铁:6号线新通大道站(约200m);主要道路:绕城(四环)、麓山大道(五环)、天府大道、梓州大道、蓉遵高速
优质的教育资源 教育无忧
区域内共规划24所公立学校、包括13所幼儿园、7所小学、2所中学、2所九年一贯制学校等 ,1所私立学校 金苹果锦城一中(K12),教育资源丰富,年龄段全覆盖;
医疗配套(三甲公建):四川省中西医结合医院高新医院、四川省医院高新分院(规划)
商业
3号邻里中心下楼即达,华润·时光里、华润·万象天地(在建)、圆中商业广场(在建)等综合配套举步直达;
3号邻里中心:融入新加坡第四代“邻里中心”的核心理念,通过互联网+的社区应用(交通、养老、医疗、幼托等),提升精细化公共服务品质
开发商成立于2009年8月,专业从事房地产开发与经营管理的房地产企业,秉承“诚信为本,求实创新”的一贯方针,公司坚持自有资金开发和修建,不做开发贷款,此次也是全资拿地。
建筑与园林:建筑采用大面定制铝板+玻璃幕墙,呈现出现代美学风格。园林方面,内部以高品质景观设计打造约24000平方米生态环境,有超大楼间距。
物业服务:龙湖物业———国家一级物业管理资质目将由龙湖物业担任,龙湖是国内第一家公开发布管理和服务标准的物业企业,被誉为“中国物业管理第一品牌”。业主满意度连续十四年超过90%以上,4度荣膺全国住宅满意度综合第一。龙湖物业以4500+条服务细则,‘事无巨细、无微不至“地完美诠释着”善待您一生“的理念。


成都 新川雅境【营销中心】:028-87777213「销售热线」
【置业顾问】:18613205563「微信同步」
【置业顾问】:19983517822「微信同步」