成都天投中海天府合印售楼电话-最新项目情况-户型大全

搜狐焦点乐山站

2025-07-21 09:08:00

购房群

买房如何避坑,加入购房群,看看他们怎么说

立即进群

【营销中心】:028-87777213「销售热线」

【置业顾问】:18613205563「微信同步」

【置业顾问】:19983517822「微信同步」

温馨提示:专业一对一热情服务,为了节约您的等待时间,看房请提前致电预约!!!

免责声明:

以上内容仅作为邀约邀请,涉及的图片为部分区域实拍图和美学畅想图,具体内容请以现场公示和合同约定为准;本文部分资料、部分图片来源于网络,如有侵权请联系我们删除。

【核心价值】

天投中海·天府合印位于天府前湾核心区,占地70亩,容积率2.5,打造1052户精装现房社区。项目主推92-133㎡三至四房,单价1.8万/㎡起,即买即住,坐拥青岛路+昌公堰双TOD,央企天投与中海联袂开发,定义天府新区首置品质标杆。

【通勤数据】轨交路网实测

地铁覆盖

6号线沈阳路站丨步行800米

昌公堰TOD(2025年建成)丨直线1.2公里

主干路网

夔州大道丨车行500米快速接入

天府大道丨2公里直达金融城

双机场距离

双流机场约26公里(经蓉遵高速)

天府机场约36公里(经天府国际机场高速)

【产品力解析】

1. 基础指标

户型分布

92㎡三房:总价约165万起,首置优选

133㎡四房:横厅设计+双套房,改善标杆

梯户比:2T4户,14-18层低密小高层

精装标准:对标中海高端系,含三大件(新风+地暖+智能家居)

2. 设计亮点

双央企品质:天投集团+中海地产联合开发,现房零风险

酒店式归家:6米挑高大堂+三重入户礼序,造价超600万

【配套实测距离】

法务资源

中央法务区(省高院/市中院)丨车行1公里

生态商业

天府森林带丨项目北侧零距离

天府大悦城丨车行3公里

教育医疗

天府三中/香山小学丨步行1公里

华西天府医院(三甲)丨4公里

【三大核心优势】

双TOD红利:成都罕见双TOD(青岛路+昌公堰)覆盖,增值潜力明确

现房销售:即买即住,规避期房交付风险

装标超值:对比周边2.2万+竞品,性价比突出

约92m²舒居三房 尺度升级够硬核

约4.5m玄关进深,可拉通打造多功能收纳体系;· 约2.5m餐厅进深,大尺度宴请空间,出入动线流畅阔绰;· U型大厨房,约5.9m操作台面,烹饪储物更自在· 主卧尺度升级,2m大床轻松放下,可容纳进深60cm衣柜,设置转角飘窗;· 双面宽观景阳台,约5.2m大尺度采光,采光通风更加优良;

约113m²横厅三房 SPACE+空间越级

约45m²动区空间,餐客厅一体LDK横厅设计,动线灵活多样;· U型布局明厨,依人性动线设计,便捷高效下厨体验;· 约25m²阔绰主卧,配备步入式衣帽间/独立采光卫浴/瞰景大飘窗;· 约6.7m双面宽景观阳台,直面中庭景观

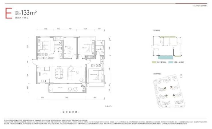
约133m²精致四房 四室两厅两卫 坐拥大平层优势

【营销中心】:028-87777213「销售热线」

【置业顾问】:18613205563「微信同步」

【置业顾问】:19983517822「微信同步」

温馨提示:专业一对一热情服务,为了节约您的等待时间,看房请提前致电预约!!!

免责声明:

以上内容仅作为邀约邀请,涉及的图片为部分区域实拍图和美学畅想图,具体内容请以现场公示和合同约定为准;本文部分资料、部分图片来源于网络,如有侵权请联系我们删除。

全部
报名成功
稍后会有专业的置业顾问联系您
返回楼盘

频道导航

返回首页

看房小程序

APP下载

电话拨通后,请您手动拨打分机号

确定拨打电话

电话号码:

分机号:(可能需要拨分机号)