VIPline:400-8787-098 转 4444【贵宾热线】
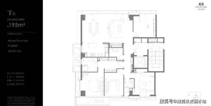
完整户型图如下:

VIPline:400-8787-098 转 4444【贵宾热线】
洋房户型图
VIPline:400-8787-098 转 4444【贵宾热线】
项目最新效果图如下:
VIPline:400-8787-098 转 4444【贵宾热线】
室内设计效果图如下:
VIPline:400-8787-098 转 4444【贵宾热线】
2017年7月,保利地产以49.71亿元拿下黄浦江边、规划建筑面积逾20万㎡的住宅项目50%股权,也就是今天的保利世博滨江项目。
VIPline:400-8787-098 转 4444【贵宾热线】
这块地块就在曾经的世博村位置,地上建筑面积达到16.73万平方米,项目的总建筑面积(加上地上车库)则增至20.85万平方米。
VIPline:400-8787-098 转 4444【贵宾热线】
保利世博项目就近拥揽世博-前滩-徐汇滨江商圈资源,再加上稀缺的滨江岸线江景景观,最大程度利用了江景资源,已让市场备受期待。
VIPline:400-8787-098 转 4444【贵宾热线】
建筑外立面,材质都是以大面积的玻璃为主,非常有利于充分采光,也能更好的欣赏江边风景。
VIPline:400-8787-098 转 4444【贵宾热线】
项目产品:建面约170-250㎡,3-5房。容积率2.0,绿化率35%。占地8.37万方,总建面约27万方;包括5栋22层住宅、1栋21层住宅、1栋19层住宅、1栋15层住宅、6栋8层住宅。西侧沿江布置6栋8层住宅(其中靠世博大道5栋为保留建筑),东侧沿雪野路布置19~22层住宅,形成西低东高两道天际线,最大程度利用江景资源。
VIPline:400-8787-098 转 4444【贵宾热线】
交通配套:周边路网成熟两桥两隧四地铁(南浦大桥、卢浦大桥、西藏南路及打浦路隧道、6、7、8、19号线);北侧比邻世博洲际酒店、南侧比邻上海地产集团、西侧比邻世博大道、东侧比邻雪野路。
VIPline:400-8787-098 转 4444【贵宾热线】
商业配套:近享世界级滨江艺术、五国金砖银行、央企总部,前滩商业等国际级配套。
VIPline:400-8787-098 转 4444【贵宾热线】
教育资源:项目周边浦东南路小学、上海市上南中学、上南中学东校邹平校区、上海市南洋中学、上海市第八中学、上海纽洋大学等。
VIPline:400-8787-098 转 4444【贵宾热线】
医疗配套:上海市浦东新区浦南医院、上海儿童医学中学、第九人民医院浦东分院、上海交通大学医院附属瑞金医院等。