🌈中海·天空之境售楼处电话☎️400-8787-098转接8999(营销中心)
🌈中海·天空之境营销中心电话:☎️400-8787-098转8999【营销中心】
🌈温馨提示:拨打400电话,听到嘀声后,输入分机号8999即可!中海·天空之镜,这应该是今年城关最火、最受大家期待的一个新盘了。
从5月拿地、项目亮相、再到展厅开放、产品发布,不到三个月时间,一路高歌猛进!
发现没,只要这个项目一有动静,总能瞬间引发市场关注。
自从8月初展厅开放、项目开启蓄客以来,一个月时间,300多组改善家庭义无反顾地锁定了这个央企四代宅。
这才是真正的未开先火!
而且,最近还有个有意思的现象,总有读者在我们后台发私信询问:“中海·天空之镜到底啥时候开盘?开盘价预计能到多少?”……
我们也真切感受到,这些手握充足预算的改善客,跃跃欲试的迫切心情了。
01
Lanzhou
紧急预告!中海·天空之镜营销中心开放在即!
关于大家最为关心的开盘时间,我们获得的一手消息是:项目营销中心即将开放,开盘或在九月底!

相信通过今年中海双境项目的验证,大家对中海速度已经有了直观感受了。
此番消息透露中海·天空之镜营销中心开放、首开一系列节点,想必自然也是板上钉钉的事情。
相信用不了多久,我们就能实地感受到中海·天空之镜献给城关的,海派生活的态度和精髓了。
当然,除了开盘时间,还有很多人最关心的其实是它的售价。
开诚布公地说,我们也没有拿到项目不同户型明确的开盘价格。
但其实,我们可以通过中海·未来之境,以及城关各个区域二手房的价格,再结合项目的产品力,来做一个推导。
02
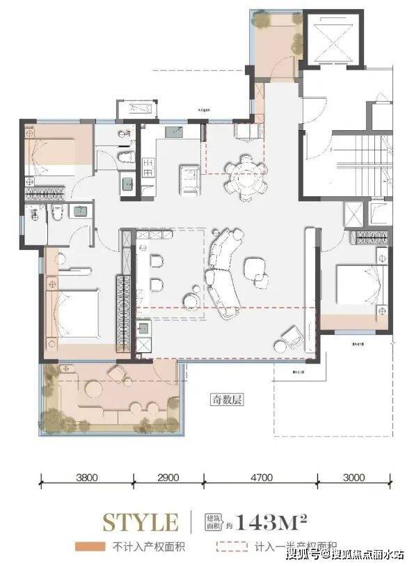
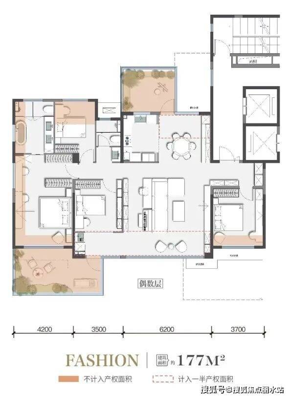
这个宝藏三室,拥有约11米的阔尺南向开间,且所有房间开间均不低于3米!
这个指数,是120㎡以下的产品,远远无法实现的。
再加上奇偶错层设计,空中庭院挑高可达到6-6.2米,这个尺度完全可以消弭掉传统露台可能存在的压抑感。
既能保证通风采光的居住舒适度,又实现了推门见绿、垂直森林院墅的生态体验。
建面约143㎡、177㎡的户型还做到了南北双露台。过去很多住别墅的人都说,院子老人要种菜、孩子要玩、女主人要种花……
一个院子给谁用?中海·天空之镜解决的就是这部分生活矛盾。
而且,大户型都设置在东西边户,2T3的配置,更具专属性。
庭院分户隔墙用的是通高实体墙,隔绝干扰目光;外挂横向格栅挑板,有效避免上下层视线,最大化保证家庭隐私。
143㎡户型的南向开间能达到约14.4米,完全优于市场上其他同面积段的四代宅产品。
177㎡的产品南向开间更是来到了约17.6米,还有近40㎡的套房主卧,这个尺度完全超越200多平普通豪宅的指数。
即便是116平的普通住宅,其南向开间也能达到约10.6米,同时实现约7米的双联观景阳台,以及约24.5㎡小家化主套+双次卧强大配置。
对比区域内同面积段开间不到8米的普通二手房,这完全是质的跃级。
除了美学立面、超配会所、架空层空间革命等,这些一眼就能看出差别的外显维度外,四代宅的产品较量,往往更多地集中在户型的设计和对生活细节的维护中。
再加上中海·天空之镜主张的引园入家,园林+空中庭院的立体垂直森居、凝萃海派臻奢生活方式的场景化打造、兰州在地文化的现代转译与未来生活方式的预演……
🌈中海·天空之境售楼处电话☎️400-8787-098转接8999(营销中心)
🌈中海·天空之境营销中心电话:☎️400-8787-098转8999【营销中心】
🌈温馨提示:拨打400电话,听到嘀声后,输入分机号8999即可