✅武汉天创贝好家·元萃
✅售楼处电话:400-8787-098接通后输入5555【营销中心电话】
✅温馨提示:拨打400-8787-098电话,听到嘀声后,输入分机号5555即可。
✅网上售楼中心〢尊享售楼处优惠服务〢欢迎来电咨询预约案场内部销售人员〢
✅楼盘项目全面介绍,包含楼盘简介、售楼电话、小区图片、区位优势、交通、周边商业配套、户型图等楼盘详情
小区大门/主入口
小区大门以西方形态为载体,赋予东方意境,巧妙转译仪门文化元素,灵感源自巴厘岛天空之门,萃取世界建筑经典线条,重塑现代美学新风尚。

门前纯古铜鎏金水波纹,由数十位非遗匠人历经80000锤非遗錾刻淬炼而成。以西式造型,融入东方意境,非遗匠人手工凿刻“引水琢玉”,匠心独运。


园林景观
园林景观上萃取山水精髓,匠筑叠水雅境,汲取《高士观图》神韵,融汇姑苏园林雅趣,精心雕琢中央水景。巧设全景会客厅,立于武昌核心,柔化自然与都市的边界。以门、台、水、亭四景成轴,借鉴古法匠艺于中央水景,巧设全景会客厅。甄选朴树、乌桕等珍稀名木,引入樱、桂、枫、梅等四季花木,营造立体多维的水景园林。










小区会所/泛会所
社区尊奢会所「风雅集」,汇聚私宴厅、会客厅、行政酒廊、棋牌室、室内桌球、KTV等多元空间,尽享风雅生活。










“铂金仓”中央车站式大厅,双向独立车道设计,兼具仪式感与实用功能。

产品规划与户型设计
该项目规划该地块占地面积达11771.79㎡,计容建筑面积为23499.17㎡,其中住宅建筑面积 20856.92㎡,容积率2.0,项目共规划159户,建筑面积127-140-170㎡。

建筑面积约127平方米,四室三卫,配备独立电梯厅,南向拥有宽敞阳台及大型花池,其余卧室与厨房均设飘窗,北向多功能空间,预留空调位及设备平台,可优化利用,赠送面积丰富。


建筑面积约142平方米的四房三卫户型:边户配备独立电梯前室,南向拥有超大阳台与大花池,两个卧室更可享受双面飘窗设计,空间利用率极高;北向多功能空间同样设有飘窗、空调机位及设备平台等优化配置。


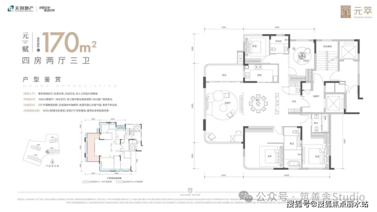
建面约170平米的四房三卫户型,专为终极改善需求打造,实现三面采光设计。约80平米的巨厅全景舱,远超武汉部分顶豪250多平户型仅约60平米的转角厅面积,堪称同级中的佼佼者。

建筑立面
建筑立面以现代公建化手法为基底,巧妙融合金属铝板、玻璃幕墙与天然石材,萃取千年“仪门”及贡院古建筑拱门的经典元素,并融入国际前沿审美中的扎哈曲线立面设计,完美呈现国际风范与东方神韵交织的建筑美学。


✅武汉天创贝好家·元萃
✅售楼处电话:400-8787-098接通后输入5555【营销中心电话】
✅温馨提示:拨打400-8787-098电话,听到嘀声后,输入分机号5555即可。
✅网上售楼中心〢尊享售楼处优惠服务〢欢迎来电咨询预约案场内部销售人员〢
✅楼盘项目全面介绍,包含楼盘简介、售楼电话、小区图片、区位优势、交通、周边商业配套、户型图等楼盘详情