✅武汉天创贝好家·元萃
✅售楼处电话:400-8787-098接通后输入5555【营销中心电话】
✅温馨提示:拨打400-8787-098电话,听到嘀声后,输入分机号5555即可。
✅网上售楼中心〢尊享售楼处优惠服务〢欢迎来电咨询预约案场内部销售人员〢
✅楼盘项目全面介绍,包含楼盘简介、售楼电话、小区图片、区位优势、交通、周边商业配套、户型图等楼盘详情
武昌区二环内少有的低密社区,总高10-13层,都是小高层。
关于这个楼盘的户型面积最准确的是:127平,130平(比127稍微大一点,户型不同),然后是140平和170平。一共4种户型。
武汉贝好家的首秀
主打建面约127-170平户型,宣传得房率高达117%
天创元萃4栋住宅中,除了1-1#、3-1#为一梯一户布局之外,其余楼栋均为两梯两户布局,换句话说,项目所有房源都能实现专梯专户,拥有独立的电梯前室。
朝向上,天创元萃1、2号楼为偏东南朝向,3、4号楼则偏西南。
项目主打建面约127-170平户型,目前公示了三个户型图,分别是127、142、170平
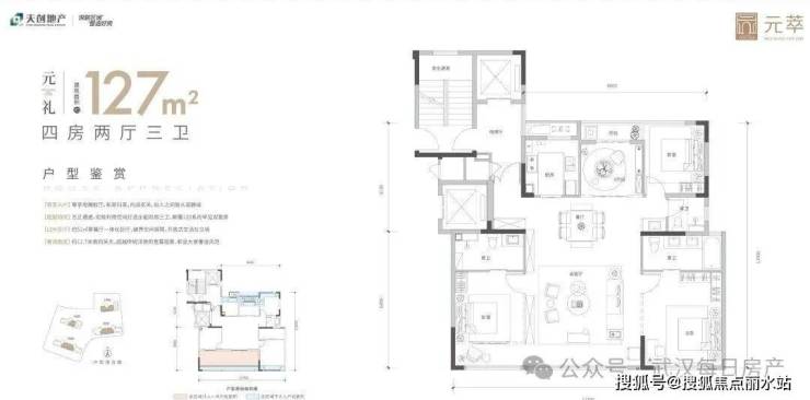
建面约127平米户型
4栋楼中都有127平的户型,数量是目前已公示的三个户型中最多的,并且绝对面积不大,总价门槛会相对另外两个户型低一些,算是武昌下半年相对较少的小面积产品。
(武昌区目前有120平左右户型的项目目前仅有武昌源著、中海东湖玖章、建发璟玥、龙湖武车项目)
户型本身非常的方正,阳台外带花池,拓展面积就比较多,据宣传,加上电梯厅,这一户型优化后的得房率高达约117%,放在三环内四代宅里面来看,这个得房率绝对是数一数二的了。
127平做成了四房三卫双套房的设计,功能性超级强,三代同堂或者二胎家庭也非常适合;南向面宽12.7米,采光面也是比较充足的,缺点是有个套房内的洗手间为暗房,除此之外,其他方面都很不错。
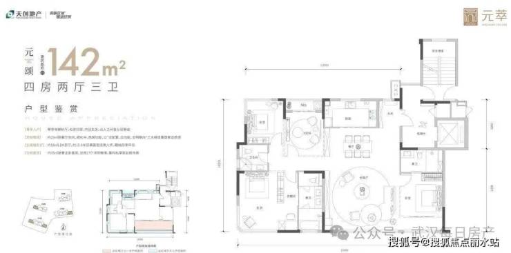
建面约142平米户型
这一户型的得房率同样约117%,相当出彩。
分布于2、3、4号楼的端头边户,房源数量也还算相对较多的。
南向面宽约15.9米,南面同时实现双套房+大横厅,舒适度更高;
主卧套房面积约35平,空间相当的阔绰,并且采用了转角窗+曲线外立面,观景视野、光照效果都更好。
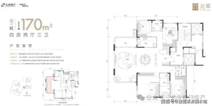
建面约170平米户型
这一户型优化后得房率约106%,略低于前两个户型,但放在核心区,依然是相当炸裂的存在。
同时,这也是项目最大面积户型,仅分布于2号楼最西端,房源数量是最少的。
客厅采用270度全景舱设计,非常适合观景的设计,并且南向主卧套房也采用了转角窗设计,观景面再次延伸,配合2号楼西头的位置,可三面俯瞰小区园林+南瞰市政公园,景观视野一绝。
缺点是房源相当稀少。
三个户型设计的都相当不错,并且106-117%的得房率在核心区属于no.1的存在,产品相当能打。
01
天创元萃。
10月7日,天创元萃武昌滨江双展厅开放,预示着该项目正式进入推广阶段。
据了解,该项目位于解放路与中山路交汇处,属于武昌内环滨江板块。
就建筑参数而言,该项目占地面积约11771.79㎡,计容建筑面积为23499.17㎡,其中住宅建筑面积 20856.92㎡。
02
天创元萃的开发商,不止天创。
天创元萃地块为湖北天创以34150万元,楼面价14531元/㎡,溢价率30.6%,
于5个月前拍得。
而一个月前,该项目公司发布公告称,贝好家入股了天创元萃30%股权。
换句话说,贝好家不仅参与了该项目的开发及运营决策,且属于控股股东的量级。
武汉贝好家的第一个项目,就这么不露声色的来了。
03
元萃不仅有天创的专业水平,更有贝壳的大数据加持。
这个时候,我们是不是该“高看一眼”元萃的产品,显然有研究的价值。
从目前已知的元萃的信息中,老秦梳理出了这样几个特点:
第一,毛坯。
顶豪必须精装,这个不用多说。
刚需及改善项目,精装、毛坯各有所长。
就总价的准入门槛而言,毛坯销售显然更有优势。
第二,低密。
2.0的容积率。
注意,元萃是一个没有别墅的盘,2.0的容积率,绝对是如假包换的低密。
说明,客户对于高容积率、超高层已经是深恶痛绝的。
三环外,60层的新力城,真的是殇。
直接的好处是,整个项目全是10—13层的小高层,这个在武昌内环滨江该有多稀缺。
第三,改善。
在武汉,武昌房价最高、武昌内环房价最最高、武昌内环滨江房价最最最高。
元萃所处的板块,明摆的房价就不会便宜。
就跟咱走进LV,您说买双袜子,这个真没有。
元萃户型为建面约127—170㎡,400万起的准入门槛,
改善产品,没跑了。
项目定位,稳准狠,
在什么地方,办什么事,玩得明白。
第四,体量较小、风险可控。
元萃就2万㎡,可售房源仅159套。
159套,按照汉阳金地、金茂的搞法,首开即清盘。
当然,那是刚需及首改项目,元萃属于再改及终改项目,价格高自然流速慢一些,
一年以内,卖个七七八八,问题不大,毕竟就159套房子。
专业房企能预见三个月以后的市场,专业卖房的贝壳还能预见三月以后的市场,
能预见半年后的市场走势,对于一个2万㎡的项目的风控而言,足矣。
04
2025年7月12日,贝好家成立两周年,
业已落地全国9城、14个项目。
其中,合作开发的房企有中海、招商蛇口、金茂、电建、越秀、绿城、滨江等全国及地方性头部房企。
北京长安华曦府、杭州沐兰台等已入市项目,均录得首开一炮而红的战绩。
这一次,元萃“一不小心”站上了全国的舞台,
这一战,成败不仅是武昌内环滨江的牌面,更是武汉楼市的脸面,
真正的为荣誉而战。
天创元萃西城壕项目分析
一、区域定位与地段优势
1. 项目板块
项目位于武昌内环滨江的南段,属于武昌古城板块,是武昌传统的富人区。
周边长江大桥、黄鹤楼等地标,江对面就是龟山电视塔,不出家门就可以领略武汉的秀丽风光。
对比周边的华发外滩玺、华发农讲所地块,天创西城壕的劣势在于不临江。
2. 交通配套
地铁:项目距离地铁5号线昙华林武胜门地铁站C口约100米。
自驾:项目周边就是武珞路,可以前往中南商圈、梦时代;途径长江大桥,可以前往汉阳和汉口核心。
二、配套分析
商业配套:项目所在板块是积玉桥,是武昌老城区,附近的粮道街吃的非常多,有不少还是网红店,昙华林也很近。但周边缺乏的大型商业体,万象城、楚河汉街、梦时代距离项目都有一定距离。
教育配套:根据拿地要求,地块规划新建住宅中适龄儿童入学对口中华路系小学。
项目的小学应该是对口旁边的中华路小学金都校区,初中预计对口粮道街中学积玉桥校区。项目周边的华发外滩玺,项目方说的也是对口粮道街中学积玉桥校区。

2021年,粮道街中学积玉桥校区普高率55%;2022年,普高率62.7%;2023年,普高率64.5%;2024年,普高率70.2%,示范率51.2%;2025年,普高率81%,示范率61.4%,这个成绩在整个武昌来说都是前列。
医疗配套:项目距离湖北省中医院(花园山院区)直线距离约700米,这是一所三甲医院。

休闲配套:项目周边有大堤口广场外滩公园,直线距离约340米,往前一点就是武昌江滩。

三、周边竞品和价格
目前,项目所处的区域,近年来什么新房入市。
最近的新房就是华发外滩玺,暂时还没有开盘,
二手房方面,金都汉宫于2009年交付,是区域内的第一豪宅。
目前二手成交价在2.63万/㎡。小区以大户型为主,最几个月成交的都是148、163、213、220㎡的房源,整体流通性不强
西壕城B地块紧挨华发外滩玺,但不能一线看江,景观资源差很多,楼面价却贵了781元/㎡。
四、总结与建议
1、目标客户:积玉桥的地缘性客户,对江景不太看重想在武昌置业的改善客户。
2、购房建议:天创的江景资源稍弱,但又是小高层,所以价格就很关键了,隔壁的华发外滩玺的价格会是一个重要参考。
小高层VS高层,四代VS老三代,得房率高达106-117% VS 公摊超25%,产品上,天创元萃直接秒杀周边一众二手小区。
作为一个纯小高层产品的低密社区,天创元萃产品相当的纯粹,两梯两户(部分一梯一户)的布局、106-117%的极致得房率更是加分,武昌内环地段也相当核心,除开学区暂不能确定之外,配套也没什么短板,可以说是一个相对完美的项目了。
如果不追求学区,天创元萃是一个非常适合改善群体入手的项目
✅武汉天创贝好家·元萃
✅售楼处电话:400-8787-098接通后输入5555【营销中心电话】
✅温馨提示:拨打400-8787-098电话,听到嘀声后,输入分机号5555即可。
✅网上售楼中心〢尊享售楼处优惠服务〢欢迎来电咨询预约案场内部销售人员〢
✅楼盘项目全面介绍,包含楼盘简介、售楼电话、小区图片、区位优势、交通、周边商业配套、户型图等楼盘详情