✨✨温州万科璞拾云洲售楼处电话:400-778-0670【售楼处已认证】✨ ➢
✨✨温州万科璞拾云洲开发商电话:400-778-0670【售楼处已认证】✨ ➢
✨✨温州万科璞拾云洲营销中心电话:400-778-0670【售楼处已认证】✨ ➢
售楼处电话、售楼处地址、2025最新楼盘动态、售楼处接待时间、房源优惠、
最新房源价格、周边商业交通医院、在售户型、周边学校、交房时间、得房率、公摊面积、小区位置、小区环境、等楼盘详情!
△市区一高低配小区叠墅实景图示意。历史资料图
没有起居空间与院子的高频互动和全方位渗透,就很难称得上“墅”!实景体验就很难打动高阶位的购房者。
也正因为此,市面上一旦出现能解决上述居住痛点,并给购房者带来真正“居住更新迭代”感受的叠墅,就很容易被一抢而空。
那么,温州目前市面上,还有没有性价比相对较高、能给购房者带来完全不一样实景体验的叠墅产品呢?
经过调查梳理,我们发现:与市中一桥之隔、位于瓯江北岸的江屿云庄,还真的有可能是那颗“沧海遗珠”。
△项目相对位置示意
△项目南侧实景图示意
江屿云庄算是瓯北核心区近年来少有的江景规模大盘,总建面约21万方。楼盘于2020年9月开始销售。商品房约1779套,在这一轮市场下行期,开发商主推高层公寓,如今楼盘已交付,高层公寓已基本售罄。

△项目一高层楼栋去化。图据温州市房地产市场信息交易网
最近,网传开发商针对叠墅尾盘产品在做“清盘特惠活动”,我们一起来看看江屿云庄叠墅的详细情况。
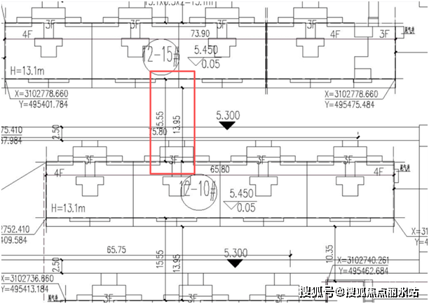
外行人看热闹,内行人看数据。江屿云庄叠墅的楼间距,相比市区传统的高低配叠墅,明显是“升级迭代版本”:

△项目总平图局部示意。图据永嘉县自然资源和规划局
南北最小间距约13.95米,结构墙体间距更是达到了约15.55米,这个楼间距,比市区绝大部分传统的高低配叠墅大了4到5米。
叠墅的首要核心竞争力,就是楼间距。江屿云庄的楼间距和楼高之比约为1:0.84,这个数据,哪怕与最新热销的叠墅产品来比,也毫不逊色。
这样的楼间距,意味着一楼客厅,在一年四季都能有阳光的眷顾,意味着空间感受可以远离逼仄感。
△项目实景示意,以实际和交付为准
江屿云庄叠墅的先天条件非常不错。温州人爱江景房,但真正沿江的江景叠墅屈指可数,更何况是温州稀缺南向沿江。江屿云庄正是南向看江的江景叠墅。
△项目周边实景图示意
再来看看建筑的设计风格。
△项目实景图示意
从实景来看,江屿云庄叠墅的建筑设计,摒弃了市面惯用的欧式法式,而采用了简洁的现代风格。我们认为,这对装修入住后的具体生活场景体验,是一个很好的消息。
△叠墅实景图示意
前面已经提过,墅类产品的核心在于院子,而院子和房子的关系,最忌讳被“如封似闭的实墙体”割裂。
△叠墅实景图示意
关于这一点,我们简单举个例子分析一下就知道了——
比如在室内客厅,你有约8米的开间,感受就会很阔绰;而在室外,约8米的尺度就显得比较平庸。
这个时候,你如果把客厅完全打开(用大面积落地玻璃,或可折叠玻璃),让室外的院子空间与客厅无边际融合,此时你在室内的感觉,就是“客厅空间吃进了院子空间”,既带来了“空间成倍数级扩大”的体验,又能让窗外的风景毫无隔碍地流淌到室内。
这,才是“墅的真正感觉”!


△6#下叠营销样板房实景示意。以交付实景为准,仅供参考
实际上,目前市面上那些体验感好的“大户型合院”,其样板房都采用了上述手法,比如绿城六和院、乾庚·和玺就是这样。
回过头来再说江屿云庄。江屿云庄目前现场的样板房,其实并没有把上面这种体验感完全呈现出来,而实际上,它是有条件这么做的。
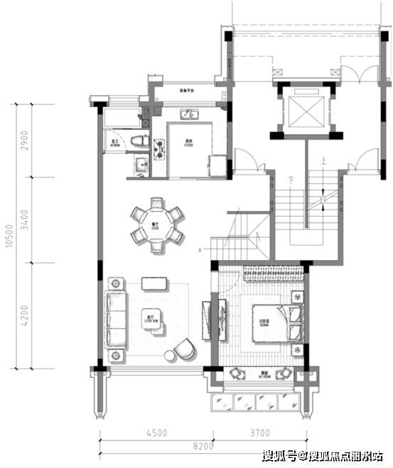
我们来看一下首层户型:

△户型图示意,尺寸仅供参考,以实际交付为准。
开发商的户型,更强调了房间数量和功能使用。我们认为,类似叠墅产品,二楼有三个尺度舒适的卧室,另外还有地下空间大面积赠送,所以,可以把一楼的空间完全解放出来,展现“别墅的真正面目”:

✨✨温州万科璞拾云洲售楼处电话:400-778-0670【售楼处已认证】✨ ➢
✨✨温州万科璞拾云洲开发商电话:400-778-0670【售楼处已认证】✨ ➢
✨✨温州万科璞拾云洲营销中心电话:400-778-0670【售楼处已认证】✨ ➢
售楼处电话、售楼处地址、2025最新楼盘动态、售楼处接待时间、房源优惠、
最新房源价格、周边商业交通医院、在售户型、周边学校、交房时间、得房率、公摊面积、小区位置、小区环境、等楼盘详情!