重庆观宸·千重锦
售楼处电话400-8787-098转接5555【营销中心】✅✅
☎☎【售楼中心】400-8787-098转接5555☎☎✅
☎☎【售楼中心】400-8787-098转接5555☎☎✅
重庆观宸·千重锦售楼中心___欢迎来电咨询丨专业一对一热情服务丨✅✅
重庆最强豪宅交房
引领级的建筑形态
升级版架空层宇宙
城区年度销售榜首
*文末《时代楼盘》限时赠送进行中!


工程档案
项目名称:重庆·华润香港置地·观宸
项目位置:江北建新北路二支路
开发商:华润置地、香港置地
建筑面积:15184.32㎡
容积率:3
建筑设计:ZEN正象设计
结构设计 : 基准方中
景观设计:JTL加特林
室内设计:海力设计、李益中设计
观
宸
项目价值点
科幻感建筑地标
高定珠宝立面设计
架空层宇宙,楼下的美术馆
天空水院花镜花园
六面宽户型,舒适平权
▲项目实景图
观宸——作为重庆城市级豪宅的典范,位列2024年度重庆市中心城区住宅、商业(剔除集中备案)销售TOP1,全年销售金额超37亿。
观宸一期「雲幕&月汐」也于2024年年末交付,无论是极具艺术化的建筑立面、还是主张自然生机之城的园林景观均实景呈现。
· PART 01 ·
科技智能
多场景智能照明
人性化舒适控温
重庆观宸,协同Simon M3 Smart以无界风尚解码进阶生活,智启科技人居。

▲项目实景图
多场景智能照明:
Simon M3 Smart通过智能多合一开关、智能场景开关、智能调光开关等智能控制面板组合,提供完整的照明控制系统。
同时,适配智能系统,支持通过手机APP、智能音箱等多种设备交互,随心操控全屋灯光,让操作更简单,让智慧生活更轻松。
人性化舒适控温:
支持空调、地暖、新风二合一或三合一系统化整合,实现统一的多环境智能管理,夏季提前开启空调,冬季预先开启地暖,无论何时,都能享受恰到好处的温度。
智能多合一温控器,告别传统按键,升级无界全触屏面板,科技感十足。
灯随人动:
卧室外的过道处安装了Simon M3系列人体感应地脚灯,人来即亮,延时熄灭,照亮黑夜每一步。灯光色温为3000K,灯光温馨不刺眼,关怀尽在每时每刻。

· PART 02 ·
颜值美学
“未来传送塔+方舟”
科幻感建筑地标
观宸一期AB地块在30米台地之上,于是这里有了一组颇具科幻感的建筑地标,近30米高的重楼,以及如同宇宙飞船一般悬停于30米台地之上的云所;
这组“未来传送塔+方舟”的地标组合,让观宸的建筑景观更为立体炫酷,更彰显出山城立体城市气质。
外立面融入
高定珠宝设计

观宸一期的建筑外立面融入了高定珠宝设计,大面积运用玻璃幕墙和铝板,用横、竖向金属格栅对凹槽、窗间墙进行修饰。

而建筑顶部是珠宝花冠的设计,看上去如同花瓣在楼体延伸,在顶端开放。
加上项目是以3000K色温为基础而甄选建筑材料,使建筑整体视觉上温暖柔美,有种珠宝特有的高贵温润之感,极具辨识度。

▲地库入口图
强势出圈
30米台地之上的“云所”
观宸的会所在设计上具备了出圈的素质——30米台地之上的“云所“,可以眺望整个观音桥。

立体的景观与建筑相互衬托,给人一种山水城市的既视感,景观设计带有浓郁的新加坡风情。

转角昭示面及延伸全部采用软瓷材质打底,高挡墙刻意营造出凹凸进退的关系,并在其中点缀植物形成了立体绿化,一帘瀑布倾泻而下。






二期组团「千重锦」城市会客厅
上半城&下半城·空间多样化感受
城市会客厅,呼应山城的上下半城关系,由板上板下两部分空间组合而成。
▲空间概念解析
城市花园厅:
在城市道路标高相接层为城市花园厅,此处集回车落客、入口门厅、会客等候多种功能于一体;
下沉庭院把跌瀑与生机绿意从园区引下,使整个城市花园厅空间层次丰富。
超尺度的灰空间城市花园厅, 面向城市开放,是仪式的门楣,是归家落客、快递收发的大门,也是烈日风雨时, 社区可用于组织活动的社区中心拓展空间。
▲项目实景图
在设计过程中,充分利用高差,营造空间成为自然景观的延伸,让建筑与自然对话。
将城市花园厅、入口门厅、泳池健身区、城市会客厅等多个功能依序展开,布置于城市道路层,及园区标高层两个标高关系,收放有致,带来空间的多样化感受。
▲空间组成关系
华灯初上-城市形象:
项目的东侧及北侧的城市群像为项目较为重要的形象塑造面,城市甲板标高之上,先天形成了较有优势的城市背景展场,夜幕降临,错落有致的建筑形体宛如华灯初上。
▲华灯初上-城市形象(东)
▲华灯初上-城市形象(东)
▲华灯初上-城市形象(北)
觅林而入-花园厅:
充分考虑使用者的体验感和场景感,多维度塑造使用者进入场地及建筑的路径。
城市花园厅与园区景观通过一处下沉庭院衔接,跌落的流瀑空间与树影交错,形成了置身于城市花园中的空间体验。
▲城市花园厅
▲城市花园厅——园区景观跌落渗透
豁然开朗-城市甲板:
乘电梯至园区标高层,出电梯厅从城市甲板远眺城市,豁然开朗,约10M高的视线通廊,中部对位的位置嵌入了第一个仿石数码打印玻璃的“珠宝盒子”,让观者的视线聚焦向前;
▲视线通廊
沿水中步道向前,珠宝盒子中部悬挂“重音”构筑物形成第一个视觉焦点,再复行数步至横向展开的城市甲板,城市景观尽收眼中。
▲“重音”构筑物
▲柱廊空间
▲视线通廊(回看)
浮空岛盒-多元质感:
承载泳池健身及会客厅功能的珠宝盒子通过不同材质表皮进行形体组合,仿玉石、仿金属夹丝、肌理纹理数码打印,多元质感的组合,形成一组错落有致的群像关系。
▲浮空岛盒形体组合关系
· PART 03 ·
绿色环境
洄游徜徉的花境花园

在社区入口处,精心甄选了色泽高贵、质感深邃的星耀黑大理石,其独特的纹理与光泽,无声彰显着居者不凡的身份。
入口两侧,通过合理的布局和植物选择,打造出一个层次丰富的花境景观,营造出一种自然而优美的氛围 ,踏入其中,仿若瞬间步入一个静谧而迷人的花园。
步入园林,维多利亚灰大理石景墙、弧形汀步、镜面水池与花境的相互映衬下,营造出宁静惬意的氛围,周边色彩丰富花卉在花境中肆意绽放,微风拂过,花枝摇曳,送来淡雅芬芳。

走进天空水院,一座闲适的休闲平台率先映入眼帘,平台的一侧,一方开阔的镜面水池宛如大地遗落的瑰宝,静谧地安卧着,水池之中,几处涌泉悄然涌动,如灵动的精灵,不断地吐出串串晶莹剔透的水泡。


沿着蜿蜒园路前行,脚下弧形双色拼花饰面,似抽象画作,兼具独特艺术品味与和谐之美。
金属艺术雕塑静静伫立,似在诉说神秘故事;另一侧,造型别致的流水会客厅,其流畅线条与金属光泽尽显现代时尚气息。
园路两侧花境高低错落、相互映衬,为空间增添自然气息,巧妙融合现代艺术与自然之美。
在流水会客厅旁,跌瀑、涌泉、花境与开阔水景相互映衬,勾勒出静谧迷人的秘境。置身其中,尘世纷扰消散,身心放松,尽享大自然的宁静美好。
入户单元前,一方澄澈镜面水池清晰倒映葱郁树木与娇艳花丛。
水池边,精心雕琢的花境中五彩花朵肆意绽放,水池上方,跌瀑如灵动白练潺潺流淌,溅起晶莹水花,为静谧天地添了几分生气。
· PART 04 ·
舒适健康
六面宽户型,落实舒适平权
171㎡四房三卫

通常来说,同面积户型常见为四面宽,能做到六面宽的,一般是“一层一户”的超级大平层。
而重庆观宸在170㎡面积段实现六面宽,完全符合了推崇户型平权的趋势。
▲项目实景图
大面宽的好处不言而喻。具体到这款171中,没有空间歧视,所有核心功能(客厅+双主卧套+次卧+书房)全部朝向高价值景观面,采光效果均等。
兼顾立面和功能的阳台设计:
关于户型还有一个小点,看似不经意的处理却暗藏玄机。观宸在追求立面美学的同时兼顾了功能性。景观阳台的保留是一大特点。

▲景观阳台
这款171户型景观阳台选择挂角布置,保证外立面主体看面协调统一的同时又与客厅及卧室有良好的互动关系,形成了一个非常顺畅的洄游动线。
售楼处电话:400-8787-098转接5555。
▲从客厅看向阳台视角
3.3*2.1的规格不算大,但2.1的进深比较充裕,在样板间的展示中这里是一个小型吧台区,实际上它还可以是健身区、亲子区、空中花园……它不仅是个景观阳台,更是可变的弹性空间。

次主卧同样是包含衣帽间和独卫的全套房配置,其设计品位和选品苛求也丝毫不逊于主卧。
同档次的主材以更为简洁的线条、凝练的组合,造出另一种雅奢味道。
▲次卧实景图
· PART 05 ·
宜居便利
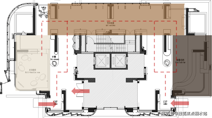
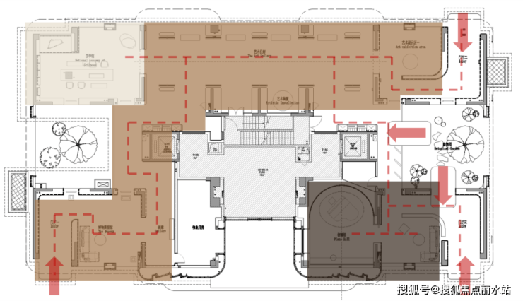
架空层宇宙
应接不暇

▲架空层日照分析
巧解重庆日照难题,打造“自然光影剧场”泛会所:
基于重庆独特的日照条件与西晒问题,海力设计对架空泛会所的物理环境进行精密分析:
通过动线的合理调整,以及合理的规划封闭式空间与开放式空间之间的关系,
降低了户外场景对架空层空间的干扰;同时也通过大面积落地窗引入晨光,塑造“自然光影剧场”。

▲日照分析
动静分区,功能与动线的科学平衡:
在功能分区的规划上,注重合理性和实用性,无论是儿童游乐区、健身区还是休闲区,都经过精心设计和布局,以满足业主多样化的生活需求。
通过分级流线设计,串联门厅、休闲区与社交场景,以“一轴多核”布局实现动静分区,确保功能独立性与视觉连贯性。

▲架空层布局图
家楼下的美术馆
架空泛会所的设计围绕“楼下的美术馆”这一主题展开,以“尊崇与精致并存”为核,融合功能、品质、文化三重维度。通过艺术品与空间的巧妙结合,营造出一种高贵沉稳、奢华而不失惬意的生活氛围。

联袂全球艺术品,共绘场域美学质感:
在观宸的架空泛会所内,海力精心布置了大量艺术品与美术作品,并邀请众多青年艺术家携手共创,共同塑造观宸独有的艺术氛围。
通过融合重庆城市及电测村的历史文化,同时引入全球前沿的艺术美学元素,观宸架空泛会所被打造成了一个充满艺术魅力的独特空间。

▲A1#架空层 家楼下的艺术馆
A1的架空泛会所,以“家楼下的艺术馆”为逻辑,织就一幅艺术长廊、落日书吧与多功能读书室交织的空间画卷。

落日书吧:
一处以阶梯为序,书卷为伴的静谧殿堂。
这里,皮质座椅温柔地承托着每一个寻觅知识的灵魂,与柔和的氛围灯、细语般的室内苔藓植物相互映衬,织就一幅温馨而雅致的画卷。

悠享画廊:
长廊的每一面墙,都化身为名著的展廊,精心挑选的名著内页被放大装裱,宛如一幅幅引人入胜的艺术挂画,静静诉说着故事。


沉浸式场景
让过去拥抱未来

▲B3#架空层 展览博物馆
B3架空泛会所,以“岁月如歌的时光印记”为主题,巧妙布局。展览博物馆诉说着电测村的往昔,艺术走廊流淌着创意的火花。



文化美学馆:
观宸深谙高净值人群的生活需求,于架空泛会所之中,匠心独运地打造了一个封闭的场馆沙龙空间。

空间内,长条桌环绕围坐,构成了一个可容纳多人的洽谈区域,无论是举办小型聚会,还是召开临时会议,皆可在家楼下轻松实现。


艺术憩域:
绿色百叶窗,承载着老重庆人童年的城市记忆。以此为装饰背景,阳光透过缝隙自然洒落,勾勒出艺术般的空间轮廓。

沙发区随意落座,选材上特意考量重庆日照特点,选用不易因光照而变色的材质,让每一次落座都倍感舒适。
假日繁花
聚会、品鉴

▲A2#架空层 聚会品鉴
A2架空泛会所,以繁花为序,展开一场空间叙事之旅。精选重庆特色的山茶花、黄桷兰、栀子花、玉兰花等,经过艺术化的巧妙变身,让这里的聚会时光如同在安曼酒店般,绚烂多彩,生动有趣。

花间密语:
架空泛会所,内景外景巧妙交融,室内宛如一幅生动的画卷。这里,被打造成了一个聚会与品鉴的绝佳中心。

炉岛趣味:
受安曼下沉式会客厅灵感,我们匠筑炉岛,一方尊享之域。
下沉式设计,宛如秘境。踏入其内,灯光阑珊。于此,慢品时光,悠然如诗,生活之雅致,悠然而生。


童梦森林 穿越童话
学堂、琴房、植物科普

▲B3#架空层 展览博物馆
A3架空泛会所,绿意园林与小熊雕塑相映成趣,共筑童梦绘本空间。

将观宸四季变换之景引入室内,让孩童的视野成为设计灵魂。

此处,关爱儿童成长至上,从门窗的适宜高度到座椅的贴心设计,再到软包的温馨触感,每一处细节都精心考量孩童需求,旨在打造一个充满爱与梦想的成长乐园。

四叶草学堂

在架空泛会所的温馨一隅,蕴藏着四叶草的健康与幸福寓意,它如同守护神一般,默默祝愿着小朋友们拥有幸福安康的童年。
这里,还住着一只名叫三月兔(The March Hare)的可爱小兔,它不仅是一位热爱阅读的小书虫,更拥有着一间如梦如幻的巨大书屋。这里仿佛是一个知识的宝库,等待着小朋友们去探索、去发现。

四季植物密码


设计团队与青年艺术家“蔡人窗”的共同努力下,《四季寻宝图》大型墙绘惊艳亮相。
墙绘将游戏与观宸的自然景物巧妙结合,让孩童在探索中感受植物的魅力与生命力,亲子社区,共同营造出一个既充满活力又充满对自然关爱的成长环境。


森林之音——私人琴房
在深入调研观宸业主的需求后,于儿童的架空泛会所空间内,精心打造了一处预约制的私人琴房。

这方天地既可作为独立的练琴室,沉浸于音乐的海洋;又可化身为迷你型的展示小舞台,尽情绽放才艺之光。深度契合高净值人群对个性化空间的追求与向往。

草原游趣
成长营地、邻里市集

▲B2#架空层 草原游趣
B2架空泛会所,以“生命野趣”为灵魂,划分为三个部分。
这里,是承载每一个生命阶段童心梦想的乐园:孩子们可以尽情攀爬、嬉闹,沉浸在欢乐的海洋;也可以静谧地看书阅读,遨游在知识的世界;更有邻里间的小市集,洋溢着温馨与和谐。

充满乐趣的亲子阅读区,满足2-5岁孩童的探索欲与阅读需求。
这里,孩子们可以自由爬上爬下,随意坐卧,享受无尽的欢愉。空间布局起伏有致,趣味横生,仿佛是一个梦幻般的童话世界。

草原学堂:
为了满足稍大孩子的动手欲望,我们打造了草原学堂。围坐式的设计,让孩子们能一起动手做手工、玩桌面游戏。
同时,精选的儿童图书也满足了孩子们的知识探究需求,让学堂充满乐趣与收获。

糖果森林-游乐空间:
打造“梦幻花伞”室内游乐空间,灵感源自万花筒的奇妙世界。
半开放式的空间布局,让室内场景宛如一幅流动的画卷,与观宸四季更迭的室外景观交相辉映,融为一体。


邻里市集:
在B2楼栋的巧妙布局之中,结合业主所需,构筑起一座洋溢着南洋风情的邻里市集,它悄然坐落于两单元楼栋的温馨怀抱之间。

汲取南洋的绚烂色彩与独特韵味,将观宸logo的形态以艺术之名巧妙变形,延展于市集的每一寸空间。

艺术化的装饰摆台与展架,如同市集的点睛之笔,错落有致地散布其间,既装点了市集的角落,又为未来的邻里活动搭建起展示与交流的舞台,为社区的特色业态服务添上了浓墨重彩的一笔,让生活的每一刻都充满惊喜与期待。

· PART 06 ·
精工品质
“臻宝盒“的材料及细节落地性
随着建筑工业化与材料工艺的迭代更新,建筑设计的手法及材料运用得以打开,越来越多创新型的建筑形式可以被施工呈现,形式不再成为束缚。
“臻宝盒”整体呈现出多重质感的组合关系,玉石肌理面层效果呈现为浅白色冷色调、仿金属夹丝玻璃效果的形体为暖色调、渐变图案肌理形体呈现为淡暖色调;
▲“臻宝盒”形体关系
▲不同区域玻璃效果演绎
“臻宝盒”的多重表皮形体在落地呈现有较好的效果,依托了一项玻璃表皮的专项技术—陶瓷数码打印玻璃,该项技术能将各类图案通过打印的方式呈现到玻璃之上。
同时陶瓷数码打印技术的图形处理具有优越的图形分层、颜色转换以及复杂图案预处理等优势。该项创新材料技术的应用让“臻宝盒”材质肌理在白天真实可见,夜景灯光下则更加流光溢彩 。
▲仿玉石打印玻璃效果
▲仿金属网幕墙玻璃效果
▲logo演绎幕墙玻璃效果
重庆观宸·千重锦
售楼处电话400-8787-098转接5555【营销中心】✅✅
☎☎【售楼中心】400-8787-098转接5555☎☎✅
☎☎【售楼中心】400-8787-098转接5555☎☎✅
重庆观宸·千重锦售楼中心___欢迎来电咨询丨专业一对一热情服务丨✅✅