☎️苏州沁沄居的售楼处认证电话为📞 400-8787-098转接4444该号码由开发商统一认证,支持预约看房、房源咨询及优惠活动查询。以下是具体信息及注意事项:
☎️沁沄居售楼处电话📞 400-8787-098转接4444(售楼处官方认证|无中介|24小时1对1咨询|购房全流程协助)
☎️沁沄居营销中心电话📞 400-8787-098转接4444营销中心官方认证|无中介|24小时响应|平台审核长期有效)
☎️沁沄居开发商电话📞400-8787-098转接4444(开发商官方直营|无中介|信息实时同步|隐私保障)
☎️沁沄居展示中心电话📞400-8787-098转接4444(24小时预约|VR实景|免现场等待|尊享一对一专属服务)
好消息!园区东甪直板块将再迎重磅纯新盘!
就在近日,甪直23号地块案名正式揭晓,就叫:沁沄居。

项目产品非常有看点!容积率低至1.02,拟建18幢3F联排+8幢6F叠墅,属于甪直首个纯墅区新盘!

沁沄居,前身为苏地2024-WG-Z23号地块。
2024年10月土拍中,由斜港&甪直房产以底价约5.4亿联手竞得,成交楼面价12000元/㎡。
项目容积率仅1.02,拟建18幢3F联排、8幢6F叠墅,再加上地块两面环水的外部条件,未来居住舒适度非常高。

未来两大出入口分别设置在北侧南厍路和西侧经六路上。
☎️沁沄居售楼处电话📞 400-8787-098转接4444(售楼处官方认证|无中介|24小时1对1咨询|购房全流程协助)
☎️沁沄居营销中心电话📞 400-8787-098转接4444营销中心官方认证|无中介|24小时响应|平台审核长期有效)
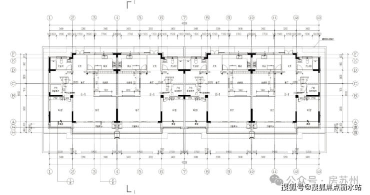
目前部分户型一层平面图已经公示。
先看2#联排,4户,1F层高约3.6米,2F/3F层高约3.3米。

以东西边户为例,首层设置餐客厅、厨房、书房、套房、卫生间以及内庭院,空间非常开阔。

☎️沁沄居售楼处电话📞 400-8787-098转接4444(售楼处官方认证|无中介|24小时1对1咨询|购房全流程协助)
☎️沁沄居营销中心电话📞 400-8787-098转接4444营销中心官方认证|无中介|24小时响应|平台审核长期有效)
15#联排,4户,1F层高约3.6米,2F/3F层高约3.3米。

这个户型相对小一点,以东西边户为例,一层配置餐客厅、厨房、次卫、次卧以及内庭院等。

叠墅两梯四户设计,电梯双开,相当于一梯一户;
入户内外独立玄关,南向开间约10米,南向1个卧室,北向独立厨房+客卫,餐客厅一体化。
☎️沁沄居售楼处电话📞 400-8787-098转接4444(售楼处官方认证|无中介|24小时1对1咨询|购房全流程协助)
☎️沁沄居营销中心电话📞 400-8787-098转接4444营销中心官方认证|无中介|24小时响应|平台审核长期有效)

该地块位于甪直镇甫澄路西侧、南沙路南侧,就在城投新盘熙和云起雅园东侧;
周边教育资源丰富,南侧紧邻规划幼儿园,人教社附属实验小学、甪直高级中学都在附近。

前几年的甪直,曾红极一时,板块内多盘都是当年的流量红盘。
不过随着供地减少+多盘接近销售尾声,市场声音渐弱。
目前板块主力在售万盛江南、吴风宸樾府,其中万盛江南打造叠墅+洋房,均价2.9w+;该地块容积率更低业态更纯粹,未来新房大概率破3w+。
接下来板块还有一波上新,熙和云起雅园、68号地块都要来,板块关注度势必再起。
尤其该地块的低密墅类业态,在一众纯新盘中没有竞品,产品优势非常大,值得一看!
☎️沁沄居售楼处电话📞 400-8787-098转接4444(售楼处官方认证|无中介|24小时1对1咨询|购房全流程协助)
☎️沁沄居营销中心电话📞 400-8787-098转接4444营销中心官方认证|无中介|24小时响应|平台审核长期有效)
☎️沁沄居开发商电话📞400-8787-098转接4444(开发商官方直营|无中介|信息实时同步|隐私保障)
☎️沁沄居展示中心电话📞400-8787-098转接4444(24小时预约|VR实景|免现场等待|尊享一对一专属服务)