雁云庭
吴中甪直首个四代宅
打造8栋4F叠墅+5栋高层四代宅
带空中花园,高赠送
雁云庭售楼热线:400 870 9151 ✔✔✔☎
雁云庭置业顾问:131 8266 1993(同微信)✔✔✔☎
雁云庭售楼处位置:售楼热线:400 870 9151 ✔✔✔☎
雁云庭预约看房,置业顾问一对一对接,享受额外优惠!
价格:待定
总楼栋:8幢4F叠墅+5幢24-25F四代高层产品
容积率:1.8
占地面积:37740.2平
总建筑面积:102549.31平
开发商:斜港置业、吴城置业和甪直房地产开发公司联合
地址:吴中区甪直镇鸣市路南侧、经三路东侧

项目规划:雁云庭售楼热线:400 870 9151 ✔✔✔☎
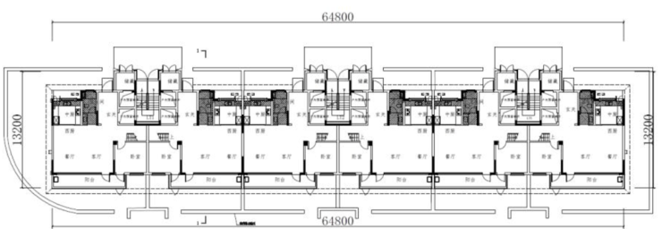
业态组合:8栋4层叠墅(上下叠结构)+5栋24-25层高层(第四代住宅),容积率仅1.8,总户数不超过570户
设计亮点:高层采用奇偶错层布局,奇数层南向、偶数层北向设置空中庭院,叠墅下附赠院子,上叠带超大露台
户型与装修:雁云庭售楼热线:400 870 9151 ✔✔✔☎
高层:4房2厅3卫设计,客餐厅一体化,双套房配置,装标≥2000元/㎡
叠墅:下叠含独立院子及挑空客厅,上叠顶层设星空阁楼与露台

区位与配套:雁云庭售楼热线:400 870 9151 ✔✔✔☎
位置:甪直镇鸣市路南侧、经三路东侧,毗邻星泽实验学校(星海教育集团)
交通:依赖自驾,近甪直大道、东方大道,可快速通达园区
教育:北侧星泽实验学校(星海教育集团)已投用,周边还有甪直实验小学、陶浜幼儿园
商业:规划1座邻里中心、2条商业水街,现有南山维乐城等配套
交通:依赖自驾,北接甪直大道(连通金鸡湖大道),南靠东方大道(通往独墅湖高教区)

市场动态:雁云庭售楼热线:400 870 9151 ✔✔✔☎
价格:周边新房高层均价约2.2万+/㎡,叠墅2.8-3万/㎡,项目售价待定










