中海翡悦天华位于天府总部商务区核心圈,该区域是成都未来发展的重要区域,具有极高的战略地位。
项目以208-318㎡的千万级臻品之姿,将与489米超高层地标共同构筑城市天际线。同时,这里是天府总部商务区精华也是(超塔核心区)最后一块住宅用地,稀缺性不言而喻。随着区域的不断发展,其价值将不断提升。
项目整体平均户型面积突破250㎡,其中300㎡以上超大平层产品占比近三成,堪称CBD战略级大平层标杆之作。
作为天东片区最高规格的住宅产品,该项目通过与489米超塔形成空间呼应,已成为天府新区城市封面的重要构成。
中海地产运用最新产品设计理念,汲取「玖序」系列成功经验,打造具有国际视野的现代建筑美学。
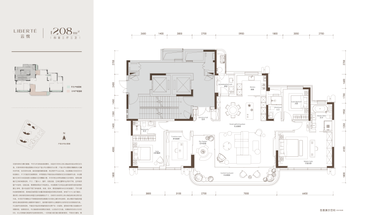
【在售户型鉴赏】




国家战略规划,认知成都的首要印象区
天府总部商务区依托国家战略规划,以"总部经济+生态公园"双轮驱动模式,致力于打造面向全球的"世界之窗",成为国际社会认知成都的首要印象区。

随着"成渝地区双城经济圈"晋升国家战略,天府新区作为"一带一路"与长江经济带的关键枢纽,肩负着推动区域协同发展的重要使命。天府总部商务区作为战略布局中的核心落子,是天府新区主要功能承载区,精准践行国家战略部署。

千亩生态基底 国家级标准
秉承"公园城市首提地"的战略定位,天府总部商务区借鉴纽约曼哈顿、上海陆家嘴等国际CBD发展经验,构建国家级生态示范区。

119栋超高层建筑 构筑城市天际
以约1.23平方公里核心区域为原点,形成以总部经济、会展博览、现代金融、科技服务为主导的产业集群,建设具有全国影响力的国家级商务中心。

城市坐标原点 天府发展极核
作为开创性的进阶版中央商务区,区域内489米地标建筑作为"一带一路"关键节点的重要载体,将集聚全球优质资源,串联世界能量网络,成为西南地区发展的战略图腾与精神象征。

地标引力 汇聚全球资源
通过高端商业配套、文化地标集群与立体交通网络,形成具有全球吸引力的核心磁场。



踞守城市核心区域,呼应时代发展脉搏,中海·翡悦天华以全球化视野与创新设计理念,在天府总部商务区发展成熟之际,打造与城市共同进化的标志性藏品。
