🌈웃❤유天津金地锦墅里
金地锦墅里售楼处电话:400-159-8559转接5555【首页网站】
金地锦墅里售楼处电话:400-159-8559转接5555【售楼中心】
温馨提示:网上售楼中心〢预约可享内部优惠〢欢迎来电恭迎品鉴〢
免责声明:(本文章所用信息图片来源于网络,如有侵权请联系本网站及时删除

二、周边配套
✅商业配套:黄金生活圈 纵享城芯精粹生活
1️⃣1公里内4大菜市场,满足日常所需;4大便民超市,下楼即达;4大药房,健康保障无忧
2️⃣大型商圈环伺
5公里内,大津城购物中心、凌奥创意产业园、奥城商业广场、梅江商圈(梅江印象城/梅江天街/山姆会员店)、水上商圈(鲁能城购物中心/上谷商业街)等,既能覆盖日常购物和娱乐,又能享受高品质一站式繁华生活

✅交通配套
1️⃣3横3纵1桥 畅达全城,
三横:快速路、外环西路、津涞公路 ,通达河西、南开,直连城芯繁华
三纵:红旗南路、卫津南路、友谊南路,直抵和平等市中心,接驳环城高速路网
一桥:津涞立交桥(预计2025年通车)
便捷再加速:津涞立交桥最后一个路口预计25年贯通,将实现津来公路与外环线的全线互通,显著提升区域路网通行效率

2️⃣3轨交汇 高效出行
地铁10号线 “梅江枢纽线” 一站式满足生活所需
地铁5号线 “奥体主干线” 精神与物质的双重满足
地铁7号线 “纵贯南北骨干线 ” 全能换乘王(预计25年8月底前开通)

✅公园配套
1️⃣四大公园 鲜氧生态:水上公园、梅江公园、南翠屏公园、西青郊野公园,解锁生态鲜氧生活。
2️⃣绿化再升级:李七庄公园隶属于天津外环线规划的11座大型城市公园之一,也是西南外环惟一的生态园,规划面积约37公顷,位于李七庄街核心区,是链接中心城区与西南新城的重要生态枢纽,其建成后将填补西南片区大型综合公园的空白,与梅江公园形成功能互补,构建城市绿廊。

✅医疗配套
四所三甲医疗护航:四六四医院、一中心医院、中医一附院、肿瘤医院,四所三甲医院,国家重点/学科标杆,为家人健康护航。

✅教育配套:3所人文学府沁润:天津理工大学、天津师范大学、天津工业大学,高知人文学府沁润。

全龄教育资源 区域内一站式满足

三、户型赏鉴
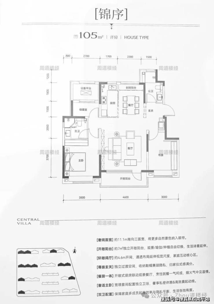
✅105㎡三室两厅两卫

✅119㎡三室两厅两卫

四、周边概况
✅买在城市资源最丰盛的板块
👍20年资源沉淀,坐享发展红利
梅江、奥体板块历经20年发展沉淀,如今城市地标林立、商业活力爆发、人文资源荟萃,买在城市资源最丰盛的板块,坐享发展红利。
👍9座城市级地标环绕 极核西南高光
√ 3大地标级建筑(天塔、梅江会展中心、奥体)
√ 3大地标级公园(梅江公园、水上公园、南翠屏公园)
√ 3大地标级商业(鲁能城购物中心、龙湖天街、山姆会员店)
👍梅奥双圈极核 鼎级醇熟配套

五、项目产品简介
✅为什么置业梅奥必选金地·锦墅里?
💠梅奥低密住区 宜居一脉相承
奥体、梅江曾主导城市低密住宅,2015年后城市化加速,土地成本上升,规划导向高层住宅,低密开发重点向城市外缘转移。约2020年后金地艺墅家、金地艺华里等项目落地梅奥板块,梅奥板块成为承接低密需求的新兴区域。

💠十年未见 1.3绝版最低容住区
最低密:十年一地 梅奥值此1.3低容臻壤

💠金地TOP系 全新力作
金地锦墅里,以金地TOP系首个1.3容积率四代洋房墅区,定义低密奢居新范式。
①鎏金奢享 封面美学
承袭纽约基因×OMA大师匠筑,香槟金铝板+转角设计+巨幕玻璃,引领梅奥奢宅新高度。

多重拓展空间 重塑改善格局
△地下室:品茶、藏酒、健身、潮玩、影音室,盛放家人兴趣爱好,创造多彩生活

小院:宠物跑酷、孩子玩耍、父母喜欢的花果园、休闲颐养,邀三五好友,烧烤欢聚,藏纳欢趣

云端阁楼:超大老虎窗,一方私域观景区,又可打造成孩子的秘密基地,共享不同意趣

🌈웃❤유天津金地锦墅里
☎️售楼处电话:400-159-8559接通拨5555(此电话是售前咨询服务)
☎️或者点击上方红色字体(联系电话,自动为您输入分机号)也可直接致电售楼处!
☎️置业专属VIP: 4001598559,5555 (复制此号码直接拨打)
⭕致电预约登记—(尊享内部优惠)〢享Vip1对1专业置业顾问讲解⭕
温馨提示:售楼处样板间预约制看房,请提前1小时预约看房,以免带来不好的看房体验
免责声明:本宣传资料所有文字、数据、图片及所标尺寸等仅为本项目建设区域设计效果的表达和示意,为要约邀请,不构成要约内容,相关内容不排除因政府相关规划、规定及其他原因而发生变化,一切有关房屋的具体信息以书面合同及政府最终审批文件为准。
免责声明:本文章文字、数据和图片皆来源网络,如有侵权请告知立马删除,数据图片仅供参考,不作为邀约或承诺