长沙招商揽阅
✨✨售楼处电话☎☎400-159-8559转6688(专人接听)✨✽✽✽
✨✨营销中心电话:☎☎400-159-8559转6688【营销中心】✨✽✽✽
✨✨温馨提示:拨打400电话,听到嘀声后,输入分机号6688即可!✨✽✽✽
✨✨☞☞Vip贵宾置业==欢迎来电预约尊享内部折扣===匠心钜制恭迎品☜☜

核心推荐理由
01 全景度假,把公园搬到家的楼下
4600㎡主入口景观前场,结合水景与树阵的穿插,熟悉与烟火交织,让回家变成慢慢松弛的归途,充满仪式感。双层景观体系,成就世界顶级酒店虹夕诺雅野奢感。
02 灰空间革命,献给家外的生活场景
3600㎡度假公园、3000㎡架空层、1200㎡会所共同组成长沙揽阅的7800㎡超级公区,重置空间,更增加海量生活体验和场景;长沙首创双层立体式公区,更大化场景容量。
03 会所新形态,在度假中度过生活
设想100种生活方式,注入12幕首创场景,以运营发散多样化场景,呼应人们对于社交多样化需求,赋予使用者场景变化的自由,让场景激活更多生活方式。
04 艺术新译,与青年匹配的摩登风


0
2
项目概况
招商揽阅择址于长沙岳麓区,梅溪湖国际生活圈,地处麓谷大道与枫林三路交汇处,落座精粹资源集群,展映理想无限缤纷。
社区大门、展示区、会所位于地块西侧主要展示面,与大区标高错层,形成下沉式的绿谷景观区,作为社区的核心景观区,链接南北向的社区景观轴,与沿街的城市活力轴,整体形成一个充满生命力的“H”轴规划结构。
结合场地条件与规划条件,整个规划产品为15+1F~18F小高层住宅楼(12幢)及若干低层底商配套设施楼组成。规划布局中心景观资源佳位置设置大户型,最大化景观视野;架空层尽可能设置全架空,社区大堂结合下沉庭院及架空层泛会所化,提高社区品质。


(鸟瞰效果图)
0
3
外立面
项目整体风格为现代雅奢,白金色调,设计提取长沙非遗手工棕编符号,通过现代手法转译,形成横纵交织的立面构成关系,立面采用圆弧倒角与公建化大落地窗,筑就天幕流线立面。顶部弧形流线元素,流体灵动,奢境典雅,增强标识感;塔身层间线条展现轻盈精贵的气质,突出公建化立面的端庄



(入户大堂立面效果图示意,仅供参考,以实际交付为准)
0
4
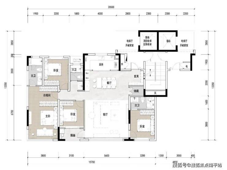
主力户型



长沙招商揽阅
✨✨售楼处电话☎☎400-159-8559转6688(专人接听)✨✽✽✽
✨✨营销中心电话:☎☎400-159-8559转6688【营销中心】✨✽✽✽
✨✨温馨提示:拨打400电话,听到嘀声后,输入分机号6688即可!✨✽✽✽
✨✨☞☞Vip贵宾置业==欢迎来电预约尊享内部折扣===匠心钜制恭迎品☜☜
免责声明:本宣传资料所有文字、数据、图片及所标尺寸等仅为本项目建设区域设计效果的表达和示意,为要约邀请,不构成要约内容,相关内容不排除因政府相关规划、规定及其他原因而发生变化,一切有关房屋的具体信息以书面合同及政府最终审批文件为准。免责声明:本文章文字、数据和图片皆来源网络,如有侵权请告知立马删除,数据图片仅供参考,不作为邀约或承诺。