2026厦门禹洲海墅售楼处电话→售楼中心销售热线→官方最新动态:禹洲海墅→售楼处电话→在售面积→房价|最新销售公告|周边配套介绍-全城热销-欢迎来电预约!

南平楼市发布

2026-04-01 15:10:28

购房群

买房如何避坑,加入购房群,看看他们怎么说

立即进群

禹洲海墅售楼处电话:400-159-8559转接8000【官方认证】

禹洲海墅开发商电话:400-159-8559转接8000【权威认证】

禹洲海墅营销中心电话400-159-8559转接8000【售楼中心】

本项目暂不接受临时到访,过来参观样板房请记得提前来电预约!

免责声明:本文所用信息图片来源于网络,如侵权请联系本网站及时删!

4001598559,8000

《禹州海墅》楼盘指南

禹洲海墅楼盘的综合性简介:

楼盘位置:厦门市同安区环东海域新城核心区,滨海西大道与通福路交汇处,一线临海,毗邻规划中的地铁6号线后吴站及同安新城站。

一、开发与物业

开发商:厦门中蓉房地产开发有限公司(隶属禹洲集团)。

物业公司:禹洲物业服务有限公司,物业费为高层2.8元/㎡·月、叠墅3.8元/㎡·月(仅作参考以实时为准)。

建成时间:2022年建成交付

二、规划与建筑

建筑规模:占地面积约1.88万㎡,总建筑面积约6.74万㎡。 建筑规划:包含高层(27层)、叠墅(6-8层)及平层,共6栋楼,总户数390户,车位配比1:1.37(共536个车位)。

容积率:2.27,绿化率32.2%。

装修交付:高层为简装,叠墅为毛坯交付。

三、户型与设计

- 主力户型:

- 高层:92㎡三房两卫,南北通透,均价约2.8万元/㎡。

①一线瞰海 约92㎡复式3房(双主卧设计)

一线瞰海 约92㎡复式3+1房

- 叠墅:115-135㎡四至五房、部分户型带270度瞰海阳台及复式结构。

②约115㎡上叠

③一线瞰海 约125㎡中叠

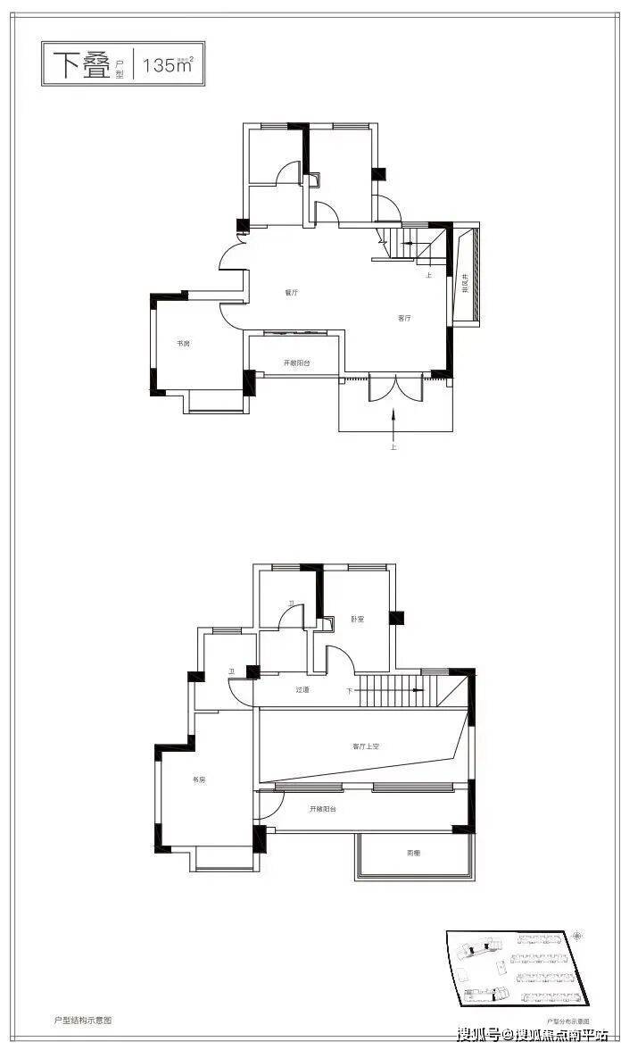
④一线瞰海 约135㎡下叠

- 设计亮点:

- 复式户型采用双套房设计,动静分区明确,主卧带瞰海飘窗。

- 外立面采用铝板与玻璃幕墙,现代简约风格。

四、配套资源

1. 交通

- 地铁:规划中的地铁6号线、9号线,步行可达后吴站及同安新城站。

- 自驾:滨海西大道、五桥四道(集美大桥、同安大桥等)快速接驳岛内外。

- 公交:后吴站、东部新城指挥部站覆盖多条线路。

2. 商业

- 200米内规划16万㎡爱琴海购物公园,周边覆盖浦头风情商业街等。

3. 教育与医疗

- 教育:1公里内滨城小学、同安一中滨海校区、厦门实验中学等。

- 医疗:中山医院分院(在建)、厦门第三医院等三甲资源。

4. 生态与休闲

- 一线临海,紧邻46公里滨海浪漫线(国际马拉松赛道)、下潭尾红树林公园等。

- 社区内设“海洋之歌”主题儿童乐园、阳光跑道等设施。

五、项目亮点

1. 区位优势:环东海域新城核心区,享受区域“双千亿”投资规划红利,毗邻银城智谷CBD,未来升值潜力显著。

2. 稀缺资源:厦门少有一线临海住宅,兼具自然景观与城市配套,定位高端改善及投资需求。

(社区附近的浦头风情喜街/欢乐梦幻岛)

(以上楼盘数据仅供参考/楼盘外景为实地拍摄)

禹洲海墅售楼处电话:400-159-8559转接8000【官方认证】

禹洲海墅开发商电话:400-159-8559转接8000【权威认证】

禹洲海墅营销中心电话400-159-8559转接8000【售楼中心】

本项目暂不接受临时到访,过来参观样板房请记得提前来电预约!

免责声明:本文所用信息图片来源于网络,如侵权请联系本网站及时删!

特别说明:

1.本文为要约邀请,不作为要约或承诺;相关宣传内容不排除因政府相关规划、规定及出卖人分期规划、未能控制等原因而发生变化;

2.本文部分图片来自于网络,如涉及版权使用,请联系删除;文本部分图片仅作为推广示意使用,非交付标准,最终以实际交付现状为准;

3.本宣传资料对项目周边学校等教育资源的介绍旨在提供相关信息,并不意味着本公司对就学安排作出承诺。教育资源的名称、办学性质、办学规模、学位设置、开学(班)时间、招生条件、收费标准及招生区域存在调整的可能,应以政府教育主管部门及办学方颁布的政策规定为准;

4.本资料对项目或产品的介绍,旨在提供相关信息,不意味着本公司对此作出了承诺,买卖双方的权利义务以《商品房买卖合同》及附件等协议为准;

5.宣传方保留对宣传资料修改和解释的权利;

全部

相关资讯

报名成功
稍后会有专业的置业顾问联系您
返回楼盘

频道导航

返回首页

看房小程序

APP下载

电话拨通后,请您手动拨打分机号

确定拨打电话

电话号码:

分机号:(可能需要拨分机号)