温州招商保利·天曜序
售楼处免费咨询热线:400-159-8559转8666【售楼中心】
线上预约——尊享优价——售楼处中心——线上唯一售楼处
楼盘项目介绍,包含楼盘简介、售楼电话、区位优势、交通、周边商业配套等楼盘资料
温馨提示:本项目暂不接受临时到访,过来参观样板房请记得提前来电预约!

【招商保利·天曜序】
江滨封面奢宅 第四代低密藏品
—百年江滨路 显赫温州芯—

产品定位与核心目标
设计主题
:以 “温州保利天曜 - 精致与江城的对话” 为核心,融合 “江、屿、山、河、城” 五大元素,传承温州 “斗城九山” 历史风韵。

核心挑战
:需在有限空间内,实现 “鹿城” 豪宅氛围定义、空间与细部精工雕琢、丰富穿插体验三大目标。

价值导向
:结合温州 “千年商港、斗城门楣” 在地文化,契合客群对 “厚重层次、老钱风” 的价值认同,用现代雅奢风格演绎在地风物与游园志趣。


产品基本信息

项目
详情
项目位置
温州老城洪殿板块,鹿城区第三个上市的第四代住宅 —— 暨温州市核心片区洪殿单元 D-10 地块,东面为安置小区鹿韵里,南面为洪殿老旧小区,西面为碧桂园滨江壹号,北面为江滨路
首开信息
10 月 12 日首开第 2、3、9 幢,计建筑面积 19844.8㎡,共 12 套叠墅和 133 套高层住宅
规划设计
规划东区与西区,实行高低配设计。西区地上住宅建筑面积 48862.14㎡,配建 12 班幼儿园 5496.20㎡,设有会所接待厅、健身区、私宴厅、恒温泳池等小区公共配套
总户数
约 752 套
户型面积
高层建筑面积为110-125-128-139㎡;叠墅建筑面积为 144-174㎡
房屋均价
叠墅公开预销售毛坯均价 47743 元 /㎡;折后优惠以实际为准
高层公开预销售毛坯均价 33851 元 /㎡ ;折后优惠以实际为准
交付时间
预计于 2028 年 12 月完成全部交付使用
配套设施
打造东西双会所,有恒温泳池、健身房、女王空间、私宴厅、台球室、棋牌室、茶室、咖啡书吧、三合一内球馆、全楼栋全龄段架空层、风雨连廊等;还有温州首个地下室中央车站,首个篮球、皮克球、羽毛球三合一室内球馆,首个奈尔宝室内亲子空间等

1.产品位置


江滨路正核
立千年商港根脉,同框温州古今繁盛
落位 5.6 公里江滨路正核地段,左手串联朔门古港的千年商脉,右手衔接滨江 CBD 的现代繁华,让温州的历史根脉与当代澎湃在此同框,成就兼具人文底蕴与时代价值的稀缺居所。

1. 锚定江滨路正核,占据城市价值高地
江滨路是温州城市发展的核心脉络,全长 5.6 公里的路段中,项目所处的 “正核” 位置尤为关键:
它并非普通滨水路段,而是串联城市核心资源的 “黄金轴线”,既近享江滨沿线的自然景观,又深度融入城市交通与生活网络,区位价值远超一般板块;
正核地段意味着配套的高度聚合,无论是商业、交通还是文化资源,都处于 “触手可及” 的最优半径内,居住便利性与资产保值性更有保障。

2. 左手千年古港,右手现代 CBD
项目所在位置实现 “古今繁盛” 的无缝衔接,人文与时代感双重叠加:
溯源千年商脉
:紧邻朔门古港,这里是温州 “千年商港” 的根脉源点,承载着城市的历史记忆与文化底蕴。居者闲暇时可漫步古港,感受千年商贸文化的厚重,让生活浸润人文气息;
对话现代繁华
:直连滨江 CBD,这里是 “世界温州” 的核心引擎,汇聚高端写字楼、国际商业与前沿配套。居者能快速接入现代都市的高效与便捷,享受国际化的生活方式,实现 “入则静谧、出则繁华” 的理想居住状态。

一横三纵立体路网
环伺全城,瞬息抵达心之所向
坐拥 “一横三纵” 核心路网,以车站大道、惠民路、民航路为骨干,构建高效立体的交通网络,彻底打破空间距离限制,实现 “瞬息通达温州全城” 的便捷出行体验。

1. “一横三纵”,织密全城交通网
“一横” 为基
:依托横向主干道,快速衔接城市东西方向,串联起老城核心与新兴板块,无论是前往鹿城商圈还是瓯海片区,都能保持高效通勤;
“三纵” 发力
:车站大道、惠民路、民航路三条纵向动脉并行,纵向贯穿城市南北,北可抵瓯江沿岸,南能达瓯海中心,轻松对接火车站、机场等交通枢纽,覆盖日常出行、跨区通勤等多元需求。
2. 立体路网加持,出行效率拉满
无拥堵短板
:多条主干道环伺,可灵活选择出行路线,有效规避单一道路拥堵风险,尤其在早晚高峰时段,能大幅缩短通勤时间;
瞬息触达全城
:借助 “一横三纵” 路网,从项目出发,无论是前往市中心商圈购物、政务中心办事,还是前往机场、高铁站远行,均能实现 “短时间、高效率” 抵达,真正做到 “心之所向,瞬息即达”,匹配高端人群对出行便捷性的高要求。

2.产品规划设计


【立面】城市之帆
以公建化立面,立江滨路天际奢居地标

作为温州首创公建化立面的奢居作品,以 270 度全弧角设计与显贵冠顶造型,同频全球一线人居美学,将建筑化作 “城市之帆”,成为江滨路不可替代的天际线地标。
1. 温州首创,公建化立面定义美学新标
打破温州传统住宅 “涂料 + 瓷砖” 的立面局限,首次将公建化设计(常见于 CBD 写字楼、高端酒店)引入住宅领域:
立面采用大面积玻璃与金属线条组合,摒弃多余装饰,呈现简约纯粹的现代质感,视觉上更具高级感与通透感;
公建化设计让建筑外观更显规整统一,避免传统住宅立面 “杂乱感”,从根源提升社区整体档次,成为区域内的美学标杆。

2. 270 度全弧角 + 显贵冠顶,塑造地标辨识度
270 度全弧角外立面
:突破方正建筑的刻板形态,以流畅的弧形线条包裹建筑,从不同角度看均能呈现 “城市之帆” 的动感轮廓,既增强视觉冲击力,又让室内拥有更广阔的观景视野,尤其能最大化收纳江滨路与城市景观;
显贵冠顶设计
:建筑顶部采用独特的冠顶造型,搭配定制灯光系统,夜间点亮时如同 “城市灯塔”,强化地标属性,同时从细节处彰显项目的奢居定位,让建筑在天际线中极具辨识度。

3. 同频全球一线,人居美学与实用兼顾
立面设计不仅追求颜值,更深度契合全球高端人居的 “实用美学” 逻辑:
大面积玻璃选用 Low-E 节能玻璃,兼顾采光、隔热与隔音,既保证立面通透感,又提升室内居住舒适度;
金属线条与公建化工艺具备更强的耐候性,长期使用不易褪色变形,让 “天际地标” 的美学质感历久弥新,兼顾美观与耐用。
【大门】约 60 米礼序门庭
以酒店式尊仪,开启归家高光时刻
打造约 60 米超奢礼序门庭,融合酒店式落客设计与高门大宅气场,用恢弘尺度与精致细节,为居者营造 “出入皆从容” 的尊贵归家体验,重新定义社区入口的仪式感标准。

1. 60 米超阔尺度,立显大宅气派
常规社区门庭多在 10-20 米,项目以约 60 米的超阔尺度突破局限:
横向延伸的门庭形态形成强烈的视觉冲击力,搭配对称式布局与高端材质,从入口就彰显 “高门大宅” 的恢弘气场,区别于普通社区的紧凑感;
宽阔的门庭空间不仅是视觉符号,更能容纳多人、多车同时进出,避免早晚高峰的拥堵,让归家动线更显从容。

2. 酒店式落客设计,复刻高端体验
门庭融入五星级酒店的落客动线设计,细节处拉满尊荣感:
设置专属落客区,搭配遮雨廊架与迎宾灯光,无论是驾车还是步行归家,都能享受类似酒店的 “门童式” 礼遇,下车、进门的过程更显优雅;
落客区与社区内部动线无缝衔接,减少外部停留时间,既保障居者隐私,又提升归家效率,让 “从下车到进门” 的每一步都充满仪式感。

3. 礼序感贯穿,重塑归家心境
门庭不仅是物理入口,更是 “城市喧嚣” 与 “社区宁静” 的过渡空间:
从外部街道进入 60 米门庭,恢弘的尺度与静谧的氛围能瞬间隔绝外界干扰,帮助居者快速切换 “工作模式” 至 “居家模式”;
门庭周边搭配精致景观与软装陈设,让归家不再是简单的通行,而是一场充满尊荣感的 “仪式之旅”,契合高端人群对生活品质的追求。
【园林】东西双园十境
翠隐都市里的江滨诗意栖居
汲取江滨路地脉灵感,融合温州 “山水斗城” 的市井底蕴与江湾假日的自然意境,打造 “一城双轴・五境归心” 园林盛景,让居者在都市中私享翠意环绕的诗意生活。

1. 礼城开篇:以三大场景立显高端仪式
园林入口以 “礼城” 为核,通过三大场景构建第一重尊荣感:
超级城市界面
:打破传统社区的围墙局限,以开放且精致的沿街景观,形成与城市对话的高端界面,彰显社区品质;
四季长街
:沿街种植四季绿植,让四季景观随季节更迭,行走其间可感受不同时令的自然之美;
瓯曜门厅
:作为社区主入口,搭配仪式感水景与灯光,既是归家的起点,也是彰显身份的 “第一印象”。

2. 双轴串联:划分礼仪与生活的双重动线
以东西、南北双轴为骨架,串联园林核心场景,兼顾社交与私密需求:
东西轴线:礼仪社交体验轴
:串联瓯曜门厅、江屿镜庭、水庭雅集三大场景,主打高端社交与礼仪体验,适合邻里交流、圈层活动;
南北轴线:里坊画廊归家路
:以 “里坊” 为设计灵感,打造充满市井温情的归家动线,沿途搭配景观小品与绿植,让归家成为穿越画廊的惬意之旅。
3. 五境归心:全龄场景的自然沉浸式体验
景观分区
(五境)
对应主题
核心景观
节点
功能定位
礼城(SUPERINTERFACE)
古城仙鹿、帆影江出
街角花园、四季长街、天曜门厅
超级城市界面、礼序入口、全龄亲子与有氧社交
府第(STEREOSCOPIC CLUBHOUSE)
水分阡陌、屏风画楼
天曜江湾、立体游廊
无风雨归家、立体花园、会所功能承载
江屿(FOUR SEASONS CORRIDOR)
林光江屿、山辉川媚
趣游山屿、涟漪草地、轻氧聚场
亲子活动、户外社交、运动休憩
堂前(FOUR SEASONS CORRIDOR)
包家门外柳垂垂(在地诗意)
邻里客厅
归家入户、邻里互动
坊园(ISLAND GARDEN)
清潭石深、绿筱傍密
沐岩花园、静谧庭院
低密叠墅私享、秘境度假体验
【会所】温州首个双奢华会所
显赫与隐贵并存的顶奢生活场
打造温州首个双奢华会所,以远超市场常规的规格,分别构建 “显赫世界的温州门面” 与 “宁静奢华的家族私厅” 两大主题空间,更奢配温州首个光厅及中央车站,为居者呈现兼具顶奢仪式与私密雅逸的双重生活体验。

1. 西会所:显赫世界的温州门面,定义高端社交排场
西会所聚焦 “对外社交”,以大气格局与全维配套,打造匹配塔尖人群的高端会客场域:
核心功能覆盖多元需求
:涵盖接待厅、健身区、大私宴厅、泳池与庭院,既能满足日常健身需求,也能承载大型商务宴请、家族聚会等高端活动;
仪式感拉满
:大私宴厅对标星级酒店包厢规格,搭配专业餐饮服务支持;泳池采用恒温设计与景观化装修,让运动成为沉浸式享受;庭院则为户外社交提供雅致空间,尽显 “温州门面” 的显赫气场。






2. 东会所:宁静奢华的家族私厅,守护私密生活雅趣
东会所侧重 “对内生活”,以温馨氛围与多元休闲场景,打造专属于业主的私密放松空间:
功能设计更贴家庭日常
:包含接待厅、水吧台、咖啡书吧、桌球室、小私宴厅、品茶室、棋牌室与庭院,覆盖休闲、娱乐、轻社交等多重需求;
体验感更显细腻
:咖啡书吧可满足阅读、办公需求,品茶室与棋牌室适配圈层小聚,小私宴厅适合亲友小范围聚餐,整体氛围宁静私密,让居者在家门口就能享受 “隐贵” 的生活质感。




3. 温州首个光厅 + 中央车站,升级归家顶奢仪式
双会所之外,更以两大 “温州首个” 配置,重构归家体验:

温州首个光厅
:以大面积玻璃与灯光设计,打造通透璀璨的过渡空间,让从室外进入会所的过程充满光影仪式感;
中央车站
:借鉴高端酒店落客区设计,提供专属车辆停靠与迎宾服务,从下车到进入会所,每一步都彰显顶奢礼遇,彻底颠覆传统社区的归家动线。
3.产品面积户型
温州首个纯粹四代宅
新标下的超 100% 极致使用率
作为温州首个严格遵循新规标准打造的纯粹四代宅产品,拒绝 “概念嫁接”,以新规为核心赋能赠送面积最大化,实现超 100% 极致使用率,重新定义温州四代住宅的纯粹性与实用性。
1. 温州首个 “纯粹” 四代宅,新规标准落地
区别于市场上 “部分空间沾边四代理念” 的产品,本项目是温州首个完全依照四代宅新规标准打造的纯粹形态:
从建筑规划、空间布局到生态配置,全维度贴合新规对 “立体生态住房” 的要求,不存在 “打擦边球” 的设计,确保四代宅的核心优势完全落地;
纯粹性意味着居住体验的统一,社区内所有户型均享受四代宅的空间与生态红利,避免 “部分户型优、部分户型普通” 的差异感,居住品质更有保障。
2. 新规赋能赠送面积,使用率超 100%
依托四代宅新规对 “空中花园、垂直绿化空间” 等的容积率计算规则,实现赠送面积最大化:
新规允许部分符合条件的空间不计入或减半计入容积率,项目借此打造大量可实际使用的赠送空间,如超大空中花园、设备平台等;
最终实现超 100% 的极致使用率,意味着建面 100㎡的户型,实际可使用面积能突破 100㎡,让居者以同等购房成本,享受更大的居住空间,性价比远超常规住宅。
3. 高使用率≠牺牲品质,实用与舒适兼顾
极致使用率并非以 “压缩公共空间” 或 “降低空间舒适度” 为代价:
赠送空间均为 “可正常使用” 的完整区域,如空中花园进深足够放置家具、打造功能区,而非 “狭窄过道式” 的鸡肋空间;
同时保障社区公区品质,如开阔楼间距、完善的园林配套等,让 “高使用率” 与 “舒适居住” 并行,真正将新规红利转化为居者的实际生活优势。
客厅全景舱设计 270°三面瞰景视野。端厅式设计,三面瞰景的“全景舱”悬浮于空中,超42米采光瞰景尺度,多达10处的开窗面,搭配270°揽景双露台,天地无垠瞭望。
约3.15米豪宅级层高 启幕高阶生活。远高于普通住宅的3.15米层高,前瞻性设计重塑豪宅垂直空间,提升空间感同时,为装修设计预留充足发挥余地。
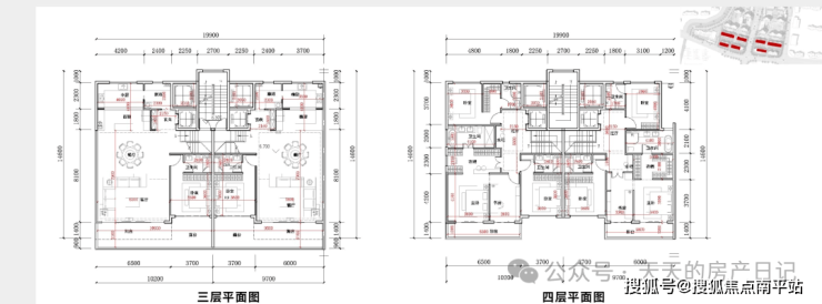
高层户型



叠墅户型

下 叠


中 叠

上 叠

以上叠墅户型仅供参考
温州招商保利·天曜序
售楼处免费咨询热线:400-159-8559转8666【售楼中心】
线上预约——尊享优价——售楼处中心——线上唯一售楼处
楼盘项目介绍,包含楼盘简介、售楼电话、区位优势、交通、周边商业配套等楼盘资料
温馨提示:本项目暂不接受临时到访,过来参观样板房请记得提前来电预约!
免责声明:本宣传资料所有文字、数据、图片及所标尺寸等仅为本项目建设区域设计效果的表达和示意,为要约邀请,不构成要约内容,相关内容不排除因政府相关规划、规定及其他原因而发生变化,一切有关房屋的具体信息以书面合同及政府最终审批文件为准。免责声明:本文章文字、数据和图片皆来源网络,如有侵权请告知立马删除,数据图片仅供参考,不作为邀约或承诺。