保利下大垅项目案名公布!保利奕系华中首作!
保利星宸天奕售楼处电话☎:400-159-8559转接6666【售楼处已认证】
长沙保利星宸天奕营销中心电话☎:400-159-8559转接6666【营销中心已认证】
长沙保利星宸天奕开发商售楼电话☎:400-159-8559转接6666【开发商已认证】

备受关注的保利下大垅项目案名公布:保利星宸天奕。
项目是保利发展顶序「奕系」的华中首作,「星宸」凝聚星辰与宸宇之意,呼应长沙星城美誉。
据悉,项目预计下周开放展厅,4月开放售楼部。

目前保利奕系在广州、上海、杭州等城市都有作品,长沙的保利星宸天奕,品质也值得期待。

长沙保利星宸天奕营销中心电话☎:400-159-8559转接6666【营销中心已认证】
长沙保利星宸天奕开发商售楼电话☎:400-159-8559转接6666【开发商已认证】
保利星宸天奕,即去年10月成交的开福053号地,楼面价约8497元/㎡。
项目位于开福中心,近芙蓉路、东风路两大城市主干道,1公里内可换乘地铁1号线、6号线。
周边有华创国际广场、富兴时代等商业体,紧邻湘雅医院,北侧规划一所九年制学校,有望纳入学区范围。

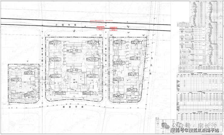
根据今年1月长沙市资规局的批前公示,项目共分为A、B、C三个地块,总建面约17.35万㎡,容积率2.3-4.0,建筑限高100-150m。
共21栋高层住宅,楼层23-31层,B地块配备下沉庭院会所,三个地块之间通过人行天桥连接。

长沙保利星宸天奕营销中心电话☎:400-159-8559转接6666【营销中心已认证】
长沙保利星宸天奕开发商售楼电话☎:400-159-8559转接6666【开发商已认证】
目前网上曝光了项目的4张户型图,分别是120㎡、135㎡、165㎡和185㎡,综合得房率在110%以上。(仅供参考)




长沙保利星宸天奕营销中心电话☎:400-159-8559转接6666【营销中心已认证】
长沙保利星宸天奕开发商售楼电话☎:400-159-8559转接6666【开发商已认证】
免责声明:本宣传资料所有文字、数据、图片及所标尺寸等仅为本项目建设区域设计效果的表达和示意,为要约邀请,不构成要约内容,相关内容不排除因政府相关规划、规定及其他原因而发生变化,一切有关房屋的具体信息以书面合同及政府最终审批文件为准。
免责声明:本文章文字、数据和图片皆来源网络,如有侵权请告知立马删除,数据图片仅供参考,不作为邀约或承诺。