

【小区大门】
主入口设计宽度达80米,高度近12米,灵感源自岳麓山脉的壮丽天际与湘江波涛的涌动,铸就了一幅别具匠心的景观画卷。在材质的选择上,精心采用了香槟金不锈钢线条勾勒装饰、爱马仕灰大理石铺陈、以及手工精制的黑山石,这些高端硬核材质的融合,不仅呈现出非凡质感,更避免了任何形式的材料堆砌,彰显了极致的审美品味。精选多种奢华石材精心打造,辅以高端定制景德镇陶瓷釉面艺术砖,彰显独特艺术魅力。此单面景观墙造价高达20万元,尽显奢华风范!


【下沉庭院】

【归家风雨廊】





【单元入户大门】



【中庭花园】


【小区会所】✅长沙邦泰观宸售楼处电话:✆✆看房预约热线 400-159-8559转接8666 【贵宾热线】【售楼处线上电话】
会所精心打造了私宴厅、健身房、棋牌室、瑜伽室、影音室、普拉提室及雪茄品酒吧等七大专享功能空间,仅供335户尊贵业主及其贵宾享用,不对外开放。这一举措彰显了对业主品质生活的深度承诺与尊崇。



【地下车库入户大堂】星空顶

【户型产品】✅长沙邦泰观宸售楼处电话:✆✆看房预约热线 400-159-8559转接8666 【贵宾热线】【售楼处线上电话】
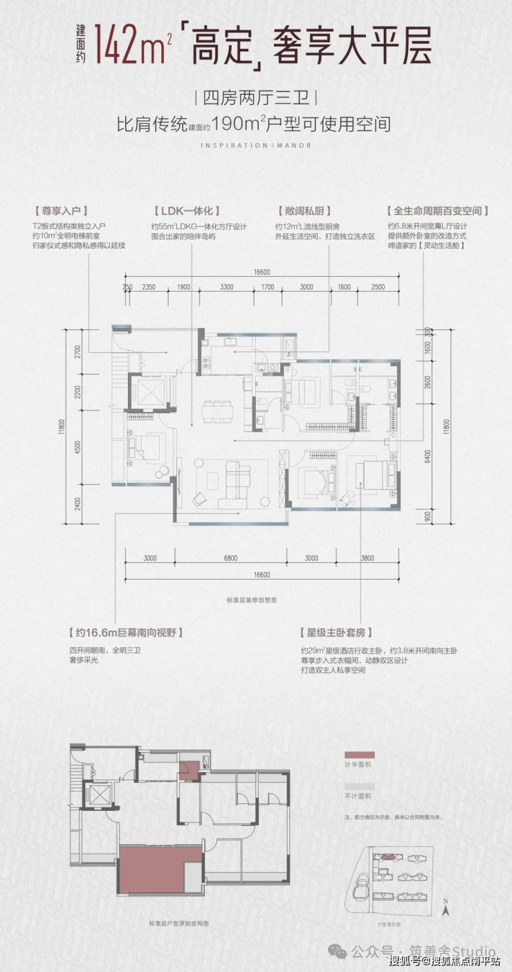
邦泰观宸项目,建筑面积约7.2万平方米,总共6栋住宅,共计335户温馨家园。项目以1.76的超低容积率,成为长沙市中心近15年来推出的容积率最低的地块,彰显稀缺价值。每座住宅均为板楼设计,配备两梯两户或一梯两户的人性化配置,确保居住舒适度。全新规产品,得房率高达120%,提供142、178、181平方米三种精致户型,满足不同家庭的生活需求。
户型的面宽约16.6至21.6米,客厅采用宽敞大方厅设计,开间达6至7米,空间震撼,尽显气派。每户均为双套房设计,主卧配备超大豪华衣帽间,居住体验更加舒适惬意!



约142㎡边户,客厅开间阔达6米,领先长沙同级别户型设计,空间尺度非凡。三卧室朝南,其中两卧室配备独立套间,生活分区清晰,尊享私密。尤其值得一提的是主卧,特设约15.5米超长转角大飘窗,270°全景环幕视野,从衣帽间到主卫,三面皆可欣赏窗外美景,特别是西侧户型,三面尽享江景风光,彰显生活品质。

【样板间】








【建筑立面】
邦泰观宸匠心独运,打造360°全景环绕式建筑立面,融合全玻璃幕墙、铝板与金属线条,巧妙运用飞檐冠盖与转角圆弧设计,树立老城心地标性建筑新典范。此外,项目标配高端全系统门窗,局部选用三玻中空夹胶玻璃,彰显对业主居住体验的深度考量与精雕细琢。✅长沙邦泰观宸售楼处电话:✆✆看房预约热线 400-159-8559转接8666 【贵宾热线】【售楼处线上电话】
免责声明:本宣传资料所有文字、数据、图片及所标尺寸等仅为本项目建设区域设计效果的表达和示意,为要约邀请,不构成要约内容,相关内容不排除因政府相关规划、规定及其他原因而发生变化,一切有关房屋的具体信息以书面合同及政府最终审批文件为准。免责声明:本文章文字、数据和图片皆来源网络,如有侵权请告知立马删除,数据图片仅供参考,不作为邀约或承诺。