➢ ➢珠海【华发香山湖畔】售楼处位置:400-159-8559转接7788(售楼中心)
➢ ➢珠海【华发香山湖畔】售楼处电话☎️400-159-8559转接7788(专人接听)
☎️☎️温馨提示:拨打400电话——听到嘀声后——输入【7788】即可通话☎️☎️
➢ ➢开发商直售-不收取任何费用-请提前一小时预约看房-享额外售楼处专属内部团购优惠➢ ➢

珠海华发香山湖畔
华发科技+好房子迭代力作
国际酒店化智慧住区

开发企业:华发股份
产品类型:高层/超高层住宅、商业
建筑风格:现代
01
“好房子”核心亮点
01 核心地标
珠海的高端住宅超高层项目,作为新一代产品。利用项目地理优势和周边配套,通过一体化设计串联资源,打造香洲新香洲核心区的代表性作品。
02 城中绿洲
城市中心的屋顶绿洲,将度假酒店的松弛感与奢华品质融入城市生活,通过无边际泳池,日咖夜酒,林间客厅等精心设计的休闲空间,使人们体验到静谧自然与高端社交的结合。
03 智慧科技
全屋精装智能,实现了29项数字智慧社区功能的落地,还配备了19项智能家居功能,同时在绿色低碳方面达到了绿建二星标准。其优+生活配套更是在架空层泛会所内设置多元化的功能区域,旨在全方位、全年龄段地满足业主的社群生活需求。
04 星级配套
酒店式住宅配套。旨在将艺术、格调、精致的国际化生活方式传递给业主。27项私享功能空间打造高端私人会所。

02
项目概况
1、区位
项目位于珠海南北中轴——迎宾北路与东西主轴——梅华路交汇处,地处珠海政经文教中心,区域内集中了珠海超80%的市政单位、金融总部、文化教育等机构,北临凤凰山南麓,南瞰迎宾路板障山脉,地势北高南低,位于新老香洲板块的中心与景观中轴,是珠海政治、经济、文教、体育的中心。

▲ 项目总规划图
2、价值
香山湖畔作为华发在市区精心打造的首个“华发+新一代好房子”系列高端产品,囊括了“交通+文教+生态+商业+医疗+政务”六大配套,共同构成了香山湖畔综合生活圈。

▲ 华发科技+好房子产品体系
3、规划
项目规划强调与城市整体风貌自然融合,项目自南向北,从文化宫方志馆、南塔、北塔、到凤凰山脉依次升高,打造极具美感的天际线,同时采用板式建筑和全面宽玻璃设计,结合独有的看山资源,实现景观及朝向资源最大化。

▲ 鸟瞰图
03
外立面
塔楼立面采用竖向线条主边框,营造秩序感与挺拔感,横向线条的飘板, 创造出了独特的水平延伸感,勾勒同频国际的时代审美。采用无山墙设计,以景观资源最大化为导向,所有外墙面能开尽开,实现高窗墙比。塔冠呈现极富生命力的曲线,赋予建筑张力,打造金色塔冠美学。-具体更多详情,拨打售楼热线:☎️☎️400-159-8559转接7788【售楼中心】


▲精工高定立面
04
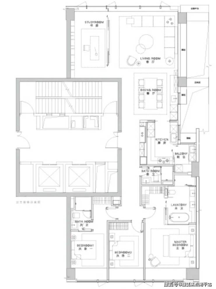
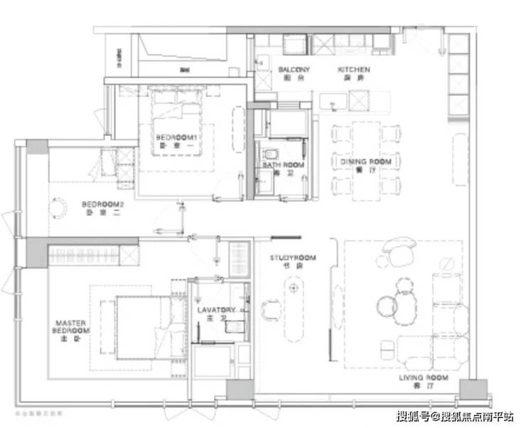
主力户型
项目涵盖建面约108-200㎡面积段户型,户型方正,LDKB厅餐客一体化设计,多面宽南向采光,360°采光楼型,栋栋视野无遮挡,转角主卧270°景观视野。灵活开合拓宽空间。

▲ 户型① 建面约200㎡户型

▲ 户型② 建面约134㎡户型
05
精装设计
200㎡户型硬装设计为灰白绿色调,定制全铜入户门+隐藏智能门锁,地面天然石材设计;赠送客厅背景墙、木饰面及全屋玻纤壁布。142㎡户型采用定制灰调,天然木质与岩板搭配,柜体材质选用天然影木木皮面板加灯带设计,软装设计搭配皮革、木质、岩石、贵金属,运用不同材质的交叠,与空间体量呼应。

▲ 200m²客厅(实景图)

▲ 200m²主卧(实景图)

▲ 134m²客厅(实景图)
06
社区规划
华发的生态社区规划,提供礼序归家体验、高效服务动线、邻里社交空间,旨在营造一个环境优美、功能完善、安全舒适、精神富足的居住环境。
1、酒店归家礼仪
67米宽雨棚营造无雨落客区,挑高11.5米大堂,形成宽敞入口空间。屋顶花园通过风雨连廊串联,实现无雨步行归家系统,提升归家体验。

▲ 首层尊贵迎宾式入口 (实景图)

▲ 空中归家大堂(实景图)
2、香山会馆
香山会馆,设置于南北塔架空层区域,定位为国际星级酒店式住宅配套。力将“艺术、格调、 精致”的国际化生活方式,传递给追求高品质生活的业主。27项私享功能空间致力于打造全球领先的高级私人会所,会馆拥有,涵盖:多功能接待厅(茶室)、影音室+ktv复合空间、四点半学堂、儿童娱乐空间等,童年的梦想、青春的汗水、中年的深情、 银发的浪漫等都能找到契合的空间,华发的业主家人们值得拥有一个有温度的社区和最美的归家体验。

▲ 私宴(实景图)

▲ 泳池大堂(实景图)
3、车库
打造美术馆级地下车马厅,配合人脸识别与电动推拉门,营造满满归家仪式感,针对业主需求,不断丰富服务内容,在住宅车库还配备洗车房、储藏室、司机休息室、快递,外卖柜等。

▲ 高品质车库
07
景观规划
景观设计以珠海人文气候为基础引入新加坡度假美学生活理念,打造立体多维空间景观。下沉潮酷乐园,约200㎡互动旱喷水景与城市阳台,网红打卡、趣味活动为一体的活动空间。首层配置多元趣味平层公园,具有休闲、社区属性的绿地,满足观赏性的同时可提供城市野餐,露营,户外活动,市集举办等功能属性。空中繁星花园,城市中心的屋顶绿洲,将度假酒店的松弛感与奢华品质融入城市生活,通过无边际泳池,日咖夜酒,林间客厅等精心设计的休闲空间,体验到静谧自然与高端社交的结合。

▲ 酒店式落客归家(实景图)

▲ 潮酷下沉乐园(效果图)

▲ 无边际户外泳池(实景图)

▲ 高定私享会客厅(实景图)

➢ ➢珠海【华发香山湖畔】售楼处位置:400-159-8559转接7788(售楼中心)
➢ ➢珠海【华发香山湖畔】售楼处电话☎️400-159-8559转接7788(专人接听)
☎️☎️温馨提示:拨打400电话——听到嘀声后——输入【7788】即可通话☎️☎️
➢ ➢开发商直售-不收取任何费用-请提前一小时预约看房-享额外售楼处专属内部团购优惠➢ ➢
免责声明:本宣传资料所有文字、数据、图片及所标尺寸等仅为本项目建设区域设计效果的表达和示意,为要约邀请,不构成要约内容,相关内容不排除因政府相关规划、规定及其他原因而发生变化,一切有关房屋的具体信息以书面合同及政府最终审批文件为准。
免责声明:本文章文字、数据和图片皆来源网络,如有侵权请告知立马删除,数据图片仅供参考,不作为邀约或承诺。