【营销中心】:028-62585717「销售热线」
【置业顾问】:13518186441「微信同步」
【置业顾问】:13668208612「微信同步」
温馨提示:专业一对一热情服务,为了节约您的等待时间,看房请提前致电预约
在现在及未来很长一段时间内,因为5+2区域产品供应结构性原因,高改和塔尖项目的增加,导致开盘、销售节奏将完全不同。高总价项目以小批次如数十套取证为主,分批次少量供应;而取证后,花费一月甚至数月来蓄客,“慢慢卖”成为了常态。“超级节点”之后,房企们又开始蓄力冲刺四季度。据不完全统计,本月5+2区域有近20个项目即将入市,全新项目有14个,并且,有多个项目都是300-500万改善的产品,为市场改善主力客群带来更加丰富的选择。10月15日,成都市发布《成都商业性个人住房贷款转住房公积金个人住房贷款管理办法(修订)》,提出取消“本市缴存”限制,符合条件的异地缴存人也可申请办理“商转公”贷款业务,再次为购房者提供了购房便利。
占地:56.7亩
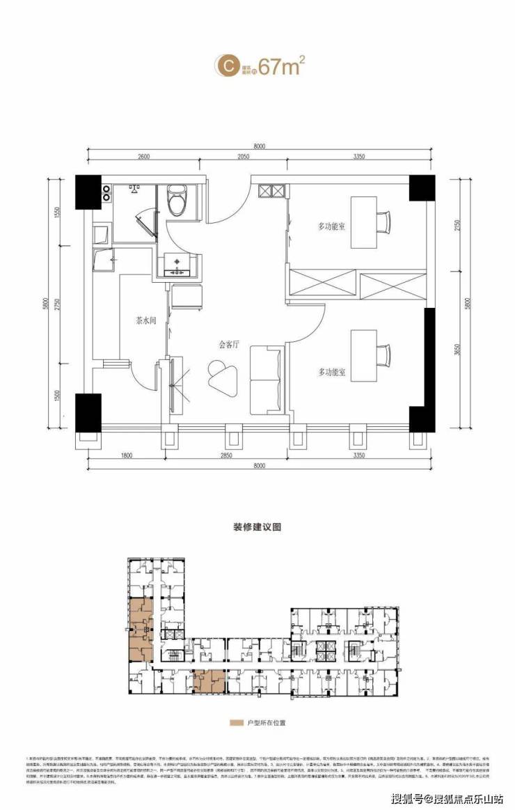
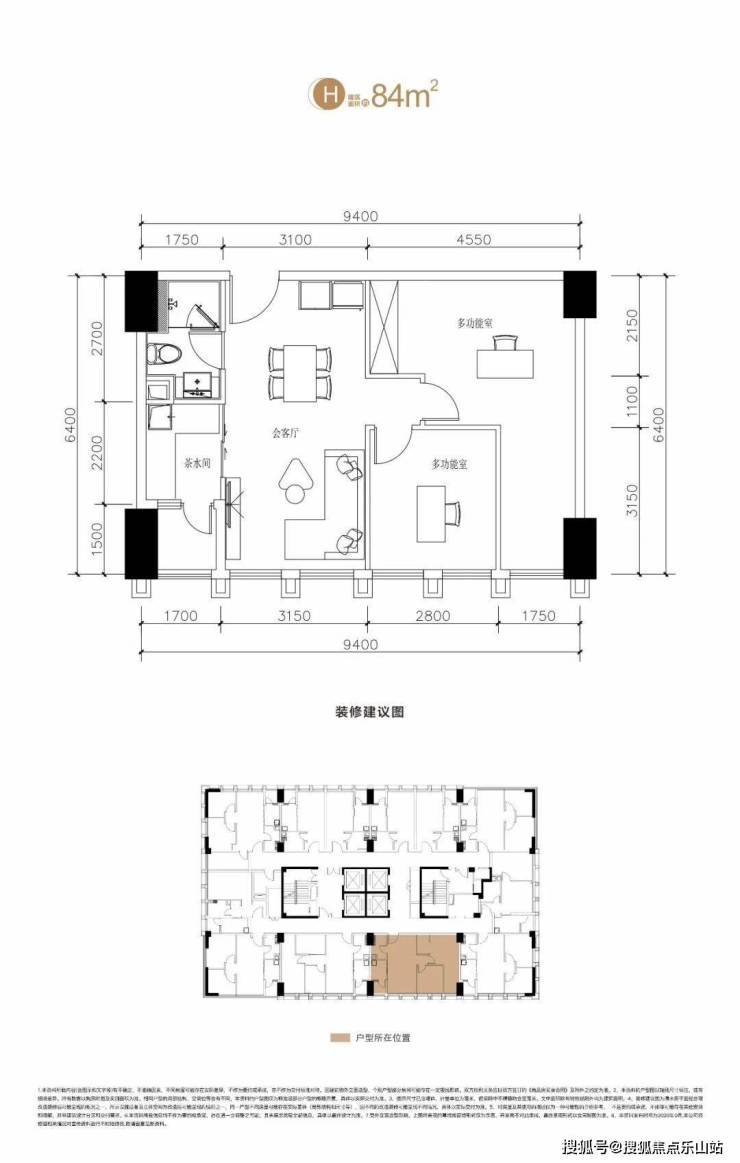
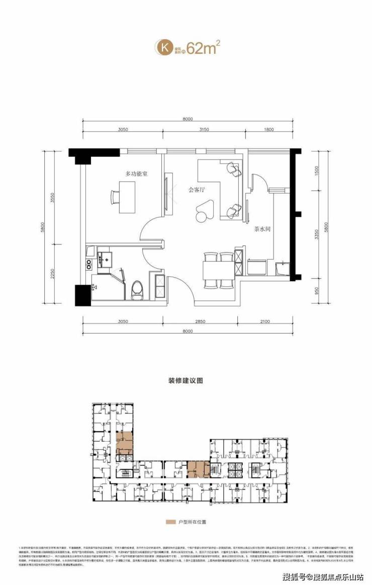
户型:标间(43—52㎡)/套一(62—67㎡)/套二(67—87㎡)/套三(84—120㎡)
公摊:25—30%
交付:精装
总户数:2457户
单价:8400—9000元/㎡
总层高:23F—32F
层高:3米
绿化率:20%
梯户比:6T24/4T12
开发商:碧桂园
物业费:2.4元/㎡
物业公司:碧桂园物业
交房时间:2023年11月
付款方式:按揭、全款、支持首付分期、全款分期

六大购买理由:
1、零门槛买入新一线城市——双流区主中心
2、近享千亿产业园发展红利——成都芯谷
3、便捷的城市级轨交站点——彭镇TOD
4、城市级商业地标,第四大商业街——海德广场
5、标间/套一/套二/套三全面积段产品,满足所有需求
6、总价38万起,清水价买超高性价比类住宅
温馨提示:专业一对一热情服务,为了节约您的等待时间,看房请提前致电预约
免责声明:
以上内容仅作为邀约邀请,涉及的图片为部分区域实拍图和美学畅想图,具体内容请以现场公示和合同约定为准;本文部分资料、部分图片来源于网络,如有侵权请联系我们删除