【营销中心】:028-62585717「销售热线」
【置业顾问】:13518186441「微信同步」
【置业顾问】:13668208612「微信同步」
房地产市场经过过去几十年的发展,基本上也算是经历了完整的牛熊市,市场也变得越来越成熟了。像过去那样普涨和普跌的行情或将都不会再存在了,未来房价的走势会呈现出因城市而分化的趋势。房价走势将会回归到城市基本面及城市自身的楼市供求情况。简单地讲,大城市的房价在未来有望率先止跌回涨,甚至在中长期保持持续上涨也是有可能的;而大多数中小城市的房价就不好说了,继续阴跌的可能性也不小。房价这一个走势规律在其他的房地产市场发展进程中已经被证实了。

⭐区域介绍⭐
项目位于天府新区、黄龙溪古镇旁,是早期在黄龙溪板块开发的项目之一,携手知名建筑、景观、生态治理团队,打造中国西南生态大盘典范。
提及成都的未来一定在国际城南,而提及城南几块为少数人精心准备的土地,本项目则在此名单之列,它独具创意地完美融合自然与生活,演绎着何为成都高端墅居,刷新着对终极置业的想象。
🌲东方的塔希提 世界的桃花源🌲
塔希提岛:世界上最浪漫的岛屿,被称为“最接近天堂的地方”。
12载谨献一座塔希提,为天府创造一座岛,在溪谷,像塔希提一样生活。
四期地块介绍

中国天府·隐奢谧境·岛屿墅作
首开楼栋: 二叠 31#、32#、33# 三叠 34#、35# 平墅 59#、60#、61#
价值点:
三面湖山景观环绕:坡地高处俯瞰视野
浅丘坡地地势,平原上非常少有,建筑层层退台,楼层退台,拥有绝佳山湖景观视野
低容低密:232亩容积率1.17(市场同类举例:2.0容积率且高低配、楼间距近没有景观,私密性差)限墅令下最具别墅感的低密度墅区!
外立面:选用比普通材质贵3-4倍的HPC➕木纹铝板➕干挂石材➕系统玻璃门窗配合简洁明快色彩🟰野奢气息自然的松弛感,市场少有高端质感!
三条景观峡谷:引入溪谷湖山景色,更多自然感受
酒店式入户大堂:超具仪式感归家动线,双首层入户大堂,五星级物业服务,市面唯一!
首推产品,平墅、三叠拼、二叠拼

产品亮点:
1、270度景观面
2、叠拼使用面积430-870平
3、近370平首层空间
4、面宽12米,巨幕LDK
5、超40平双主卧套房


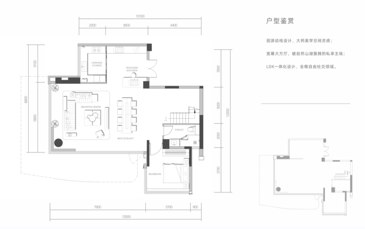
产品户型
叠墅【二叠墅】总高:4F(地上2f、地下2f)
(户型图皆为先一层,后二层)
下叠·364㎡·四室两厅四卫


非花园赠送:190平
花园赠送:190平
层高:1-2F: 3.6米;多功能厅:3.3米
物业费:6.87元/平/月
亮点:270度双面景观、首层使用面积约370平、客厅挑高空间感足、预留私家电梯井、一线景观视野
上叠·365㎡·五室两厅五卫


非花园赠送:210平
露台赠送:190平
层高:3F: 3.6米;4F: 3.3米;多功能厅:3.3米
亮点:四层墅居,带花园和露台、客厅挑高空间感足、270度双面景观、预留私家电梯井、单个露台面积120平、一线景观视野
叠墅【三叠墅】总高:7F
下叠、中叠
非花园赠送面积:100-170平
花园面积:50-150平
层高:1F-3F:3.5米;4F3.3米
梯户比:2梯2户(1梯1户)
物业费:6.87元/平/月
亮点:层层退台视野俱佳、客厅270度景观、户户有院子、面宽12.5米、首层使用面积180-370平、赠送地下多功能厅、预留私家电梯井
下叠·246㎡·四室两厅四卫


中叠·279㎡·四室两厅五卫


上叠·267㎡·四室两厅四卫


非花园赠送:130平
层高:3.3米
梯户比:2梯2户(1梯1户)
亮点:三层墅居、层层退台视野俱佳、客厅挑高空间感足、露台赠送大、预留私家电梯井
【洋房】总高:9F

面积:175平/190平


阳台面积:3.25米宽尺阳台:15平/21平
层高:1F:3.6米;2-9F:3.15米
花园:无
物业费:4.12元/平/月
亮点:一梯两户、四房三卫、双主卧套房、270度景观面
端户·190㎡·四室两厅三卫
中户·175㎡·三室两厅三卫
🌲藏品级观湖独栋🌲

【湖畔观湖墅邸 全国争藏】
建面约199-292㎡藏品级观湖墅邸,是城市最后少数的、难得的别墅产品,具有极高居住与收藏价值;在这可拥一方自然世界,享自在原野生活,臻稀观湖独栋。
【营销中心】:028-62585717「销售热线」
【置业顾问】:13518186441「微信同步」
【置业顾问】:13668208612「微信同步」
温馨提示:专业一对一热情服务,为了节约您的等待时间,看房请提前致电预约
免责声明:
以上内容仅作为邀约邀请,涉及的图片为部分区域实拍图和美学畅想图,具体内容请以现场公示和合同约定为准;本文部分资料、部分图片来源于网络,如有侵权请联系我们删除。