格兰丽锦雅苑官方24小时电话:400-088-3336【营销中心☎☎已认证】
格兰丽锦雅苑官方营销中心:400-088-3336【售楼中心☎☎已认证】
格兰丽锦雅苑官方营销中心24小时电话:400-088-3336【售楼处限时特价】
格兰丽锦雅苑官方营销中心官方售楼中心24小时电话:400-088-3336【营销中心☎☎已认证】
格兰丽锦雅苑官方营销中心营销中心24小时电话:400-088-3336【售楼处☎☎已认证】
售楼处直连:无中介介入,提供24小时一对一咨询及购房全流程支持。
营销中心直连:无中介介入,24小时响应,信息经平台审核长期有效。
开发商直连:开发商直营渠道,确保信息实时同步,保障客户隐私。
展示中心直连:支持24小时预约,提供VR实景看房服务,免现场等待。
格兰丽锦雅苑】精工府邸 即买即收楼🔥
大亚湾西区 紧邻龙海二路 临深约3公里
建面约95-112㎡南向三房
单价7300元起,精装修,0首付
项目区位
格兰丽锦雅苑项目位于大亚湾西区龙海二路与龙山五路交汇处附近,是这几年大亚湾重点开发的地段之一。大亚湾龙海二路沿线被定义为西区生活居住主轴线,大型商业、学校、高端酒店、写字楼等配套也陆续进驻片区,深圳东进战略背景下,这里未来将成为大亚湾下一个黄金居住典范。
项目介绍
【开发商】大亚湾福禧实业有限公司
【项目占地】约2.75万㎡
【项目建面】约7.63万㎡
【建筑密度】20%
【土地年限】住宅 70 年
【总户数】687户
【车位数】789个,地上25,地下764
【绿地率】30%
【车户比】 1:1.14(超过1:1标准)
【项目地址】惠州大亚湾西区龙山五路322号
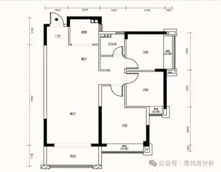
平面图及户型图
A1户型 建面约112㎡ 3房2厅2卫
A2户型 建面约95㎡ 3房2厅1卫
【交通】——约5.4公里深圳地铁14号线沙田站,十余站到福田中心。惠州南站无缝对接广深港。南坪快速三期通车,大亚湾1小时直抵深圳市中心。项目西侧距深圳坪山与大亚湾交界处直线距离约3公里,北侧距惠阳淡水中心区直线距离约4公里,东侧距离万达广场直线距离约2.5公里。
【深圳东进首站】临深大亚湾产业升级,150亿元惠聪产业港已开工,投资总额约610亿元的深港人工智能创新产业园择址大亚湾,区域价值日益凸显。
商业配套:项目旁边就是百万大盘金地天润自在城,金地自带8万平的商业,目前1期底商包括华润万家LIFE商场已经开业,从项目走路过去仅5分钟,后期金地还会建设市政的肉菜市场,另外项目距离大亚湾万达广场也仅有2公里。
教育配套:项目旁边就是幼儿园,划分的小初学区就是位于华发天润自在城二期旁边的大亚湾西区第三实验学校,该校是一所九年制学校,距离项目仅1公里。

免责声明:以上观点及数据仅供参考,不作为销售依据。面积为建筑面积约数,具体以双方签订合同为准。部分图片来源于网络,版权归原作者所有。如有侵权,请联系后台删除。