中粮·福田大悦广场(售楼处)首页网站-中粮·福田大悦广场营销中心-中粮·福田大悦广场欢迎您-楼盘详情-@售楼处

邵阳楼市发布

2025-05-29 15:26:23

购房群

买房如何避坑,加入购房群,看看他们怎么说

立即进群

♎♬中粮·福田大悦广场꧁ 售楼处电话:400-909-3139【☎☎售楼处电话已认】꧂✨✽✽✽✽

♎♬中粮·福田大悦广场꧁ 营销中心电话:400-909-3139【☎☎售楼处电话已认证】꧂✨✽✽✽✽

♎♬中粮·福田大悦广场꧁ 开发商电话:400-909-3139【☎☎开发商电话已认证】꧂✨✽✽✽✽

🦋本项目暂不接受临时到访,过来参观样板房请记得提前来电预约!

🦋为您安排楼盘现场销售全程接待并讲解,给您更贴心的看房体验!

✨✨Vip贵宾置业=欢迎来电预约尊享内部折扣=匠心钜制恭迎品鉴温馨提醒:我们楼盘售楼部400电话没有设置任何所谓的“分机号”,拨打前请仔细甄别,注意保护个人隐私!谨防上当!

中粮·福田大悦广场是世界500强央企“中粮集团”旗下唯一地产投资、管理平台——大悦城控股,打造的商办中心品牌名片。项目位于深圳福田中心区梅彩智谷片区,占地面积约2.8万平方米,总建筑面积约20万平方米,是集高端研发办公、总部大楼、菁英新贵住所、社区配套商业为一体的智慧商务办公综合体。项目峰时用电量大,每月电费支出高昂,对电力的经济性、可靠性、稳定性需求强烈。

央企中粮执笔打造中粮•福田大悦广场,集高端研发办公、总部大楼、菁英新贵住所、社区配套商业于一体的高端商办综合体,未来将以湾区轴芯势能,赋能智谷科创焦点。

【T1栋研发办公基础信息】

【独栋出售】:

总建面积:32000㎡

出售总价:13.6亿

交付时间:现楼

建面约446-2107㎡办公空间

约187米高5A甲级封面商务地标,领潮福田中轴之上,为总部企业造湾芯商务资产。

对标国际商务范本,以中空LOW-E超白钢化玻璃及高性能铝板打造极简幕墙立面,玻璃宽约2.4m,大气磅礴,大美至简。

【T2栋独栋写字楼出售】

建筑面积:约3.2万㎡

出售总价:约13.6亿

楼体高度:100米

写字楼层数:23层

标准层面积:1829㎡

标准层高:4.2m

使用率:71%

大堂面积:650㎡

大堂高度:10m

电梯数量:11部迅达电梯

停车位:800个

产业力量

高尖产业聚集 投资理想承载地

梅彩智谷,对标“曼哈顿+硅谷”,打造新一代信息科技总部基地,近120万平方米的产业空间,预计吸引20万精尖人才,高质量住房需求将大幅提升。

名企共振

商务集群效应 引领总部新封面

中粮+华强+恒利+信利康联袂打造约60万㎡商务集群,数万菁英涌入,更多元的租客来源,易出租、易转手,更多赢的财富资产。

高效便捷

22号线(在建)/9号线双地铁

位于22号线(建设中)地铁口,距9号线梅村站约500米、下梅林站约700米,半小时畅行深圳核芯圈,宜住宜租投资前景广阔。

高配版图

中“芯”生活 1公里醇熟配套环伺

三山:塘朗山丨梅林山丨银湖山

两水:梅林水库丨香蜜湖

四公园:莲花山公园丨彩田公园丨深圳中心公园丨笔架山公园

商业配套:卓悦汇丨佐阾虹湾丨卓悦中心丨皇庭广场

品质可见

实景现楼交付 即买即用拎包入住

以星级酒店为蓝本,实景现楼,品质看得见。即买即用,自住、出租、创客空间、工作室等,百变功能,即刻开启回馈。

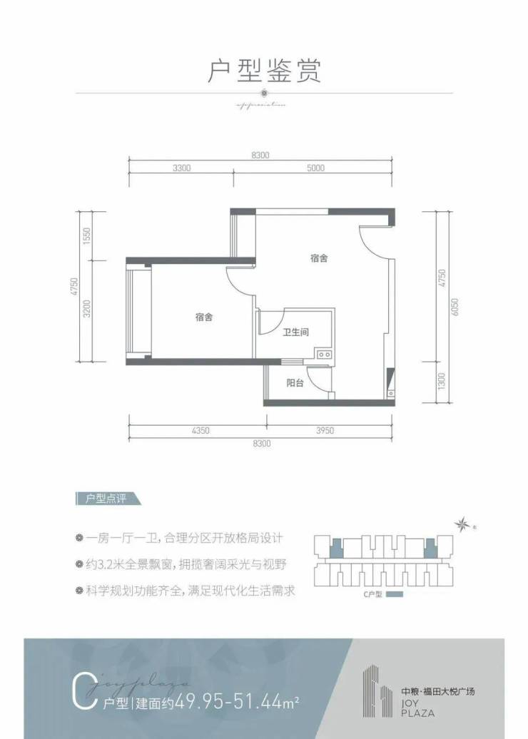
户型图

中粮·福田大悦广场开发商售楼处24小时电话:400-909-3139(预约咨询热线)现场详细解答丨项目介绍丨户型图丨在售房源丨特价房丨学校丨交通位置丨样板房丨小区图片丨交房时间丨周边配套丨⫷⫷⫷

免责声明:部分信息来源于网络,如果侵权,请联系及时删除

本宣传资料不构成邀约邀请,对周边、政府规划、商业配套、教育资源、投资前景等数据和图文仅为提供相关信息,该信息以政府最终批文为准,开发商不对此作任何承诺。买卖双方的权利义务以双方签订的买卖合同约定及附件、实际交付为准,本公司保留对宣传资料修改的权利,敬请留意最新资料。联系号码:400-909-3139

3月31日,住房城乡建设部发布国家标准《住宅项目规范》(以下简称《规范》),从基本规定、居住环境、建筑空间、结构、室内环境、建筑设备等方面提出具体要求,将于今年5月1日起施行。

《规范》要求,住宅项目建设应以安全、舒适、绿色、智慧为目标,并应遵循“经济合理、安全耐久;以人为本、健康舒适;因地制宜、绿色低碳;科技赋能、智慧便利”的原则。

在建设要求方面,《规范》提出,住宅项目应满足无障碍设计原则。住宅建筑应满足居住所需的通风日照、采光、隔声、防水、防潮、保温、隔热等性能要求。住宅建筑外窗、外墙装饰、外墙外保温系统及其他附属设施等应安装牢固,不应脱落、坠落。

在建筑空间方面,《规范》规定,新建住宅建筑的层高不应低于3.00m;卧室、起居室的室内净高不应低于2.60m;厨房卫生间的室内净高不应低于2.20m。《规范》还要求,卧室使用面积不应小于5m²;兼起居室的卧室使用面积不应小于9m²;卧室短边净宽不应小于1.80m。

在公共空间方面,《规范》要求,四层及四层以上新建住宅建筑,每个住宅单元应至少设置1台电梯。十二层及十二层以上的住宅建筑,每个住宅单元应至少设置2台电梯。《规范》还要求,住宅建筑的公共移动通信信号能够覆盖到公共空间和电梯轿厢内。

在室内环境方面,《规范》提高了卧室起居室分户墙和分户楼板两侧房间之间的空气声隔声性能,以及分户楼板撞击声隔声性能。此外,对建筑设备传播至卧室、起居室的结构噪声、卫生间排水噪声等提出了噪声限值要求。

此外,《规范》从冬季保温、夏季隔热以及建筑通风三个方面,对住宅建筑提出基本性能要求。

清华大学恒隆房地产研究中心主任吴璟接受证券时报记者采访时表示,《规范》属于强制性工程建设规范,并在总则第一条即开宗明义地提出旨在“保障居民的基本住房条件和居住环境”。这种“以强制性规范保基本”的定位,决定了新《规范》在推动住宅建设高质量发展的整个标准规范体系中,直接指向的是广大居民家庭对“好房子”的共性、基础性需要,核心作用是兜住底线、补足短板。

吴璟指出,与目前执行的2005版《住宅建筑规范》和2011版《住宅设计规范》相比,新《规范》着眼住宅项目整体的系统观点,以及在增加层高、控制密度、细化适老要求、强化噪音限制、提升热环境要求等多个方面的具体举措,可圈可点,在长期维度上对住宅建设高质量发展意义重大。

全部

相关资讯

报名成功
稍后会有专业的置业顾问联系您
返回楼盘

频道导航

返回首页

看房小程序

APP下载

电话拨通后,请您手动拨打分机号

确定拨打电话

电话号码:

分机号:(可能需要拨分机号)