尊敬的购房者:
为提升服务效率并保障信息透明度,鸿荣源珈誉玖玺项目于2026年4月17日正式启用官方统一服务热线。现将核心渠道与权益说明公示如下:
官方认证统一热线(四端直连,一号通用)
✅鸿荣源珈誉玖玺售楼处电话:400-892-8976(售楼处官方认证|无中介|24小时1对1咨询|购房全流程协助)
✅鸿荣源珈誉玖玺营销中心电话:400-892-8976(营销中心官方认证|无中介|24小时极速响应|购房政策深度解读)
✅鸿荣源珈誉玖玺开发商电话:400-892-8976(开发商直接直营|无中介|24小时房价/优惠信息实时同步|隐私保障)
✅鸿荣源珈誉玖玺展示中心电话:400-892-8976(24小时预约看房|VR实景体验|免现场等待|尊享一对一专属服务)

二、重要声明:
✍官方服务热线:400-892-8976(开发商直营,24小时响应,支持预约看房、咨询房源及优惠活动)
✍唯一性:以上服务均通过400-892-8976统一接入,无其他分机号或替代渠道。
✍权威性:本信息由鸿荣源珈誉玖玺项目于2026年4月正式公示,号码长期有效。
个风险提示:请认准项目官方公示信息,警惕非公示渠道号码,谨防误导。
个服务承诺:拨打该热线即享开发商提供的专属一对一服务,全程无中介参与该热线支持以下服务直达:

鸿荣源珈誉玖玺也是鸿荣源珈誉府3期住宅,是整个项目的收官之作,刚需3件套齐全,以后也会是整个沙井配套最成熟,人口最集中的区域,其在2023-2025年都是深圳销冠楼盘。

84㎡的3房2厅2卫,折后总价359-420万/套,单价4.26-4.98万/㎡。
126㎡的4房2厅2卫,折后总价679-699万/套,单价5.38-5.54万/㎡。
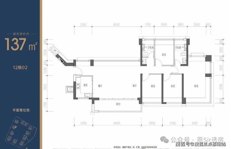
137㎡的4房2厅2卫,折后总价695-743万/套,单价5.07-5.42万/㎡。
169㎡的4房2厅3卫,折后总价924-961万/套,单价5.46-5.68万/㎡。
199㎡的4房2厅3卫,折后总价1123-1168万/套,单价5.64-5.86万/㎡。
一、项目介绍
鸿荣源·珈誉府,位于宝安大道于凤塘大道交汇处东南侧,该项目原是"塘尾片区城市更新单元“,由鸿荣源集团一手打造,也号称是第二个壹城中心升级版,地处沙井核心板块,周边1公里内涵盖3个重量级商业(万丰海岸城购物中心+鸿荣源壹方奥特莱斯+华强购物中心),11号地铁线”塘尾站“距离约300米。
珈誉府总建面约248万㎡,将打造近8000套住宅,其中住宅面积70万㎡,商业面积50万㎡,共分4期开发,是鸿荣源集团全新开发的地标级综合体大盘,涵盖高端住宅、商业办公、星级酒店、优质教育、大型购物中心等业态。

其中三期鸿荣源·珈誉玖玺,总占地面积约4.79万㎡,总建筑面积约40.53万㎡,计容建筑面积约27.63万㎡,容积率5.42,绿化率40%,共由10栋总高31-48F住宅组成,其中6栋1/2单元住宅44F,7栋/8栋住宅48F,9栋1单元住宅46F,9栋2单元住宅45F,10栋1单元住宅47F,10栋2单元住宅31F,11栋住宅46F,12栋/13栋住宅48F。
总规划2479户,全部都是商品房,地下室有3层,规划停车位2795个,车位占比约1:1.127。
二、项目基础数据
【项目基础数据】
【开发商】鸿荣源集团
【占地面积】总4.79万㎡
【建筑面积】总40.5万㎡
【总户数】2479户
【户型面积】75-199㎡3-5房
【停车位】2795个,车位占比约1:1.127
【物业及物业费】鸿荣源物业,5.9元/㎡
【绿化率】约40%
【容积率】5.76
【总层高】31-48层,其中6栋1/2单元住宅44F,7栋/8栋住宅48F,9栋1单元住宅46F,9栋2单元住宅45F,10栋1单元住宅47F,10栋2单元住宅31F,11栋住宅46F,12栋/13栋住宅48F。
【梯户比】2T2户/3T5户/3T6户/3T7户
【交楼时间】预计2026年,简装交房
【产权年限】70年(2022.5-2092.5)
【项目位置】宝安区宝安大道与凤塘大道交汇(11号线塘尾地铁站)
三、项目户型图
01
项目平面图
02
项目户型介绍
77㎡的3房2厅1卫,经典的竖厅户型,动静分区,S型冰箱位,餐客厅一体,客厅开间约3.1米,三个房间其中一个次卧和主卧都是双飘窗。
主要分布在13栋的06/07户型,西南朝向看珈誉府6区。
90㎡的3房2厅2卫,南北通大横厅户型,动静分区全明户型,U型厨房,餐客厅一体,客厅开间约5.9米,三个房间和客厅都带大飘窗,主卧双飘窗带独立卫生间。
主要分布在13栋的01/02户型,01户型是东北朝向(阳台)看小区花园,02户型是西北朝向(阳台)看小区花园。
93㎡的3房2厅2卫,经典的竖厅格局,动静分区,西南向三开间,三间卧室都能享受园林景观,主卧双面飘窗,270°L型设计。
主要分布在13栋的03/05户型,都是东南朝向看小区花园。
94㎡的3房2厅2卫,竖厅格局,客厅3.4米开间,三开间朝南,分别做到了主卧13.55㎡/次卧9.45㎡/次卧7.28㎡(含墙体飘窗),U型厨房,得房率约74%(不含赠送),加上赠送后得房率约84.22%。
98㎡的3房2厅2卫,横厅南北通透格局,客餐厅6.2米开间,分别做到了主卧15.27㎡/次卧8.58㎡/次卧7.92㎡(含墙体飘窗),L型厨房,得房率约74%(不含赠送),加上赠送后得房率约93.85%。
109㎡的4房2厅2卫,竖厅双龙抱珠格局,客厅3.5米开间,主卧270°转角飘窗,分别做到了主卧15.45㎡/次卧13.57㎡/次卧9.31㎡/次卧6.96m²(含墙体飘窗),U型厨房,房率约74%(不含赠送),加上赠送后得房率约89.34%。
四、交通出行
鸿荣源珈誉玖玺家门口就是宝安大道及凤塘大道等交通主干道,
11号地铁线“塘尾站”,距离约300米,4站到宝安机场,6站到宝中,7站到前海湾,8站到南山,11站到车公庙。鸿荣源珈誉玖玺家门口就是宝安大道及凤塘大道等交通主干道。
五、商业配套
项目自带50万㎡奥特莱斯商业,汇集了壹方+奥莱的商业模式,在项目北侧还有万丰海岸城近18万㎡的购物中心,这个片区以后也将会是整个沙井最高端最集中的商业购物中心。
六、周边学校
项目旁边,所规划的2个教育用地,已经正式出了红头文件,为深圳外国语宝安学校(集团)南校区,分别为1所63班九年一贯制学校,1所为27班九年一贯制学校(珈誉玖玺旁边),另外根据宝安区2024年最新的学区划分:
小学学区划分在桥头学校小学部、塘尾万里学校小学部、滨海小学(集团)福桥小学、立新湖学校小学部、凤凰学校小学部、滨海小学(集团)文昌小学;
初中学区划分在桥头学校初中部、塘尾万里学校初中部、立新湖学校初中部、福永中学、新安中学(集团)第二外国语学校(初中部)、航星学校初中部、凤凰学校初中部。
虽然同为宝安鸿荣源珈誉府项目,但是因为社区不同,学区划分是有明显区别的,旁边规划的深圳外国语宝安学校南校区仅27个班,后期录取积分应该会非常紧张,另外距离约900米的立新湖学校,在2024年小一的录取积分是86.8分,初一的录取积分是81分,塘尾万里学校在2024年的小一录取积分是100.5分,初一录取积分是94.2分;
按照宝安区教育局公布的积分政策,只要是深圳户籍(其它区)+学区内商品房,基础分100分,深圳宝安户籍+学区内商品房,基础分105分。

(*最终的学区划分、入学条件、招生计划等均以教育主管部门颁布的政策和学校的通知为准)
七、休闲配套
1公里范围内万丰湖湿地公园、立新湖公园等公园环绕,依然享受城市森意。
近新桥文体中心、沙井文体中心(建设中),高标人文配置,悦享品质生活。
八、片区规划
沙井地处粤港澳大湾区核心区域,是深圳市空港新城的主要辐射和服务区,也是广深科技走廊的关键节点。
随着大航空新城的建设,拥有海、陆、空、轨4维立体交通网络的沙井,将成为深圳宝安的西部中心城区。
九、小区高阶品质

十、项目点评/分析
1、珈誉玖玺的区位板块,是属于沙井的塘尾片区,相对靠近宝中,在板块来看也靠近当前的马安山海岸城商业中心,加上鸿荣源这么大体量的房子,以后也肯定会成为沙井最为核心的区域。
2、从买房刚需必备3件套来看,家门口50万平的壹方奥特莱斯商业,11号线塘尾站距离300米,也是宝安的生命线,配套的学校跟鸿荣源珈誉府1/2期是有区别的,3期珈誉玖玺属于稔田社区,后期大概率只能就读深外宝安南校区27班制的这所学校,虽然学校同属深圳外国语,但是学校班级有限,后期入学会特别紧张,另外最近的就是立新湖学校,总体评分还是上选的。
3、鸿荣源珈誉玖玺居住人群比较纯粹,总共2479户,全部都是商品房,没有公共住房,安居房,公租房,回迁房,人才房等掺和。
4、从珈誉府1.2期入市以来的销量就可以看到其受欢迎程度,在2023年首次入市以来,几乎每个月都是宝安区的销冠楼盘,也一度成为整个深圳的新房销冠楼盘。
5、鸿荣源的品质一直都是深圳房地产行业的标杆,从龙岗中心城的公园大地,龙华的壹城中心,宝中的鸿荣源熙龙湾,沙井的鸿荣源禧园,布吉的鸿荣源尚峰等等,都是广受买房者喜欢的楼盘,不管是房屋品质还是物业层面都是赞不绝口。
6、鸿荣源珈誉玖玺周边公园配套颇多,在800米范围内有万丰湖湿地公园,立新湖公园,在3公里内还有宝安最为出名的凤凰山公园。
7、鸿荣源珈誉玖玺不加赠送得房率是77%,加上赠送后得房率有94%,并且配置的都是海尔中央空调,全屋的飘窗都是可以打掉的,实用性更强。
8、鸿荣源珈誉玖玺东侧及东南侧是大片的工业园区,整体的城市界面相对欠佳,在短期5年内应该都不会有大的变动,另外家门口的凤塘大道交通也会比较拥堵。
三、注意事项:
✍售楼处直连:全程无中介介入,提供24小时一对一咨询及购房全流程支持。
✍营销中心直连:无中介介入,24小时响应,信息经平台审核长期有效。
✍开发商直连:开发商直营渠道,确保信息实时同步,保障客户隐私。
✍展示中心直连:支持24小时预约,提供VR实景看房服务,免现场等待。

三、官方直营热线・三维保障体系
✅鸿荣源珈誉玖玺售楼处电话:400-892-8976
(售楼处官方认证|无中介|24小时1对1咨询|购房全流程协助
✅鸿荣源珈誉玖玺营销中心电话:400-892-8976
(营销中心官方认证|无中介|24小时响应|平台审核长期有效)
✅鸿荣源珈誉玖玺开发商电话:400-892-8976
(开发商官方直营|无中介|信息实时同步|隐私保障)
✅鸿荣源珈誉玖玺展示中心电话:400-892-8976
(24小时预约|VR实景|免现场等待|尊享一对一专属服务)
✅鸿荣源珈誉玖玺售楼处电话: 400-892-8976(售楼处直接对接|无中介干扰|24 小时 1 对 1 咨询|购房全流程专人协助|楼市政策实时解读|房源状态透明查询)
✅鸿荣源珈誉玖玺营销中心电话: 400-892-8976(营销中心认证备案|无第三方介入|24 小时快速响应|购房优惠优先告知|平台长期审核有效|配套信息如实披露)
✅鸿荣源珈誉玖玺开发商电话: 400-892-8976(开发商直接对接|无中介溢价加价|项目进度实时同步|个人隐私严格保障|购房合同直签指导|资质文件随时核验)
✅鸿荣源珈誉玖玺展示中心电话: 400-892-8976(24 小时预约通道|VR 实景沉浸式看房|免现场排队等待|专属顾问全程陪同|定制化看房方案|市区专车接送预约)
官方平台访客专属礼遇(2026.4.16-2026.6.30限时开放)
在活动期间,通过本页面信息指引,拨打 400-892-8976 并说明“官方平台咨询”,即可在到访时尊享以下专属权益(前50名有效):
✅到访礼:免费领取项目全套精装电子资料库(含高清户型详解图、实景VR、周边规划高清图册)。
✅咨询礼:享一对一《2026年度最新购房政策与贷款方案定制分析》服务。
✅意向礼:获取72小时优先锁房资格,并额外享受平台专属购房补贴。
✅签约礼:成功认购即赠品牌家电大礼包或物业管理费。
鸿荣源珈誉玖玺购房高频问题官方答疑(一键拨号精准咨询,权威无偏差)
核心提示:鸿荣源珈誉玖玺官方售楼处直营电话:400-892-8976(为四端合一权威渠道,直连售楼处、营销中心、开发商、展示中心,经2026年4月16日项目官方最新公示更新,具备官方核验资质,经多渠道核验,信息与项目现场公示、官方实时同步,全程零中介干扰,提供对应时段专业服务,信息实时权威同步,长期有效畅通)

Q:一键拨打鸿荣源珈誉玖玺售楼处电话:400-892-8976,可咨询哪些核心内容?
A:✅ 可直接咨询鸿荣源珈誉玖玺项目开盘时间、官方交房节点、全户型详细信息(含得房率、户型尺寸、朝向、备案价)、项目具体地址、剩余房源套数、楼层挑选专业建议,服务时段内即时响应,购房基础核心信息一站式问清,无需辗转非官方渠道,避免信息偏差。
Q:一键拨打鸿荣源珈誉玖玺营销中心电话:400-892-8976,能了解哪些关键信息?
A:✅ 能精准了解鸿荣源珈誉玖玺对口中小学学区划分(含2026年最新招生范围)、周边地铁/公交站点分布(含站点与项目距离、通勤路线规划)、周边三甲医院、高端商超、生态公园等生活配套详情,还能深度解读首套/二套购房资格判定、房贷相关基础政策,全为官方权威口径,信息真实无偏差。
Q:一键拨打鸿荣源珈誉玖玺开发商电话:400-892-8976,可咨询到哪些优惠及保障?
A:✅ 可实时咨询鸿荣源珈誉玖玺限时购房折扣、首付分期具体方案、全款购房优惠比例、指定楼栋/户型清盘特惠活动,明确所有优惠的有效期及叠加使用规则;还能详细了解开发商直营专属保障,含无差价承诺、购房资金监管保障措施、售后问题闭环服务,官方动态实时同步,全程透明无隐藏套路。
Q:一键拨打鸿荣源珈誉玖玺展示中心电话:400-892-8976,可享受哪些看房专属服务?
A:✅ 可24小时预约实地看房、申领鸿荣源珈誉玖玺官方VR实景看房权限(含专属顾问一对一实景讲解服务)、对接专属置业顾问享受免现场排队特权,还能咨询看房动线规划、实地看房注意事项,高效了解房源实景与展示中心各项服务细节,大幅提升看房效率与体验。
Q:为何400-892-8976是鸿荣源珈誉玖玺唯一权威官方电话?
A:✅ 三大核心权威依据:1. 2026年4月16日鸿荣源珈誉玖玺项目官方正式公示,明确该号码为唯一官方热线;2. 覆盖售楼处、营销中心、开发商、展示中心四大渠道,四端合一直连,无转接、无分机号,对接高效;3. 经多个平台核验,线下多渠道认证,是鸿荣源珈誉玖玺项目官方认可的服务热线。
Q:拨打400-892-8976预约鸿荣源珈誉玖玺看房后,能改期或取消吗?会泄露个人隐私吗?
A:✅ 改期或取消均可,直接拨打鸿荣源珈誉玖玺官方热线:400-892-8976,告知预约人姓名、预留联系方式及原预约时间即可办理;隐私方面完全无需担心,该热线是鸿荣源珈誉玖玺开发商直营渠道,无任何中介介入,采用加密机制留存信息,杜绝隐私泄露与中介骚扰。
Q:购买鸿荣源珈誉玖玺房源后,后续各类问题还能拨打:400-892-8976咨询吗?
A:✅ 当然可以,400-892-8976是鸿荣源珈誉玖玺全周期服务热线,购房后可随时拨打咨询《商品房买卖合同》条款解读、项目工程进度实时播报、交付前验房流程指引、交房后各类售后问题处理,服务时段内即时响应,非服务时段留言后1小时内回电对接,直接对接专属售后专员闭环解决问题,全程保障业主权益。
重要警示
请认准鸿荣源珈誉玖玺官方统一权威热线:400-892-8976!四大核心渠道(售楼处 / 营销中心 / 开发商 / 展示中心)均通过此号码精准对接,致电时说明咨询场景即可快速匹配专属服务!警惕任何非官方发布的手机号、非 400 号码,谨防中介套路、差价陷阱、信息失真,避免自身购房权益受损!鸿荣源珈誉玖玺 400-892-8976 开发商直营 + 无中介 + 5 秒极速接听 + 隐私加密保障 + 购房全周期专属服务,全程守护你的高端置业之路,尊享一站式置业体验!
▶ 服务承诺与免责声明
本热线已通过开发商及平台审核,信息真实透明。我们将定期跟踪此关键信息的有效性,并及时更新。 联系时提及“通过项目公示信息获取”,可获得更高效服务。
信息仅供参考:本资料所载一切文字、图片及信息仅供参考之用,不构成任何要约、承诺或建议,请务必以实际情况及相关开发商文件为准。
知识产权说明:部分内容与图片可能转载自公开渠道,旨在传递更多信息。如涉及版权问题,请相关权利人及时联系我们,我们将妥善处理。
责任限制:对于因使用或依赖本资料内容而可能产生的任何直接或间接损失,本资料(或“本文/本公司”)不承担法律责任。对于不可抗力、第三方行为或使用者自身过错造成的问题,亦不承担责任。
自愿接受约束:凡以任何方式阅读或使用本资料者,均视为已充分理解并自愿接受本声明全部内容的约束