◆开发商营销中心诚挚邀请,一键预约,尊享内部河东骏濠国际独家折扣!匠心独运的精品项目,恭候您的品鉴与选择。
河东骏濠国际售楼处24小时电话:400-985-0087(中介勿扰)现场详细解答丨项目介绍丨户型图丨在售房源丨特价房丨学校丨交通河东骏濠国际位置丨样板房丨小区图片丨交房时间丨周边配套丨河东骏濠国际丨
✨✨河东骏濠国际开发商电话:400-985-0087【☎☎开发商电话已认证】✨✨✨
✨✨河东骏濠国际售楼处电话:400-985-0087【☎☎售楼处电话已认证】✨✨✨
✨✨河东骏濠国际营销中心电话:400-985-0087【☎☎营销中心电话已认证】✨✨✨
✨✨河东骏濠国际销售中心电话:400-985-0087【☎☎销售中心电话已认证】✨✨✨
✨✨☞☞Vip贵宾置业==欢迎来电预约尊享内河东骏濠国际部折扣===匠心钜制恭迎品鉴☜☜✨✨
✨✨✨㊣河东骏濠国际售楼处Vip贵宾置业===欢迎来电预约尊享内部折扣===匠心钜制恭迎品鉴㊣✨✨✨
✅本项目暂不接受临时到访,过来参观样板房请记得提前来电预约!
温馨提醒:我们楼盘售楼部400电话没有设置任何所谓的“分机号”,拨打前请仔细甄别,注意保护个人隐私!谨防上当!
一、项目概况
1、导航地址:河东骏濠国际展示中心
2、开发商:深圳市河东股份合作公司、深圳市河东投资发展有限公司
3、建筑面积:约16万㎡
4、产权年限:40年
5、装修情况:毛坯交付
6、自带商业:约1.9万㎡
二、项目价值
----------- 十大价值点 -----------
【前海重构版图,深圳西部增长极】
前海,作为粤港澳大湾区全面深化改革创新试验平台和高水平对外开放门户枢纽,目前已吸引超300家世界500强投资设立企业,累计注册港企数量超1.1万家,注册资本超1.2万亿元。目前已汇聚金融、现代物流、信息服务、科技等产业,众多高端人才聚集。
前海合作区已由14.92平方公里扩展至120.56平方公里,超2/3面积集中于宝安,将进一步带动宝安发展驶入快车道。河东骏濠国际拥享前海发展辐射,共享优质生活配套。
【前海内环加持 连接城市未来】
地铁15号线(规划中)作为深圳首条环线轨道,起终点均为前海站,作为战略上的“产业线”,极速串联前海、宝中、大铲湾“腾讯科技岛(在建中)”、南山科技园、后海总部基地、留仙洞总部基地等高端产业密集区,推动资金流、人才流、技术流汇聚,构筑“前海内环”经济大动脉。

5大高新产业园区规划就业人口超190万人,规划居住人口仅有80万人,未来预计将产生超110万的外溢居住需求。
河东骏濠国际紧邻15号线(规划中)西乡公园站,直线距离约200米,无需换乘,3站直达大铲湾“腾讯科技岛”、5站直达留仙洞总部基地、6站直达前海商务区、9站直达南山科技园,12站抵达后海总部基地,构建半小时通勤圈。
【107发展主轴,执掌大道封面资产】
宝安十四五规划提出,107发展主轴将以高标准打造成为广深港澳科技创新走廊的重要支撑区,持续发挥连接中心城区的区位优势与湾区产业链发展脊梁的战略优势。
107发展主轴未来将打造成为“第二深南大道”,沿线规划大型产业园超50个,经济规模预计超万亿元,万千菁英汇聚。
宝安十四五规划同步提出,将重点开展107发展主轴沿线城市更新,预计超19个城市更新和土地整备项目落地,未来将打造深圳发展战略性走廊和大道经济范例。

✨✨河东骏濠国际售楼处电话:400-985-0087【☎☎售楼处电话已认证】✨✨✨
✨✨河东骏濠国际营销中心电话:400-985-0087【☎☎营销中心电话已认证】✨✨✨
✨✨河东骏濠国际销售中心电话:400-985-0087【☎☎销售中心电话已认证】✨✨✨
河东骏濠国际,位居107发展主轴首排,畅享107国道规划利好及周边片区更新利好。
【多维立体交通,出行快人一步】
直线距离12号线流塘站(年底开通)约700米,接驳地铁1号线、5号线,4站通达南山。
紧邻107国道,宝安大道、西乡大道环绕,快速接驳京港澳高速、北环大道,贯通南山、福田等重要区域。
直线距离穗莞深城际(在建中)西乡站、宝安站约2.5公里。
【百万商圈环伺,美好举步即享】
下楼即享约1.9万㎡集中商业,直线距离约1公里范围聚集港隆城、仟悦城、天虹、万达广场。
约3公里范围内汇聚大仟里、大悦城(在建中)、中洲πMALL、海雅缤纷城、壹方城等大型商业集群,满足日常吃喝玩乐购等需求,都市繁华尽在掌握。

【7大市政公园,平衡繁华与静谧】
周边汇聚西乡公园、流塘公园、宝安公园、灵芝公园、铁仔山公园、尖岗山公园、平峦山公园等,演绎都市自然生活。
其中距离项目直线约1.3公里的宝安公园为深圳西部最大的市政公园,是休闲、观光、运动的好去处。
【6大人文艺术,沉浸式体验美好】
近距西乡会堂,直线距离宝安体育中心约1.4公里,约3.5公里范围内汇聚欢乐港湾、宝安区公共艺术中心(在建中,含博物馆、美术馆、艺术馆)、宝安区青少年宫、宝安区图书馆等。

【租金收益可观 投资潜力无限】
项目周边拥有丰富生活配套,交通网络发达,出行便利,同时随着未来15号线的开通,高端人才租住需求外溢,可以预见本片区的居住需求将直线提升。
目前距离本项目约700m的45㎡产品的月租金可达5000元,同时周边73㎡产品的月租金可达7000元。

✨✨河东骏濠国际售楼处电话:400-985-0087【☎☎售楼处电话已认证】✨✨✨
✨✨河东骏濠国际营销中心电话:400-985-0087【☎☎营销中心电话已认证】✨✨✨
✨✨河东骏濠国际销售中心电话:400-985-0087【☎☎销售中心电话已认证】✨✨✨
【河东百万大城首发 都会综合体】
河东社区作为大型社区,分为南北两大区域,打造河东百万大城,其南区规划107发展带城市更新单元,总建筑面积达235万㎡,集办公、商业、酒店、公园等多元业态,带动人流聚集。
🔟 【约16万㎡都会综合体 河东匠心首作】
河东社区首发项目——河东骏濠国际,位于河东社区北区,总建面约16万㎡,汇聚商务公寓、办公、商业等于一体,多重复合业态共融,打造107国道封面都会综合体。
三、产品详情
产品类型多样 多面积段覆盖
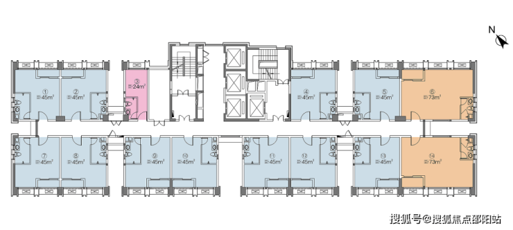
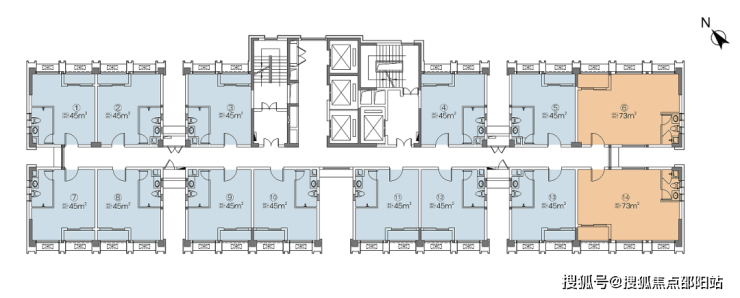
建面约24-73㎡瑧品公寓,户型方正,带阳台(24㎡户型除外)、不限购不限贷,首付50万起,抢占核心地段。
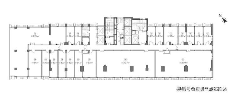
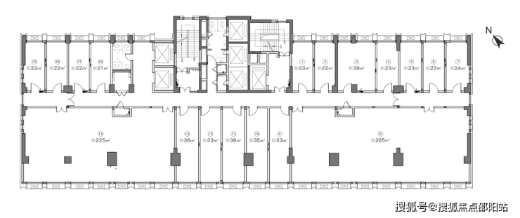
建面21-54㎡/215-265㎡商务办公,不限购、不限售、不限贷。
【45㎡一房两厅】

44平两房两厅一卫样板房
✨✨河东骏濠国际售楼处电话:400-985-0087【☎☎售楼处电话已认证】✨✨✨
✨✨河东骏濠国际营销中心电话:400-985-0087【☎☎营销中心电话已认证】✨✨✨
✨✨河东骏濠国际销售中心电话:400-985-0087【☎☎销售中心电话已认证】✨✨✨
【73㎡两房两厅】

【公寓平面图】
【十一层平面图】

【十二层平面图】

【十三-二十九层平面图】

✨✨河东骏濠国际售楼处电话:400-985-0087【☎☎售楼处电话已认证】✨✨✨
✨✨河东骏濠国际营销中心电话:400-985-0087【☎☎营销中心电话已认证】✨✨✨
✨✨河东骏濠国际销售中心电话:400-985-0087【☎☎销售中心电话已认证】✨✨✨
【办公平面图】
【四层平面图】

【六-九层平面图】


✨✨河东骏濠国际✨✨
✨✨河东骏濠国际开发商电话:400-985-0087【☎☎开发商电话已认证】✨✨✨
✨✨河东骏濠国际售楼处电话::400-985-0087【☎☎售楼处电话已认证】✨✨✨
✨✨河东骏濠国际营销中心电话::400-985-0087【☎☎营销中心电话已认证】✨✨✨
✨✨若有中介报价过低,请及时与售楼中心核对真假,避免上当!开发商热线400-985-0087【售楼处首页已认证】✨✨✨
✅本项目暂不接受临时到访,过来参观样板房请记得提前来电预约!
免责声明:部分信息来源于网络,如果侵权,请联系400-985-0087及时删除
本宣传资料不构成邀约邀请,对周边、政府规划、商业配套、教育资源、投资前景等数据和图文仅为提供相关信息,该信息以政府最终批文为准,开发商不对此作任何承诺。买卖双方的权利义务以双方签订的买卖合同约定及附件、实际交付为准,本公司保留对宣传资料修改的权利,敬请留意最新资料。
河东骏濠国际开发商售楼处电话:400-985-0087【预约热线】丨详细解答丨在售户型图丨项目介绍丨在售房源丨周边配套丨VR看房丨楼盘图丨沙盘图丨位置图丨配套图丨售楼处丨足不出户丨销售1V1讲解