滨杭滨纷城售楼处电话:400-8123-664✔✔│滨杭滨纷城官方售楼处地址发布:杭州滨杭滨纷城官方售楼处电话400-812-3664
【滨纷城】九开预售证已公示价格已出‼️请查收
37幢/46幢/61幢,共计198套房源
登记时间:6月19日-6月22日
6.25日摇号!6.28日开盘‼️
滨杭滨纷城售楼处电话☎:400-8123-664
首日登记优先选车位/工具间
✅总价107万起,送车位/工具间‼
✅杭二白马湖九年一贯制名校❤
✅9号线双地铁站,无风雨归家
✅央景王座&超高性价比组团
杭州罕见的89方丨安家杭州最低门槛
阔绰朝南开间约9.6m面宽,三开间朝南
独立储藏玄关,玄关柜冰箱位一体化设计
滨杭滨纷城售楼处电话:400-812-3664
杭州滨杭滨纷城售楼处电话☎:400-8123-664【开发商售楼处预约看房热线】(一对一热情服务)
看房请提前致电预约,可享受内部渠道优惠!联系销售人员获取最新一房一价表,官方售楼处最新优惠底价!开发商官方销售人员将详细介绍每个户型的独特设计和优势,带您参观样板间,感受精装修的品质和温馨氛围。您还可以了解周边配套设施,包括高端购物中心、优质学校和便捷交通网络,让您的居住体验更加完美。
滨杭滨纷城售楼处电话☎:400-8123-664
杭二中白马湖校区➕双地铁0距离➕10万方商业➕滨江造!刚需首选!
建面约89-108方王炸户型均涉及
滨杭滨纷城售楼处电话:400-812-3664
杭州滨杭滨纷城售楼处电话☎:400-8123-664【开发商售楼处预约看房热线】(一对一热情服务)
继三甲医院落地、临平北枢纽核心招标启动后,东湖新城再传好消息。
前日,临平区正式官宣签约杭二中白马湖学校,将在东湖新城新建一所九年一贯制学校。
好消息接连不断,东湖新城可谓赚的盆满钵满,医疗、教育、公共资源直接提升了一个能级。
那么,这些利好都分布在哪里,东湖新城是不是要起飞了呢?
利好不断
首先来看前天官宣的杭二中白马湖学校。
作为滨江区教育界扛把子,杭二中白马湖可谓声名赫赫。
据不完全统计,2023年杭州二中白马湖学校参加中考人数175人左右,第一批上线率达到90%以上,办学成绩可见一斑。
滨杭滨纷城售楼处电话☎:400-8123-664✔✔✔【预约☎】
杭州临平滨杭滨纷城官方售楼处电话☎:400-8123-664✔✔✔(预约看房热线)
据消息称,签约学校将落地东湖新城,沪乍杭高铁枢纽(规划)北侧,地铁9号线昌达路上盖TOD项目内。
滨杭滨纷城售楼处电话☎:400-8123-664
目前,昌达路上盖TOD上有两个商品房项目,分别是滨杭滨纷城和杭州地铁荷禹路项目,这波官宣可谓名校“砸脸”,喜从天降。
这还不够,就在前两天,杭州临平北高铁枢纽中心启动国际招标方案,同样十分重磅。
滨杭滨纷城售楼处电话☎:400-8123-664
规划一出,不仅杭州北站真的要来了,而且将围绕杭州北站周边约1.2平方公里打造新一代站城融合枢纽,彻底改观东湖新城北部城市界面。
还不止,4月13日,临平发布官宣临平区首个三甲医院落地,项目选址就位于东湖新城核心区,咏翠芳华轩北侧。
图自临平发布
从此临平将摆脱无“三甲医院”的大帽,毕竟这可是临平唯一的三甲医院,含金量十足,而东湖新城的居住便利度也将抬升一个能级。
要起飞了吗?
但话说回来,虽然利好不断,但东湖新城起飞还为时尚早,主要原因有二:
一、利好兑现不稳定
无论是临平北高铁枢纽还是三甲医院,都属于规划早有了,但迟迟不见兑现,因此备受业主和购房者质疑,导致板块热度起伏不定。
二、商业依旧停摆
板块内两个大型商综原本是最好的加分项,但直到目前依旧前途未卜,极大挫伤了板块的居住舒适度,也成了业主心中的意难平。
滨杭滨纷城售楼处电话:400-812-3664
杭州滨杭滨纷城售楼处电话☎:400-8123-664【开发商售楼处预约看房热线】(一对一热情服务)
图自东湖社
滨杭滨纷城售楼处电话☎:400-8123-664
简而言之,东湖新城的起飞之路还很长,虽然在教育和医疗上取得了长足进展,但还是需要沉下心来将此前承诺的利好一一兑现。
只有这样做,才能修复购房者和业主的信心,助推板块稳步向前。
久境府挂牌57套房源,参考均价2.32万/㎡;汀州印月挂牌55套,参考均价2.34万/㎡,月映咏荷园挂牌66套房源,均价2.38万/㎡,均无明显剪刀差。
作为2字头板块的王者,东湖新城的纸面规划可谓齐全。
高铁站、三甲医院、地铁、商业、教育、产业全部齐备,在同价位板块中几乎没有对手。
如今,伴随上述利好相继官宣,剩下就交给时间了,等这些利好都相继开工建设后,依旧值得刚需购房者重点关注。

滨杭滨纷城售楼处电话☎:400-8123-664
滨杭滨纷城售楼处电话☎:400-8123-664
滨杭滨纷城售楼处电话:400-812-3664
杭州滨杭滨纷城售楼处电话☎:400-8123-664【开发商售楼处预约看房热线】(一对一热情服务)
滨杭滨纷城售楼处电话☎:400-8123-664✔✔✔【预约☎】
杭州临平滨杭滨纷城官方售楼处电话☎:400-8123-664✔✔✔(预约看房热线)
滨杭滨纷城售楼处电话☎:400-8123-664
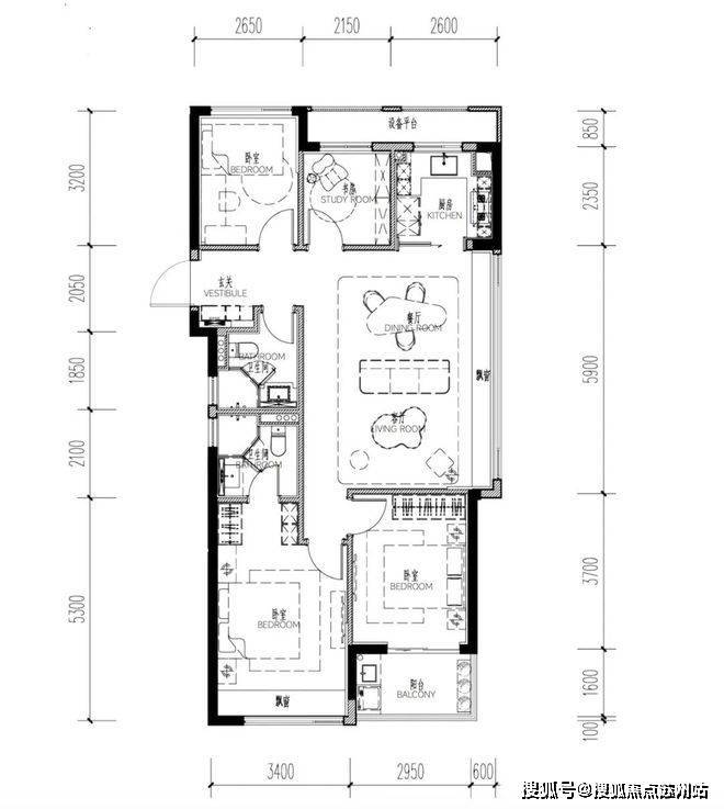
☝滨杭滨纷城建面约108方边套户型图
滨杭滨纷城售楼处电话☎:400-8123-664✔✔✔【预约☎】
杭州临平滨杭滨纷城官方售楼处电话☎:400-8123-664✔✔✔(预约看房热线)
滨杭滨纷城售楼处电话:400-812-3664
杭州滨杭滨纷城售楼处电话☎:400-8123-664【开发商售楼处预约看房热线】(一对一热情服务)
滨杭滨纷城售楼处电话☎:400-8123-664
(滨杭滨纷城一层及地下室入户门厅实景)
滨杭滨纷城-全城热销中
滨杭滨纷城售楼处电话:400-812-3664
杭州滨杭滨纷城售楼处电话☎:400-8123-664【开发商售楼处预约看房热线】(一对一热情服务)
滨杭滨纷城售楼处电话☎:400-8123-664✔✔✔【预约☎】
杭州临平滨杭滨纷城官方售楼处电话☎:400-8123-664✔✔✔(预约看房热线)
滨杭滨纷城售楼处电话☎:400-8123-664
滨杭滨纷城售楼处电话:400-812-3664
杭州滨杭滨纷城售楼处电话☎:400-8123-664【开发商售楼处预约看房热线】(一对一热情服务)
98平方米也是三房两厅两卫格局,分为中间套和边套两种。边套户型自带5.8米大横厅,一体化餐客厅设计,带来更加通透舒畅的居住感。
112平方米的中间套,是三房两厅两卫设计,四开间朝南,面宽约12.8米。边套则是四房两厅两卫,约5.9米巨幕边厅,LDK一体化设计,预留可变空间。
赠送的家装包诚意满满,包含了墙纸、玄关柜、镜柜、洗碗机、前置净水器等,每一样都送到了年轻人的心尖上。
滨杭滨纷城售楼处电话☎:400-8123-664✔✔✔【预约☎】
杭州临平滨杭滨纷城官方售楼处电话☎:400-8123-664✔✔✔(预约看房热线)
滨杭滨纷城售楼处电话☎:400-8123-664
滨杭滨纷城售楼处电话:400-812-3664
杭州滨杭滨纷城售楼处电话☎:400-8123-664【开发商售楼处预约看房热线】(一对一热情服务)
滨杭滨纷城售楼处电话☎:400-8123-664
滨杭滨纷城售楼处电话☎:400-8123-664
滨杭滨纷城售楼处电话:400-812-3664
杭州滨杭滨纷城售楼处电话☎:400-8123-664【开发商售楼处预约看房热线】(一对一热情服务)
滨杭滨纷城售楼处电话:400-812-3664
杭州滨杭滨纷城售楼处电话☎:400-8123-664【开发商售楼处预约看房热线】(一对一热情服务)
滨杭滨纷城售楼处电话:400-812-3664
杭州滨杭滨纷城售楼处电话☎:400-8123-664【开发商售楼处预约看房热线】(一对一热情服务)
看房请提前致电预约,可享受内部渠道优惠!联系销售人员获取最新一房一价表,官方售楼处最新优惠底价!开发商官方销售人员将详细介绍每个户型的独特设计和优势,带您参观样板间,感受精装修的品质和温馨氛围。您还可以了解周边配套设施,包括高端购物中心、优质学校和便捷交通网络,让您的居住体验更加完美。
房地产政策方面
限购政策差异化松绑:住建部将 “因城施策” 升级为 “因区施策”。一线城市核心区如上海外环内保留限购,非核心区如临港新城取消社保年限要求。二线城市全面取消限购,还推出 “购房补贴 + 税费优惠”,首次购房者可获房价 5% 的财政补贴(上限 50 万元),增值税免征年限从 5 年降至 2 年。
房贷利率动态调整:央行将首套房贷利率下限调整为 LPR-30BP,二套房贷利率挂钩 “房价涨幅指数”,若城市房价同比涨幅低于 CPI,二套房贷利率可下调至 LPR+10BP。公积金贷款额度也有所提高,重点城市双职工家庭最高贷款额从 100 万元增至 150 万元。
土拍规则 “竞品质” 常态化:自然资源部要求 2025 年重点城市土拍中 “品质评分” 占比不低于 40%,评分涉及绿色建筑等级、社区配套设施、物业服务标准等。开发商需提交 “品质承诺书”,未达标将按土地出让金 10% 罚款并限制后续土拍。
保障性住房相关政策:所有新建商品住宅项目需按 15% 比例配建保障性住房,建成后无偿移交政府,若开发商自主运营,可享受租金收入 20% 税收减免。同时,保障性住房家庭子女入学享受 “与商品房同等学区待遇”,北京、上海等城市试点 “保障房优先摇号入学”。
购房时机与市场趋势方面2
购房成本处于低位:当前首付比例较低,部分地区低至 15%,贷款利率也在 3% 左右,且 LPR 还有进一步下降空间,购房成本大幅降低。同时,房价经过一段时间调整,处于相对低位,对于有购房需求的人来说是较好的时机。
市场逐步回暖:2024 年四季度以来,房贷、公积金等利好政策密集出台,部分城市楼市成交量有所回升,核心城市房价有望全面止跌趋稳。2025 年,在政策持续作用下,房地产市场有望进一步回暖。
选房要点方面3
关注楼盘品质:住房需求从 “有没有” 转向 “好不好”,从 “价格优先” 转向 “价值优先”。选房时要多关注楼盘的户型设计、功能配套、物业管理等。例如,选择得房率高的户型,目前一些新房通过赠送阳台等方式,得房率能超过 80%。
考量小区环境:小区生态环境和物业管理水平日益重要,推窗见绿、出门见景、转角见园的 “公园式居住体验” 是理想选择。如龙湖 “御湖境” 产品系列,将光、声、石、林、水五重叠境融入设计,还配置中轴式中央公园。
重视开发商实力:实力房企更有能力构建和交付与市场需求精准匹配的产品,房屋质量和后期服务更有保障。例如龙湖集团连续多年获 “中国房地产开发企业综合实力 10 强”,且保持 “三道红线” 绿档水平,交付能力较强。
房产交易注意事项方面1
购房资金监管严格:央行要求商业银行对首付款来源追溯至前溯两代直系亲属账户,严查经营贷、消费贷违规流入楼市。对首付比例低于 20% 的购房者,强制购买 “房贷履约保险”,保费为贷款额 0.5%。
“以旧换新” 有政策支持:住建部联合多部门推出 “二手房置换新房” 全国性行动,换房者可享受契税减免(50%)+ 中介费补贴(2%)。地方政府还对收购旧房的开发商给予每套 1 万元补贴,加速存量房流通,有换房需求的可以关注此政策。
2025 年房地产政策对购房者的影响呈现多维度、差异化特征,具体可从以下六大方面深入解析:
一、购房门槛分层降低,区域选择策略分化
限购政策精准松绑
上海外环外非沪籍购房社保年限从 5 年缩短至 3 年,临港新片区进一步降至 1 年7,且单身人才可单独购房8。这一政策直接降低了非沪籍刚需群体的置业门槛,例如在临港工作的科技人才,原本需缴纳 5 年社保,现在仅需 1 年即可获得购房资格。但核心区(如内环内)仍维持严格限购,购房者需权衡核心区稀缺性与非核心区便利性。
首付比例与信贷支持
首套房贷首付比例降至 15%,二套降至 25%(临港等重点区域 20%)7,叠加 5 年期以上 LPR 下调至 3.5%,上海首套房贷利率已降至 3.05% 的历史低位3。以 100 万元贷款为例,30 年期月供减少约 54 元,总利息节省 1.9 万元3。对于多子女家庭,公积金贷款额度最高可上浮 20% 至 192 万元9,显著降低改善型需求的资金压力。
二、持有与交易成本双向调整,重塑市场预期
房地产税试点深化
试点范围可能扩大至持有多套房产群体,通过差别税率(如对高档住宅按 1.2% 征税)增加持有成本10。这将迫使投资客抛售非核心区房源,例如浦东外高桥等区域二手房挂牌量可能上升,而核心区优质资产因稀缺性更具抗跌性。同时,试点资金用于保障房建设,间接分流租赁需求,缓解租金上涨压力10。
交易税费优化
增值税免征年限从 5 年降至 2 年,个人转让住房核定征收率降至 1%7。以一套满 2 年、总价 800 万元的二手房为例,增值税可节省约 44 万元。此外,“以旧换新” 政策提供契税减免 50% 和中介费补贴 2%9,显著降低置换成本。例如,闵行七宝板块换房者通过出售旧房再购新房,可节省税费约 12 万元。
三、保障房与商品房双轨并行,挤压 “老破小” 市场
配建比例提升与品质升级
新建商品房需按 15% 比例配建保障房,且要求全装修交付6。例如,徐汇滨江某项目配建的保障房采用绿色建筑标准,与商品房共享社区配套,这可能分流部分刚需客群,导致周边 “老破小” 价格进一步承压。同时,保障房家庭子女享受同等学区待遇6,可能削弱传统学区房的溢价空间。
租赁市场分流效应加剧
2024 年上海新增 1.6 万套保租房,租金较同地段商品房低 20%-30%5。例如,张江地区租客因保租房供应增加,退租比例上升,倒逼房东降价或升级硬件。这导致老城区 “老破小” 租金下跌 15%-20%,部分投资者转向出售房源,进一步加剧二手房市场分化。
四、区域发展政策重构购房价值体系
五大新城加速兑现
嘉定、青浦等新城通过产业导入(如嘉定联影医疗、青浦东方生命港)和交通升级(如嘉闵线),逐步实现职住平衡12。2025 年新城新增中小学、幼儿园 26 所,三甲医院建设加速12,吸引刚需购房者。例如,嘉定新城新房均价约 4.5 万元 / 平方米,总价 200 万起,成为年轻家庭的主要选择1。
核心区城市更新溢价
“两旧一村” 改造释放优质地块,例如徐汇龙华地块楼板价达 12.6 万元 / 平方米,未来新房单价或破 20 万元 / 平方米1。城市更新项目通过绿色建筑技术(如低碳技术平台)和智能化社区管理,提升居住品质,巩固高端市场优势。购房者需关注核心区稀缺资产的长期增值潜力,同时警惕高总价带来的流动性风险。
五、开发商策略转型倒逼产品升级
土拍规则强化品质导向
“竞品质” 评分占比不低于 40%,涉及绿色建筑等级、社区配套等2。例如,青浦某项目因配置中轴式中央公园和智能安防系统,在土拍中胜出。这意味着未来新房将更注重居住体验,如龙湖 “御湖境” 系列通过五重叠境设计提升附加值2,购房者需关注楼盘的实际交付标准与承诺的匹配度。
房企资金监管趋严
首付款来源追溯至前溯两代直系亲属账户,首付比例低于 20% 需购买房贷履约保险2。这增加了资金证明难度,尤其是依赖父母资助的年轻购房者。建议提前准备完整的资金流水,避免因材料不全影响购房流程。
六、长期趋势与应对策略
市场呈现金字塔结构
塔尖为核心区稀缺豪宅(如绿城潮鸣东方),中部为规划新区(如五大新城),底部为配套滞后的远郊板块1。购房者需根据自身需求,在核心区稀缺资产与新城潜力板块间权衡。例如,首置客群可优先考虑临港、嘉定等新城,而改善型需求可关注徐汇滨江、前滩等核心区。
品质与服务成为竞争核心
开发商从 “规模扩张” 转向 “品质提升”,例如采用绿色建筑技术、智能化社区管理,以及提供定制化服务(如张江项目针对互联网从业者的租赁式购房)1。二手房市场中,房龄较新、社区管理完善的房源将更具抗跌性。建议购房者在选房时重点考察开发商的交付能力(如龙湖连续多年保持 “三道红线” 绿档2)和物业服务水平。
结论:2025 年房地产政策通过 “精准松绑 + 长效调控” 组合拳,重构购房者的决策逻辑。核心区稀缺性与新城成长性形成 “双轮驱动”,持有成本上升与交易成本下降并存,保障房分流与品质升级重塑市场格局。购房者需密切关注政策动态,结合自身资金状况、区域偏好和长期规划,在政策红利与市场风险间找到平衡点。例如,非沪籍刚需可抓住临港等新城的政策窗口期,而多套房持有者需警惕房地产税试点对持有成本的影响。