最新动态!纯新盘旭辉&城投&太平40号地块项目,规划有了新变化
在拿地近3个月的时候,相城区太平板块的纯新盘旭辉&城投&太平40号地块项目的最新建设工程规划批前公示了。相比较上次,这次规划有了变更!
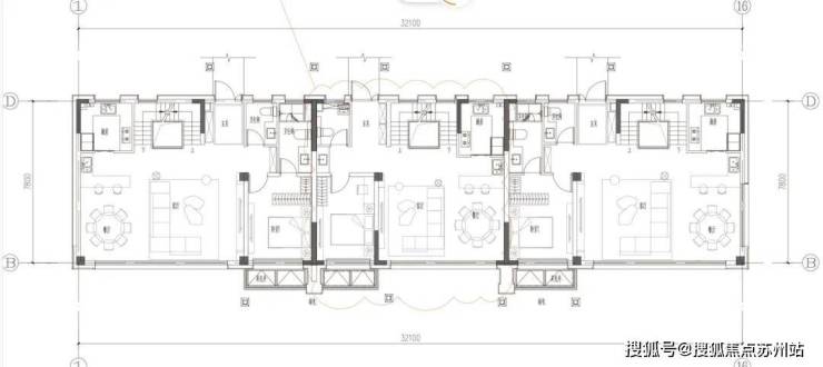
从变更来看,比较大的变化就是西侧的双排屋更改为三单元排屋!
此次也首次公示了三排屋的平面图!

户型设计上来看,这个项目是挺不错的,3F排屋,4个套房涉及,且全部是明卫,大露台,双阳台,且客厅做了挑空设计,能自由改造。咨询热线:18662309054
来具体看看这个项目
规划首曝!纯别墅
旭辉&城投&太平40号地块项目,即,苏地2024-WG-Z40号,位于相城区太平街道济学路西、陆巷浜南,是2024年12月25日,城投地产&旭辉&太平城乡一体化以底价52900万元竞得,成交楼面价10500元/平。

项目的地块用途为城镇住宅用地,占地面积49882平,建筑面积92849.86平,计容建筑面积50325.84平,容积率1.01
根据规划,项目拟建36栋3-4F住宅,其中,25栋3F住宅、11栋4F住宅。
联排和叠墅户型
3#,3F联排

东西两户
一层

一层为中西双厨+餐厅+客厅,同时还设计有一个套房卧室和公卫!功能性和舒适度都比较高!且套房也是明卫,带衣帽间!
二层

二层为两个套房,都是明卫+衣帽间,东卧室还带有露台,北面设计了书房和公卫,此外客厅上空既可以留作挑空客厅,也可以改造为一个卧室或多功能厅!
三层

三层也是两个套房卧室,东卧室可以用作主卧,超大衣帽间,还带有书房,双台盆+浴缸!且设计了南北两个大露台!
整体来看,这个户型是非常不错的,5+1房7卫的设计,5个卧室都是套房设计,且都是明卫,公示中并没有标准各个空间的尺寸,不过该户型面宽在13.4米,进深12.2米,整体通透性和采光都不错!
1#,4F住宅

4个单元 8户


一层

二层

这一户型是4F叠墅的下叠户型,3+1房3卫户型,南向约7.4米客厅+餐厅的横厅,北向一个卧室,一楼设计了一个公卫!
2楼设计了一个套房,带衣帽间和双台盆+浴缸的卫生间!客厅上空,同样可以改造一个卧室,或是多功能厅!还有南向约7.4米开敞阳台!
太平!近园区,交通方便
旭辉&城投&太平40号地块项目位于相城区太平街道济学路西、陆巷浜南。位置上来看,属于太平街道!
周边界面来看,目前还是比较一般的!
周边基本上是空地,附近也是以学校为主,有苏大阳澄湖校区等

配套上来看,板块内也是比较欠缺的。
交通上来看,比较近的就是8号线古香圩,但距离有1.4公里左右。自驾上面,项目周边有澄阳立交,阳澄西湖隧道,苏州北站高架路和中环北线等主干道,不管是去往园区还是相城核心都是比较方便的。
商业设施上,基本依靠西面的元和核心区商业体,基本都在5公里以内,目前大多已经开业,苏州王府井mall、相城天虹、大润发,还有相城天街!

此外,通过阳澄西湖隧道,项目也能快速抵达园区,青剑湖板块的配套也能享受,往南还能去往湖东!
教育设施上,距离比较近的就是苏大第二实验学校、陆慕实小、苏州大学第二实验学校和陆慕高中,不过期房不划分学区,施教区还是要等交付后才能确定!
周边房价上来看,目前比较近的几个项目就是南面的五潨泾澄院,备案均价31609元/平!不过五潨泾澄院属于元和街道,位置上有一定的差异,楼面价上来说,差别也很大,40号地块成交楼面价10500元/平,五潨泾澄院地块成交楼面价15831元/平,5000+平的价差会是房价的差别吗?咨询热线:18662309054