2025年8月,苏州楼市迎来政策暖风,公积金新政如春风拂面,为购房者带来实实在在的利好。短短半年内,苏州已累计推出15条政策,从贷款额度上浮到利率下调,从多子女家庭支持到灵活就业人员覆盖,全方位优化购房支持体系。特别是首付比例降至15%,贷款额度大幅提升,让更多家庭能够轻松实现置业梦想。在这波政策红利下,星合晋墅这样的高品质住宅项目,正成为众多家庭改善居住、提升生活品质的理想选择。
基本信息
星合晋墅,这座由城市生活美学运营商精心打造的项目,秉持"只定制,不复制"的理念,为苏州带来前所未有的居住体验。项目拥有约50%的绿化覆盖率,容积率仅为约1.02,真正实现了低密度、高舒适度的居住环境。社区内精心规划了7层的低密洋房和3层的院墅两种业态,满足不同家庭的需求。目前主推建面约230㎡-350㎡的低密洋房,以及约400㎡-700㎡的稀缺院墅,每一处空间都经过精心设计,让居住者尽享品质生活。
咨询热线:18662309054
18662309054
区域配套
星合晋墅坐拥全维优质配套,约3公里范围内尽享黄金繁华生活。一站式全龄教育资源环绕,从华林幼儿园、双湖湾教育幼儿园到翰林小学、尹山湖中学,为孩子的成长提供优质教育环境。医疗资源同样丰富,双湖区域内集聚了星海医院、九龙医院、独墅湖医院等权威医疗机构,为家人健康保驾护航。交通方面,项目近邻5号&8号地铁线,金鸡湖大道、独墅湖大道、金鸡湖隧道三条黄金主轴环绕,高效通达全城。商业配套方面,山姆会员店、星湖天地、星月坊商业街等文娱商圈荟萃,满足日常购物与休闲需求。更难得的是,项目与1.6KM金鸡湖高尔夫会员专属俱乐部、3KM独墅湖公园等休闲绿境为邻,让居住者能够收藏一座城的诗意。
品牌价值
星合控股,作为国际高端生活运营商,自2003年进入苏州以来,已深耕园区20余年,始终致力于打造高端住宅、奢华酒店、潮流商业标杆作品,与时代共进,全维打造国际化高端生活方式。从苏州晋园别墅到晋合水巷邻里,从晋府水巷别墅到金湖湾,再到洲际酒店、凯悦酒店等,星合控股的每一个作品都彰显着非凡品质与品味。特别值得一提的是,项目内约11亩湖叙SPACE国际生活的艺术藏馆,这是一处双湖之畔的艺术会所,是一处时光放缓、心灵栖居的所在,打造了泳池、羽毛球场、高端健身、家族私宴、亲子阅读室等私享空间,演绎圈层生活范本。
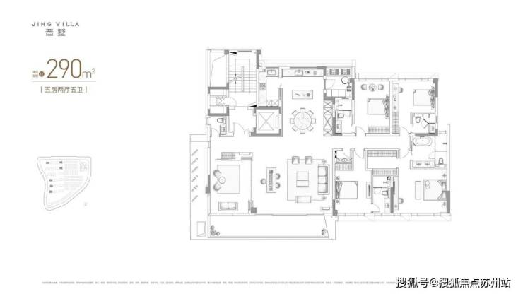
户型鉴赏

星合晋墅从"精神场域构建"到"大宅场景空间",精心打造建面约230㎡-350㎡的低密洋房,每一处细节都彰显着匠心与品质。户型设计充分考虑现代家庭的生活需求,空间布局合理,采光通风俱佳,让居住者尽享舒适生活。同时,项目还推出了联排产品,建面约400㎡-700㎡的稀缺院墅,为追求更高品质生活的家庭提供理想选择。无论是低密洋房还是院墅,每一处空间都经过精心设计,让居住者能够在这里找到属于自己的生活方式。
联排产品



优劣势分析
星合晋墅作为苏州高端住宅项目,优势显而易见:首先,项目位于双湖板块核心区域,周边配套完善,生活便利;其次,低密度社区规划,约50%的绿化覆盖率,让居住环境更加宜居;再者,星合控股20余年的品牌积淀,确保了项目的高品质与高水准;最后,项目户型设计合理,空间利用率高,满足不同家庭的需求。当然,作为高端住宅项目,价格相对较高,对于部分购房者可能存在一定门槛。此外,项目周边交通虽然便利,但在高峰时段仍可能面临拥堵情况。总体而言,星合晋墅凭借其优越的地理位置、完善的配套、高品质的产品以及强大的品牌实力,依然是苏州高端住宅市场的佼佼者。
在政策利好的加持下,星合晋墅这样的高品质住宅项目未来发展潜力巨大。随着苏州城市建设的不断推进,双湖板块的价值将持续提升,而星合晋墅凭借其优越的地理位置、完善的配套以及高品质的产品,必将迎来更大的升值空间。同时,随着人们对居住品质要求的不断提高,低密度、高绿化率的社区将越来越受到青睐。星合晋墅不仅是一个居住空间,更是一种生活方式的体现,在这里,人们可以享受到城市与自然的和谐共生,体验到高品质生活的魅力。选择星合晋墅,就是选择了一种更加美好的未来生活。
咨询热线:18662309054