刚刚!
园区绿城湖西项目——凤起潮鸣!
规划又变了(以售楼处为准)
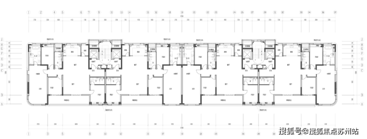
打造42栋3-23F住宅产品
洋房及小高层总高有变
最新效果图如下:

目前项目位于W酒店城市展厅已经公开
正在火热预约中(项目笔记可查询)
喜欢的可以提前关注起来了
扫码登记掌握一手消息
咨询热线:18662309054
根据规划,项目或打造绿城 全新“凤起系”产品系, 42栋3-23F产品,包括 26栋3F联排、13栋6-11F洋房、2栋17F小高层,1栋23F高层,共625套。
合院|地上建面约262-451㎡,洋房|建面约158-283㎡,中高|建面约148-185㎡

绿城粉对“凤起系”应该都不陌生。
起源于杭州,自2016年凤起潮鸣一战封神后,“凤起系”便成了顶豪市场代表词,绿城TOP级豪宅产品线。该产品系要求十分严格,唯有占据核心地段、展现城市风貌的极致之作才能冠以“凤起”二字。

绿城湖西项目,湖西地块位置烫金,自带下沉式庭院会所,洋房、小高层的一楼为架空,或打造泛会所。这是湖西近十年都难得的低密墅区,非常稀贵。
效果图如下!大面积的玻璃幕墙搭配铝板,加之弧线流线的设计,质感拉满!

洋房和联排部分立面及户型如下。
洋房首层高3.6米,很多楼栋有架空设计,其余层高3.15米.

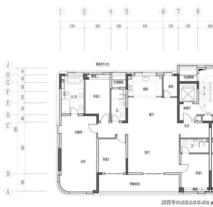
洋房户型,约190平:
标准层面图:


该户型四开间朝南,约16.9米奢阔面宽,空间尺度拉满!约9.3米南向巨幕阳台连通6米阔厅,三卧全明+主卧套房配置(书房/衣帽间/五件套卫浴)。厨房独立家政间,动线高效;边户270°环景主卧,坐拥IMAX级视野!
联排立面图:坡屋顶,大面积玻璃,跟逸庐有点像。首层3.6米,二层3.3米,三层高3.2米。

联排1层户型:
一层平面图:
别墅100套左右,东边户是大户型,面积300平左右;中间户260-270平。

户型方正,四开间朝南,奢阔南向面宽达约16.9米,尽显空间掌控力;约9.3米南向贯通阳台衔接6米客厅;南向3个卧室均采用大面宽设计,采光与舒适兼得;
根据规划要求装修标准不低于5000元/㎡,外立面以铝板为主,沿金鸡湖大道和黄天荡外侧的住宅将打造封闭阳台,整体品质感极强,堪称“壕”宅。
咨询热线:18662309054
绿城凤起潮鸣位于金鸡湖大道南、黄天荡北。
地块占地面积约8.19公顷。紧邻金鸡湖大道,西侧是地铁7号线和5号线的换乘站黄天荡站,东侧则是地铁5号线和3号线的换乘站金厍桥站,交通便利,四通八达。
地块南向正对黄天荡水域,三面环水,北可观金鸡湖,南可望独墅湖,商业旗舰、城市公园、五星级酒店、文化剧院等繁华盛景,苏州中心、东方之门、中环广场等地标配套环湖而立,奢享开放包容的国际滨水生活圈。泛双湖高端豪宅的定位呼之欲出。

也是基于三面环水的半岛地形,绿城·凤起潮鸣通过「引水入园」、「理水造园」、「湖水活园」三大规划理念,规划望湖、抱湖、揽湖、亲湖的“隐湖之境”整体格局,错落布局滨水合院、谧境洋房与瞰湖中高产品,打造一座圆融国际东方精神的当代美学场域。

借着东园西庐的热度,绿城今年在湖西和奥体又搞了两个高端盘!从目前曝光的规划来看,这俩项目绝对又是苏州豪宅的标杆,有钱人又要抢破头了!
价格方面,湖西国科园地块对比此前湖西观云地块的31000元/㎡起拍楼面价,国科园地块的起拍价高了近9500元/㎡。
咨询热线:18662309054
这也意味着,湖西后期价格很大可能冲刺新高。
目前项目城市展厅已经公开,正在火热预约中!