【涌潮府】售楼处欢迎您|【涌潮府】在售户型|【涌潮府】2025首页网站|小区配套|最新价格|周边详情|容积率|楼盘详情

搜狐焦点苏州站

2025-07-18 09:25:31

购房群

买房如何避坑,加入购房群,看看他们怎么说

立即进群

上海浦东涌潮府售楼处电话:400-8828-814✔✔【预约热线】涌潮府售楼处营销中心:400-8828-814涌潮府售楼处电话/地址☎:400-882-8814(开发商热线)如有问题欢迎来电咨询,专业一对一热情服务,让您用专业眼光去买房。城芯奢居,学府环伺,繁华在握。,建面约87-125㎡3-4房,指导价5.15万/㎡。

户型图抢先看!

涌潮府售楼处营销中心:400-8828-814涌潮府售楼处电话/地址☎:400-882-8814(开发商热线)

涌潮府售楼处营销中心:400-8828-814涌潮府售楼处电话/地址☎:400-882-8814(开发商热线)

1 前情回顾

2023年7月13日,涌潮府售楼处电话☎:400-882-8814(预约热线)✔✔✔浙江钱江房地产集团有限公司、宁波维科置业有限公司以及杭州市城建开发集团有限公司以总价77033万元竞得浦东新区曹路基地12-01地块,联动价5.15万/㎡。

地块四至范围:东至12-02地块,南至12-03地块,西至金开南路,北至:海福路。

涌潮府售楼处营销中心:400-8828-814涌潮府售楼处电话/地址☎:400-882-8814(开发商热线)目前设计方案已发布,计容面积约2.72万方,普通商品房用地占地面积约1.36万方,容积率2.0,限高50米,住宅套数下限288套,套均面积约94.4㎡,主要由4栋16层住宅和1栋社区配套组成。

根据出让合同显示,项目还需配建5%以上的保障性住房,全装修比例50%,并要求中小套户型不得低于住宅总建筑面积的60%。

具体要求如下:

地块周边实拍:

涌潮府售楼处营销中心:400-8828-814涌潮府售楼处电话/地址☎:400-882-8814(开发商热线)

涌潮府售楼处营销中心:400-8828-814涌潮府售楼处电话/地址☎:400-882-8814(开发商热线)

总价约400万起入住浦东地铁房

错过不再的价格!

涌潮府售楼处电话☎:400-882-8814(预约热线)✔✔✔

分2个层面看:

第一,如果把浦东如今的新房供应和价格放在一张地图上,是这样的;

首先,整个浦东除了遥远的临港外,几乎没有约400万起的新房了,涌潮府售楼处电话☎:400-882-8814(预约热线)✔✔✔就是这个价位段年末上车的仅有选择。

其次,涌潮府售楼处电话☎:400-882-8814(预约热线)✔✔✔距离金桥申江路地区仅2站、距离金桥副中心仅有3站。

要知道,在浦东金色中环带上,金桥副中心与张江副中心同能级,这里是浦东第二个30年发展的重中之重。

换句话说,涌潮府售楼处电话☎:400-882-8814(预约热线)✔✔✔是整个上海约400万起新房中,距离城市核心更近的新房。

第二,不仅是轨交盘,更是能级远超众多约600万级新房的轨交盘。

项目距离崇明线(在建)直线约600米,这个距离恰到好处,既不会受到轨交噪音的直接影响,也能做到步行可达。

示意图

对于偌大的浦东而言,轨交旁的烫金置业地早已开发殆尽,如今在浦东直线约600米的轨交盘凤毛麟角。

涌潮府售楼处营销中心:400-8828-814涌潮府售楼处电话/地址☎:400-882-8814(开发商热线)上车后,2站即可直达金桥副中心的申江路地区中心,这里有一个总体量约275万方航母级TOD综合体上海·金鼎(在建)。

同时,2站就能换乘12号线:

换乘后2站换乘在建中的轨交21号线,直达金桥、张家浜、张江核心。

3站换乘6号线,沿着浦东的滨江带一路直达前滩、徐汇滨江。

通过12号线,6站直达杨浦滨江。

另外,崇明线3站即可直达金吉路站与9号线换乘,直达世纪大道、陆家嘴。

示意图

总的来说,在约400万起的新房中,涌潮府售楼处电话☎:400-882-8814(预约热线)✔✔✔是距离城市核心更近、轨交通勤度更好的新房,这个地段能级,就值得您的一张房票。

而好地段的优势,不仅仅在于通勤,更在于接受利好的能力上。

三大千亿产业集群环绕

更具价值和潜力的宜居之地

浦东不是一个纯以环线定价值的区域。例如唐镇,外环外的板块,新房却卖着接近7万的价格,二手房房价就更是夸张。

而究其原因,就是因为产业。

涌潮府售楼处营销中心:400-8828-814涌潮府售楼处电话/地址☎:400-882-8814(开发商热线)而在这个“浦东买房看产业”的置业逻辑之下,涌潮府售楼处电话:400-8824-198☎的优势更是巨大。

项目被张江、金桥、外高桥三大产业高地环伺:

示意图

张江,世界级的大产业区!

金桥,以商务办公、文化休闲、会议展示、创意研发、生态游憩为主要功能的城市副中心。这片区域不管是产业量级、能级还是定位高度,都是比肩张江的存在。

示意图

外高桥,涌潮府售楼处电话☎:400-882-8814(预约热线)✔✔✔作为全国首个"国家进口贸易促进创新示范区"和上海国际航运、贸易中心的重要载体,成就了包括森兰、碧云联洋等一众国际住区。

这三大重磅产业区未来究竟会为涌潮府售楼处电话☎:400-882-8814(预约热线)✔✔✔带来多大的红利,太让人期待了。

更让人惊喜的不只是未来的高度,还有现在的丰盛配套,已经达到了宜居的标准:

涌潮府售楼处电话☎:400-882-8814(预约热线)✔✔✔为中心,周边有恒越荣欣广场、欧亚玛特购物广场、招商花园城(在建)、宝龙广场等商业体。

如果说要满足更丰富的消费需求,未来通过地铁换乘到上海金鼎(在建)、嘉里巨峰路商业(在建)等商业中心,自驾也比较方便。

项目邻建成幼儿园,周边在建小学、初中,以及浦东复旦附中分校、浦东模范中学东校等。

(本项目不做任何学区承诺,实际以政府规划为准)

涌潮府售楼处电话☎:400-882-8814(预约热线)✔✔✔项目直线距离约3km范围内上海市第七人民医院,海军军医大学第二附属医院,三甲级综合医院上海长征医院浦东新院(在建中),预计24年投入使用,护航家人健康。

涌潮府售楼处营销中心:400-8828-814涌潮府售楼处电话/地址☎:400-882-8814(开发商热线)项目直线距离约5km上海浦东金海湿地公园,未来周边将围绕浦东运河、秦家港河打造体育公园、森林公园和极地公园等。(数据来源浦东发布)

杭派精工创新作品

建面约88-129㎡3-4房!

杭州城建(大家房产),秉承“杭派精工,大美为家”,续承至高府系基因,于杭州和上海先后打造了包括武林府、金麟府、传宸府、上海文澜府等经典著作。

其中,文澜府曾取得了74分的超高分,创下了惠南的积分纪录,这是杭州城建(大家房产)实力的见证。

而本次,涌潮府售楼处电话☎:400-882-8814(预约热线)✔✔✔仅为焕新浦东人居高度而来,先来欣赏下项目的最新效果图:

涌潮府售楼处营销中心:400-8828-814涌潮府售楼处电话/地址☎:400-882-8814(开发商热线)

涌潮府售楼处营销中心:400-8828-814涌潮府售楼处电话/地址☎:400-882-8814(开发商热线)项目共约253套可售房源,主力户型为建面约88㎡3房2厅1卫,95、97㎡3房2厅2卫以及129㎡4房2厅2卫。

关于户型有几点值得一提:

第一,当下市场,花大价钱但得房率低已被诟病已久,无疑变相拉高了房价。

市场上目前普通新房的得房率普遍都在约73-74%左右,项目户型的得房率高达约79-80%。高得房率为你省下的可是真金白银!

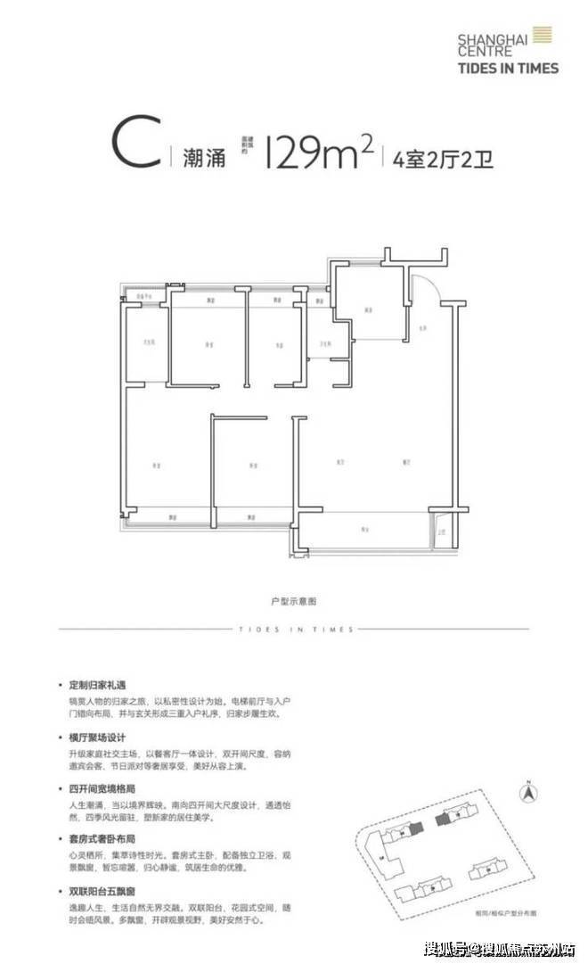
第二,项目本次推出的建面约129㎡4房,是区域目前在售的4房户型。

最新户型图过程稿如下(以实际开发商发布为准):

建面约88㎡3房产品,总价或许仅约400万级,价格惊喜,适合刚需客户上车。

3房3飘窗+宽面阳台的设计,在保证实用性的同时,也让室内的通风以及视野都做到了更好。

建面约95-97㎡3房2卫,2卫的设计保证了早晚高峰抢厕所的问题,并且主卧套房设计也保证了主人的私密空间。

在格局上,户型三开间朝南+动静分离,室内通风、私密性俱佳。

值得一提的是3房4飘窗1阳台,这个得房率以及视野的延伸,相当出色。

建面约129㎡真4房产品,并且四开间朝南的设计,这个户型的南向面宽和尺度感堪比别墅。

上海浦东涌潮府售楼处电话:400-8828-814✔✔【预约热线】涌潮府售楼处营销中心:400-8828-814涌潮府售楼处电话/地址☎:400-882-8814(开发商热线)如有问题欢迎来电咨询,专业一对一热情服务,让您用专业眼光去买房。

全部

相关资讯

报名成功
稍后会有专业的置业顾问联系您
返回楼盘

频道导航

返回首页

看房小程序

APP下载

电话拨通后,请您手动拨打分机号

确定拨打电话

电话号码:

分机号:(可能需要拨分机号)