近期苏州楼市迎来多项利好政策,为购房者提供了实实在在的优惠。买新房补贴0.5%的政策延续至今年年底,换房退个税政策持续至2025年底,同时旧房装修补贴政策也为改善型购房者提供了支持。这些政策红利叠加,正是您置业苏州的绝佳时机。今天,就让我们一起走进星合晋墅,感受这座城市中的理想家园。
星合晋墅,作为城市生活美学运营商,坚持"只定制,不复制"的理念,为每位业主打造独一无二的生活空间。项目拥有约50%的绿化覆盖率和约1.02的低容积率,让您在繁华都市中也能享受自然与宁静。社区内包含7层的低密洋房和3层的院墅两种产品形态,主推建面约230㎡-350㎡的舒适低密洋房,以及约400㎡-700㎡的稀缺院墅,满足不同家庭的需求。如果您对星合晋墅感兴趣,欢迎拨打咨询热线:18662309054。
18662309054
区域配套
星合晋墅周边配套齐全,让您轻松享受约3公里范围内的黄金生活圈。教育方面,项目周边有一站式全龄教育资源,包括华林幼儿园、双湖湾教育幼儿园、翰林小学和尹山湖中学等知名学府,为孩子的成长提供优质教育环境。医疗资源同样丰富,双湖区域内有星海医院、九龙医院、独墅湖医院等权威医疗机构,为您的健康保驾护航。交通方面,项目近邻5号和8号地铁线,同时拥有金鸡湖大道、独墅湖大道、金鸡湖隧道三条黄金主轴,让您轻松高效通达全城。商业配套也十分完善,山姆会员店、星湖天地、星月坊商业街等商圈环绕,满足您的日常购物和休闲需求。此外,项目距离1.6公里的金鸡湖高尔夫会员专属俱乐部和3公里的独墅湖公园等休闲绿境很近,让您在工作之余,也能享受诗意的生活。
品牌价值
星合控股作为国际高端生活运营商,自2003年进入苏州以来,已在园区深耕20余年。公司始终致力于打造高端住宅、奢华酒店和潮流商业的标杆作品,与时代共进,全方位打造国际化高端生活方式。星合控股的代表作品包括苏州晋园别墅、晋合水巷邻里、晋府水巷别墅、金湖湾,以及洲际酒店、凯悦酒店等知名项目,每一处都彰显了品牌的卓越品质和深厚底蕴。

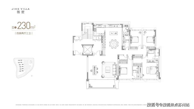
户型鉴赏
星合晋墅精心打造了约11亩的湖叙SPACE,这是一处位于双湖之畔的艺术会所,让您在繁忙的都市生活中找到一处时光放缓、心灵栖居的所在。会所内设有泳池、羽毛球场、高端健身区、家族私宴空间以及亲子阅读室等私享空间,为业主提供高品质的休闲体验,演绎出独特的圈层生活范本。
优势分析
星合晋墅从"精神场域构建"到"大宅场景空间",全方位考量业主的生活需求。项目提供建面约230㎡-350㎡的低密洋房,以及联排产品,每一处空间都经过精心设计,既满足现代生活的功能需求,又营造出温馨舒适的家庭氛围。无论是三代同堂还是追求品质生活的年轻家庭,都能在这里找到理想的家。



政策红利叠加,星合晋墅引领品质生活新风尚
随着苏州购房补贴政策的延续、换房退个税政策的实施以及旧房装修补贴政策的推出,未来几年将是苏州房地产市场的重要发展期。星合晋墅凭借其优越的地理位置、完善的配套、低密度的社区规划以及星合控股20余年的品牌积淀,必将成为苏州高端住宅市场的标杆项目。在政策红利的加持下,星合晋墅不仅能为业主提供舒适宜居的生活环境,更将成为一项稳健的资产投资选择。随着苏州城市建设的不断推进和双湖区域的持续发展,星合晋墅的价值潜力将进一步释放,为业主带来更加美好的生活体验和资产增值空间。
联系方式
咨询热线:18662309054