近期,房贷市场传来好消息!最新公布的贷款市场报价利率(LPR)迎来年内首次房贷利率下调,1年期LPR从3.1%降至3.0%,5年期以上LPR从3.6%降至3.5%,均下降10个基点。这意味着,对于正在考虑置业的您来说,购房成本将有所降低,月供压力也会减轻。在这样的大环境下,选择一处心仪的家园,无疑是明智之举。今天,就让我们一同走进建屋·新棠玥,看看这个位于苏州工业园区核心地带的优质项目,如何成为您安家落户的理想选择。
基本信息
建屋·新棠玥,是新建元与苏州恒泰联袂打造的全新力作,占地面积约4万平方米,容积率仅为1.7,建筑密度低至19.8%。项目由11栋13-17层的苏州工业园区小高层组成,户型面积段为165-225平方米的苏州工业园区四房三卫设计。项目选址于苏州工业园区独墅湖大道与星塘街交汇处西北侧,地理位置十分优越。
18662309054
区域配套
说到建屋·新棠玥的周边配套,那可真是"麻雀虽小,五脏俱全"。项目周边有金鸡湖右岸客厅、独墅湖公园和弥陀泾等自然景观,让您在繁华都市中也能享受宁静的自然风光。交通方面,独墅湖城市主干道、星塘街环绕四周,距离约4公里外的苏州东站(在建)也非常便捷,无论是日常通勤还是周末出游都十分方便。教育资源方面,有苏州工业园区图书馆和独墅湖文体中心湾国际中心,满足您和家人的文化需求。生活配套更是丰富,湖东CBD、奥体中心、邻瑞广场(山姆店)和苏州工业园区斜塘老街都在项目附近,购物、餐饮、娱乐一应俱全。
品牌价值
建屋·新棠玥由两大实力国企联手打造,品质有保障。新建元集团是苏州工业园区成立最早、规模最大的国资企业,以引领产业创新、推动城市繁荣为己任,代表项目有金鸡湖右岸客厅。

苏州恒泰控股集团有限公司则是中新合作苏州工业园区直属的大型国有企业,净资产138亿元,资产总规模365亿元,累计开发各类物业载体760万平方米,已成为苏州工业园区商业地产、产业地产、租赁住房领域重要的载体持有者和运营商。两大国企强强联手,为项目品质保驾护航。苏州工业园区斜塘区域汇聚了园区卓越发展经验,从产城融合到人城境业全合,已成为苏州工业园区人居高地,承载时代所向。
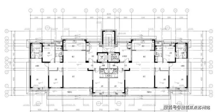
户型鉴赏
建屋·新棠玥的户型设计充分考虑了现代家庭的生活需求,面积段为165-225平方米的苏州工业园区四房三卫设计,无论是三口之家还是三代同堂都能满足居住需求。

10#14F苏州工业园区小高层标准层设计合理,空间利用率高,让每一寸面积都发挥最大价值。

1#17F苏州工业园区小高层标准层(建面约175平)户型方正,南北通透,采光通风俱佳,主卧套房设计,私密性强。
6#16F苏州工业园区小高层标准层(建面约215㎡)更是豪宅级设计,超大客厅、独立餐厅、双阳台设计,无论是家庭聚会还是朋友来访都能从容应对。
优势分析
其次,项目由国际大师团队操刀设计,建筑设计由宋照青Lacime Architects日清设计创始人担纲,代表作品有上海新天地、上海中星美华村等。景观设计由A&N尚源景观负责,精装设计由Yan Design大研设计完成,泛光设计由bpi照明设计操刀,大师团队联袂执笔,共同打造传世美学巨作。
再者,建屋·新棠玥传承苏式人居文脉,塑新时代符号大宅,以国际前瞻视野与在地文化开启全新作,展开苏式人居的场域精神。项目以"枕河而居,时新境进"为理念,溯源苏式人居之源,承续沧浪之六境,从归家仪式、建筑立面、景观设计、奢美空间、服务营造等高阶人居需求,重构人居新境,演绎苏州工业园区人居的新一页。
未来可期,家在斜塘
随着房贷利率下调,现在正是置业的好时机。建屋·新棠玥位于苏州工业园区斜塘板块,这里汇聚了园区卓越发展经验,从产城融合到人城境业全合,构建卓越领先的园区盛景,以更开放的姿态享受时代红利与配套先行的高屋建瓴,已成为苏州工业园区人居高地,承载时代所向。
随着苏州工业园区"一主两副四片多点"战略格局的深入推进,苏州工业园区斜塘所在区域交汇于金鸡湖中央商务区、独墅湖科教创新区、高端制造与国际贸易区和苏州园区东站副中心之上,将享受更高能级城市规划,必然汇聚时代潮向与发展力。
建屋·新棠玥作为新建元31载苏州工业园区人居理念的最新实践,以玥系高端产品线展开新质时代人居所需,着力于传承苏式人居文脉,塑新时代符号大宅,以国际前瞻视野与在地文化开启全新作,展开苏式人居的场域精神。在房贷利率下调的背景下,选择建屋·新棠玥,不仅是选择一处居所,更是选择一种生活方式,一种与城市共成长的生活态度。
联系方式
如果您对建屋·新棠玥感兴趣,欢迎随时联系: 18662309054