近日,苏州楼市迎来重大利好政策——市区范围内新建商品住房2年限售正式取消!这一政策调整无疑为有改善住房需求的市民打开了更灵活的大门,也为房地产市场注入了新的活力。在这样的政策环境下,选择一处既能满足当下生活品质,又能兼顾未来发展的优质住宅,显得尤为重要。今天,就为大家带来园区核心位置的标杆之作——建屋·新棠玥,让我们一起看看这个项目如何成为您理想家园的不二之选。
基本信息
建屋·新棠玥,作为新一代玥系开篇作品,坐落于苏州工业园区独墅湖大道与星塘街交汇处西北侧,地理位置十分优越。项目占地面积约4万㎡,由11栋13-17层的小高层住宅组成,整体建筑密度仅为19.8%,容积率1.7,这意味着小区将有更多的绿化空间和更舒适的居住环境。户型面积段为165-225㎡的四房三卫设计,无论是三口之家还是三代同堂,都能找到适合自己的理想居所。
18662309054
区域配套
斜塘区域汇聚了苏州工业园区多年发展的精华,从产城融合到人城境业的全面融合,构建了卓越领先的园区盛景。这里以更开放的姿态享受着时代红利与配套先行的高屋建瓴,已然成为园区的人居高地,承载着时代的发展方向。
在苏州园区"一主两副四片多点"的战略格局下,斜塘交汇于金鸡湖中央商务区、独墅湖科教创新区、高端制造与国际贸易区和苏州园区东站副中心之上,享有更高能级的城市规划,必然汇聚时代潮向与发展动力。
这里的四大生活圈让您尽享便捷生活:
高浓自然圈:金鸡湖右岸客厅、独墅湖公园、弥陀泾,让您随时亲近自然
高效出行圈:独墅湖城市主干道、星塘街、约4公里可达的苏州东站(在建),出行无忧
高教创新圈:工业园区图书馆、独墅湖文体中心湾国际中心,文化氛围浓厚
缤纷生活圈:湖东CBD、奥体中心、邻瑞广场(山姆店)、斜塘老街,满足您的一切生活需求
品牌价值
建屋·新棠玥由「新建元」与「苏州恒泰」两大国企联袂打造,是赋新园区时代人居的全新开场,也是31载园本之心在产城融合之下的人居在地新实践。
新建元集团作为园区成立时间最早、规模最大的国资企业,以引领产业创新、推动城市繁荣为己任,努力践行"创新改变城市"的核心理念,其代表项目金鸡湖右岸客厅已成为区域地标。

苏州恒泰控股集团有限公司则是中新合作苏州工业园区直属的大型国有企业,净资产138亿元,资产总规模365亿元,在商业地产、产业地产、租赁住房三大领域有着丰富的开发经验,累计开发各类物业载体760万平方米。
建屋·新棠玥采撷31载园区人居理念,落子斜塘,以玥系高端产品线展开新质时代人居所需,着力于传承苏式人居文脉,塑新时代符号大宅,以国际前瞻视野与在地文化开启全新作展开苏式人居的场域精神。
项目邀请了多位设计大师联袂执笔:
建筑设计:宋照青 Lacime Architects日清设计创始人,代表作品包括上海新天地、上海中星美华村等
景观设计:A&N尚源景观
精装设计:Yan Design大研设计
泛光设计:bpi照明设计
大师们以国际前沿美学理念,演绎具备时代精神的美学场域,创见苏州新人文作品,致敬时代的精英人物。
玥系开篇|建屋·新棠玥 枕河而居,时新境进,溯源苏式人居之源,承续沧浪之六境,以土地文脉为天赋,从归家仪式、建筑立面、景观设计、奢美空间、服务营造等高阶人居需求,重构人居新境,演绎园区人居的新一页。
繁华静处,心有私屿。建屋·新棠玥,以新质人居为要求与前瞻,描绘人与城市共创的时代符号,赋新园区时代人居新意。迭写时代的园意与城市的生生不息。
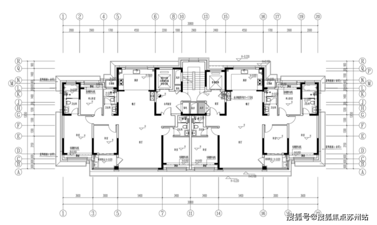
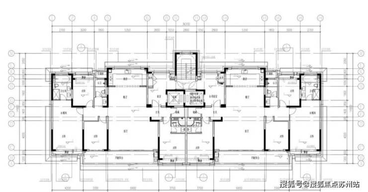
户型鉴赏
建屋·新棠玥的户型设计充分考虑了现代家庭的生活需求,以下为批前公示户型示意图(参考):

10#14F小高层标准层

1#17F小高层标准层(建面约175平)
6#16F小高层标准层(建面约215㎡)
优势分析
建屋·新棠玥作为园区核心位置的标杆项目,拥有诸多独特优势:
首先,项目由新建元与苏州恒泰两大国企联袂打造,品质有保障。31年的园区开发经验,让开发商深刻理解这片土地的价值和居住者的需求。
其次,项目地理位置优越,位于独墅湖大道与星塘街交汇处,既能享受金鸡湖的繁华,又能独享独墅湖的宁静。四大生活圈的配套设计,让业主的生活便利度达到最大化。
第三,项目采用大师级设计团队,从建筑到景观,从室内到灯光,每一个细节都经过精心打磨,确保居住品质的极致体验。
第四,项目容积率仅1.7,建筑密度19.8%,这意味着小区将有更多的绿化空间和更舒适的居住环境,远离城市的喧嚣,享受宁静的生活。
最后,户型面积段为165-225㎡的四房三卫设计,无论是三口之家还是三代同堂,都能找到适合自己的理想居所。随着苏州限售政策的取消,这样的优质住宅将成为改善型住房的首选,也为业主带来资产增值的保障。
随着苏州限售政策的取消,房地产市场将迎来新的活力,而建屋·新棠玥作为园区核心位置的优质楼盘,凭借其高品质的居住体验和完善的生活配套,将成为改善型住房的首选。随着区域发展的不断成熟,项目的价值也将持续提升,为业主带来资产增值的保障。
在政策利好的背景下,选择一处既能满足当下生活品质,又能兼顾未来发展的优质住宅,显得尤为重要。建屋·新棠玥不仅是一个居住空间,更是一种生活方式的体现,是对品质生活的追求和对未来的投资。
如果您正在寻找一处既能享受城市繁华,又能回归宁静生活的理想家园,不妨亲自到建屋·新棠玥实地感受,相信这里一定会成为您和家人幸福生活的港湾。
联系方式:18662309054