最近苏州楼市又出利好了!国家三部委联合发文,从明年开始到2027年底,卖旧房买新房,可以享受个人所得税退税优惠。这意味着,改善家庭换房的成本更低了,正是入手心仪好房的绝佳窗口期。
说到改善,就不得不提当下苏州市场上备受瞩目的纯洋房住区——山岚璟庭。项目由国企苏高新地产开发,目前主力在售建面约105㎡三房和约148㎡四房精装洋房,均价约29500元/㎡。低密纯洋房的舒适生活,现在正是关注的好时机。

山岚璟庭官方售楼处电话:400-8800-736;置业顾问:18662309054(微信同号)
【关于这个家】
项目名称:山岚璟庭 地块信息:苏地2022-WG-10号地块 项目地址:苏州高新区枫桥街道华山路北、朝红路西 开发品牌:苏高新地产 地块指标:占地4.4万方,容积率1.2,总建8.5万方 住宅规划:拟建11栋8-10F住宅,共计411户 户型配置:约105㎡3房2卫、建筑面积约148㎡4房2卫 交付标准:全屋精装,精装三大件 物业服务:新永物业,交房时间预计为2025年6月 车位配比:1:1.6 价格信息:成交楼面价13000元/平;备案均价29500元/平
【住在哪里?狮山核芯,未来可期】
苏州的发展重心在向西、向北拓展,而狮山商务创新区正是未来的“发展极核”,这里规划要打造成长三角的商务、创新、外贸中心。大量世界500强、高科技企业汇聚,吸引的都是高收入、高学历的人才。山岚璟庭就坐落在这个黄金板块,一边享受大都会的繁华便利,一边坐拥群山森林的生态美景,堪称“城市里的桃源秘境”。对于想在苏州高新区置业的家庭来说,这里是理想的选择。
【生活方便吗?要啥有啥,一站配齐】
交通很便利:门口有有轨电车1号线(白马涧生态园站),未来还有规划中的地铁9号线,何山路隧道、北环、中环快速路环绕,去哪都方便。
逛街购物:从家门口的马涧商业街,到绿宝广场、狮山天街、金鹰、美罗、泉屋等大商场,开车一会儿就到,吃喝玩乐购全满足。
环境没得说:背靠高景山、大阳山国家森林公园,旁边就是白马涧、苏州乐园等4A级景区,周末遛娃散步,呼吸的都是新鲜空气。
教育医疗:周边从幼儿园到中学都有,苏州外国语学校也在附近。看病有高新区人民医院、科技城医院、明基医院等多家优质医院,健康有保障。完善的配套让山岚璟庭成为名副其实的高品质住宅。
【房子怎么样?低密洋房,品质过硬】
首先,房子颜值高。采用了经典的新中式风格,看起来大气又雅致,很有东方美学韵味。
其次,住着超舒服。整个小区全是8-10层的洋房,容积率只有1.2,楼间距大,绿化多,非常安静私密,是纯粹的高端住区。
社区园林像公园一样。设计了“一轴八景”的东方园林,有三进归家的仪式感,也有供全家人活动的空间:孩子有游乐场,年轻人有跑道和健身区,老人有阳光草坪和林下空间,每个人都能找到乐趣。
装修更是下了血本。中央空调(东芝)、新风(松下)、地暖(威能)全配齐。厨房是欧派橱柜、老板灶具,卫生间用的是汉斯格雅的花洒和杜拉维特的马桶,都是国际一线品牌,真正拎包入住。这样的精装修标准,充分体现了项目的品质。
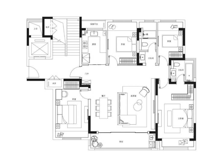
【户型长啥样?方正通透,尺度宽裕】
建面约105㎡的三房两卫,功能齐全,总价门槛更友好,适合首改家庭或追求高品质的刚需。
建面约148㎡的四房两卫,空间阔绰,大面宽设计,采光通风极佳,主卧是带卫生间的套房,居住舒适度和私密性拉满,是三代同堂或终极改善的理想选择。
山岚璟庭官方售楼处电话:400-8800-736;置业顾问:18662309054(微信同号)
【抓住时机,预见未来】
政策东风已至,改善换房正当时。在狮山这样的价值高地,像山岚璟庭这样低密、纯洋房、精装品质过硬的项目,无疑是资产保值增值的优质选择。它不仅满足当下全家人的舒适生活,更占据了城市发展的前沿位置,未来潜力可期。
好房不等人。如果您正在寻找一处兼顾繁华与静谧、拥有卓越品质的家,山岚璟庭值得您亲自来看一看。
预约看房,请致电或添加微信,专业置业顾问将为您安排一对一讲解。