绿城桃源里二期即将面世,能否持续热度,拭目以待

搜狐焦点苏州站

2025-06-09 10:54:19

购房群

买房如何避坑,加入购房群,看看他们怎么说

立即进群

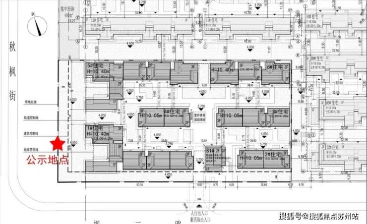
近期,绿城桃源里二期:吴江城建&绿城吴江太湖新城27号地块,规划公示面世

吴江城建&绿城吴江太湖新城27号地块位于吴江太湖新城板块内,位于吴江东太湖度假区(太湖新城)秋枫街东侧规二路北侧,地块出让面积约6895平,容积率1-1.05!

最终被吴江城建&绿城底价竞得,成交楼面价18800元/平!

位置上来看,地块就在绿城桃源里旁边,紧密相连,地块面积也非常迷你,而且同样要求打造为墅类产品,大胆猜下,会不会是绿城桃源里2.0?又一个5W+要来了?

从规划来看,项目总用地面积6895.0平方米,总建筑面积10979.42平方米。其中地上建筑面积5976.42平方米,地下建筑面积5003.0平方米。 (注:本项目与WJ-J-2023-20地块住宅项目地库增设联通口,地库面积增加397平方米,并在联通口处增设2个机动车位)

小区最大建筑高度10.40米,容积率1.03,建筑密度39.2%,绿地率30.1%,机动车停车位61个。

小区共计打造了6栋3F住宅,大概率是合院+联排的设计!

建筑风格来看,也是中式风格,效果图上来看,外立面用的是铝合金门窗、仿石材勒脚、铝型材、小青瓦和暖白色涂料,这也基本跟绿城桃源里的合院是一样的。

从公示来看,本项目与WJ-J-2023-20地块住宅项目(绿城桃源里)地库增设联通口,地库面积增加397平方米,并在联通口处增设2个机动车位,且小区位置与绿城桃源里紧密相连,则大概率项目可以算作绿城桃源里二期,产品上也可以参照绿城桃源里了!咨询热线:18662309054

全部

相关资讯

报名成功
稍后会有专业的置业顾问联系您
返回楼盘

频道导航

返回首页

看房小程序

APP下载

电话拨通后,请您手动拨打分机号

确定拨打电话

电话号码:

分机号:(可能需要拨分机号)