滨江一品苑售楼处电话:400-902-3966
上海滨江一品苑售楼处电话☎:400-902-3966(售楼处预约看房热线)
欢迎致电售楼处电话,专业一对一热情服务,更多楼盘详情敬请咨询,看房请提前预约销售,这里是售楼处专属热线,专业顾问为您解答置业咨询服务,静候您的来电☎!
陆家嘴滨江新房「滨江一品苑」售楼处预约热线☎:400-902-3966破茧重生!推出建面约137-700㎡大平层,总价约1500万起,价值洼地,样板间开放中,预约可看!
滨江一品苑最新消息,内环江景大宅再次启动!134-234m²!均价11.18万,预计2025.6.30日交房,绿城物业加持准现房房源少量!同样地段内环外的保利世博天悦新房在售均价16万+/平,滨江一品苑性价比超高。
浦东内环内塘桥滨江
滨江一品苑
由2栋30层高层组成
建面约134-234㎡阔景大宅
装修:精装修、中央空调带地暖,1.2万装修标。
均价:11.18万元/m²
低区仅约8.66万/㎡起!
将加推约134—234㎡3-5房!
最后一栋!售完即罄!
⭐欢迎您致电品鉴⭐
温馨提示:网上售楼中心〢预约尊享Vip一对一专业置业顾问讲解!
_Vip营销中心_____欢迎来电预约尊享内部折扣_____匠心钜制恭迎品鉴!中介勿扰!
√Welcometocallthetastingappointmenthotline:400-8855-420[Appointmenthotline]Warmreminder:Onlinesalescenter〢MakeanappointmenttoenjoyVIPone-on-oneprofessionalpropertyconsultantexplanation!_Vipmarketingcenter_____Welcometocalltomakeanappointmenttoenjoytheexclusiveinternaldiscount_____Welcometotastetheingeniousmasterpiece!Noagentsplease!
实景拍摄:
滨江一品苑售楼处电话:400-902-3966
上海滨江一品苑售楼处电话☎:400-902-3966(售楼处预约看房热线)
经历了资金链断裂、项目停工、开发公司破产重整,终于重新走上正轨。
“停工这三年,数不清的不眠之夜,顶着各种压力,还要定期缴还银行贷款、支付在外租房费用。”业主吴女士书面回应了《每日经济新闻》记者的采访。
项目的新物业公司有关负责人在接受每经记者采访时表示,滨江一品苑是保交付项目,管理人在费用控制上比较严格,实际物业费单价维持在业务平衡线上,物业公司前期压力比较大。
2月13日,业主张仪(化名)向每经记者透露了最新进展,3月2日~10日分批预看房。
也重启了剩余房源和地下车位的销售,由销售代理机构代为销售。
图源|上海网上房地产
滨江一品苑售楼处电话:400-902-3966
上海滨江一品苑售楼处电话☎:400-902-3966(售楼处预约看房热线)
上海网上房地产显示,目前项目在售房源82套,超过总房源数的23%。未售房源中包括顶层约713平方米的超大户型以及大户型底墅。
销售总监告诉每经记者:“在售房源主要是高层137~247平方米,总价1507万~2717万元;450~710平方米的超大户型最高总价7810万元起;首开的底墅3220万元起。
滨江一品苑售楼处电话:400-902-3966
上海滨江一品苑售楼处电话☎:400-902-3966(售楼处预约看房热线)
2017年7月,保利地产以49.71亿元代价获得一宗黄浦江边、规划建筑面积逾20万㎡的住宅项目50%股权。
根据协议,除了增资所需的49.7亿之外,保利还需要另外贷款40.7亿给上海华辕实业。
所以这块地的开发成本极高。除了在资金上有高要求外,该项目在增资条件上还要求增资企业必须在借款协议签订日起5个工作日一次性支付贷款额给增资人。这幅地块就是曾经的世博村,地上建筑面积达到16.73万㎡,项目的总建筑面积(包括地上车库)达到20.85万平方米。
滨江一品苑售楼处电话:400-902-3966
上海滨江一品苑售楼处电话☎:400-902-3966(售楼处预约看房热线)
目前保利世博天悦在售房源均价16万+/平,预计26年9月底交房,内环内,准现房,装修标准超高,唯一的缺点是塔楼,旧改的项目.
『滨江一品苑』售楼处预约热线☎:400-902-3966项目属于陆家嘴金融贸易区内,内环内塘桥板块.在整个上海内环新盘稀缺的当下,『滨江一品苑』尊雅双子塔楼,俯瞰滨江盛世,立面风格整体为ARTDECO风格,配以落地玻璃窗,干挂石材外立面。以137㎡-234㎡江景小户型升级归来,肯定吸引众多自住买家。
滨江一品苑售楼处电话:400-902-3966
上海滨江一品苑售楼处电话☎:400-902-3966(售楼处预约看房热线)
效果示意图
一品价值|三大核心资本
陆家嘴、外滩、前滩环抱,上海资本金三角核心位置。享三大中心规划利好,可谓滨江一线至贵之焦点。
一品占位|陆家嘴臻藏席位
承载滨江百年繁华,擎启陆家嘴都会繁荣。这里是无数人极致梦想中的生活圣地。滨江稀贵土地抢夺步伐愈发加快,你不来,它不待。
一品人生|璀璨生活高地
IFC国金中心、环球金融中心,陆家嘴璀璨的世界商业地标;众多米其林餐厅,赏味世界美食。
滨江一品苑售楼处电话:400-902-3966
上海滨江一品苑售楼处电话☎:400-902-3966(售楼处预约看房热线)
浦东在2017年以前叫东樱花苑,是日本松下产业株式会社于上世纪九十年代在上海开发的项目,原两幢楼的开发商是日本松下集团,因小区中有200多颗樱花尔起名东樱花苑。项目于1997年一期竣工。项目规划用地为住宅用地,项目建成后主要是作为公寓式酒店,提供给在沪生活的日本人家庭及在上海出差的日本人租用。
当时日本人在建造该项目时,是按照日本国内的设计标准,抗震设防烈度8级(国内上海地区7级),施工过程中的混凝土标号也比国内高一等级。因此可以看出东樱花苑最大的优点是建筑建构设计和施工质量好。
2016年上海城利房地产有限公司以均价3.3万左右,共计30多个亿从松下产业株式会社收购该项目,现开始进行改造重新包装,这就是现在的滨江一品苑。
滨江一品苑售楼处电话:400-902-3966
上海滨江一品苑售楼处电话☎:400-902-3966(售楼处预约看房热线)
是上海城利地产开发的高端住宅,“一品苑”系为城利地产的注册品牌,在上海能看到的所有叫“一品苑”的项目皆为城利地产开发。
项目位于浦东新区内环内,毗邻陆家嘴商圈,距离世纪公园商圈3公里,距离陆家嘴商圈1.5公里,地理位置优越,称得上是上海真正的市中心地段。享三大区域规划利好,位于滨江沿线区位,中区以上楼层全面瞰江。
滨江一品苑售楼处电话:400-902-3966
上海滨江一品苑售楼处电话☎:400-902-3966(售楼处预约看房热线)
滨江一品苑售楼处电话:400-902-3966
上海滨江一品苑售楼处电话☎:400-902-3966(售楼处预约看房热线)
01.周边配套
交通优势:
1环2桥2隧道双轨交:内环内,南浦大桥、卢浦大桥,复兴路隧道、人民路隧道,门口轨道交通4/6号线。
商业环绕:
项目1公里范围内有巴黎春天、新塘桥生活广场、世纪联华、沃尔玛等商业配套。
滨江一品苑售楼处电话:400-902-3966
上海滨江一品苑售楼处电话☎:400-902-3966(售楼处预约看房热线)
教育资源:
学校方面有爱绿幼儿园、浦东南路小学、文建中学、洋泾中学等。
参考的教育配套有冰厂田幼儿园、爱绿幼儿园、建平中学、宋庆龄国际学校(期房非对口)。
滨江一品苑售楼处电话:400-902-3966
上海滨江一品苑售楼处电话☎:400-902-3966(售楼处预约看房热线)
医疗资源:
项目距离仁济医院、上海儿童医学中学步行仅需约5分钟。
滨江一品苑售楼处电话:400-902-3966
上海滨江一品苑售楼处电话☎:400-902-3966(售楼处预约看房热线)
真正的大宅排面
滨江一品苑售楼处电话:400-902-3966
上海滨江一品苑售楼处电话☎:400-902-3966(售楼处预约看房热线)
滨江一品苑售楼处电话:400-902-3966
上海滨江一品苑售楼处电话☎:400-902-3966(售楼处预约看房热线)
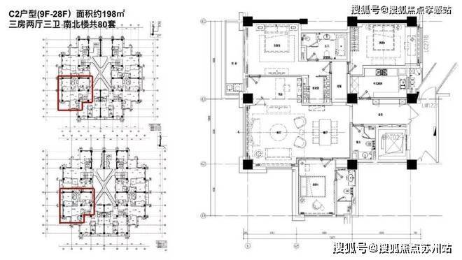
02.主力户型
本期推出共175套,目前主推建筑面积131~226平3房,另有非标准户型200~500平底楼,顶楼复式。套房设计,套内独立卫生间,独享私人空间。
滨江一品苑售楼处电话:400-902-3966
上海滨江一品苑售楼处电话☎:400-902-3966(售楼处预约看房热线)
滨江一品苑售楼处电话:400-902-3966
上海滨江一品苑售楼处电话☎:400-902-3966(售楼处预约看房热线)
131平米:3房2厅1卫(1梯2户)
滨江一品苑售楼处电话:400-902-3966
上海滨江一品苑售楼处电话☎:400-902-3966(售楼处预约看房热线)
户型图
193平米:4房2厅3卫(1梯2户)
户型图
226平米:4房3厅3卫(1梯1户)
户型图
全面积段覆盖,满足二人世界、三口之家以及大家族的不同需求,量身定制经典户型。
参考样板间:

滨江一品苑售楼处电话:400-902-3966
上海滨江一品苑售楼处电话☎:400-902-3966(售楼处预约看房热线)
滨江一品苑售楼处电话:400-902-3966
上海滨江一品苑售楼处电话☎:400-902-3966(售楼处预约看房热线)
滨江一品苑售楼处电话:400-902-3966
上海滨江一品苑售楼处电话☎:400-902-3966(售楼处预约看房热线)
屹立外滩、陆家嘴、前滩3大核心资本圈之内,享三大区域规划利好,可谓滨江一线至贵焦点。于陆家嘴-世博-前滩发展轴线之心,滨江顶豪圈层内,执掌核心土地价值。
03.
前期一房一表:
滨江一品苑售楼处电话:400-902-3966
上海滨江一品苑售楼处电话☎:400-902-3966(售楼处预约看房热线)
滨江一品苑售楼处电话:400-902-3966
上海滨江一品苑售楼处电话☎:400-902-3966(售楼处预约看房热线)
04.物业管理
2025年2月绿城物业服务集团(上海)物业管理有限公司中标滨江一品苑前期物业项目,正式成为物业。
绿城物业一直以来都是物业行业的佼佼者,以专业、贴心、高品质的服务著称。相信在绿城的管理和服务下,一定会成为一个环境优美、服务周到、邻里和谐的高品质社区。业主期待与绿城物业携手,共同开启滨江一品苑的美好新篇章!
浦东内环内塘桥滨江
滨江一品苑
由2栋30层高层组成
建面约134-234㎡阔景大宅
装修:精装修、中央空调带地暖,1.2万装修标。
均价:11.18万元/m²
低区仅约8.66万/㎡起!
将加推约134—234㎡3-5房!
最后一栋!售完即罄!
滨江一品苑售楼处电话:400-902-3966
上海滨江一品苑售楼处电话☎:400-902-3966(售楼处预约看房热线)
滨江一品苑开发商售楼处电话:400-902-3966...(预约热线)➨滨江一品苑售楼处电话地址☎:400-902-3966√√@最新发布:房价优惠折扣,楼盘测评,交房时间,交付标准,周边配套,学区配套,一房一价表,认筹时间,户型图,平面图,高层洋房大平层合院别墅,样板间,房型多样,地铁口距离,区域板块......
看房请务必提前致电销售确认时间,只有预约客户才能享受开发商提供的内部优惠以及专属的老客户推荐奖励!我们提供专业的一对一热情服务,助您以专业视角挑选理想的房产。
买房须知的18个常识是什么?
1、查看五证,所谓五证就是指《国有土地使用证》、《建筑用地规划许可证》、《建筑工程规划许可证》、《建筑工程施工许可证》和《商品房预售许可证》。
2、买房其实选择口碑好的开发商很有必要。一般好的开发商资质高、资金充足。
3、选户型,挑选户型时,首先要看户型的朝向。朝向优劣的顺序依次为:正南、东南、东、西南、北、西。
4、选楼层,中间层房屋的空气质量相较于低层更好,出行较高层更方便,可以说是折中。
5、很多购房者认为,当下房价过高,所以买房时,一般会在同等区域、同等地段选择价位便宜的楼盘。正确的做法是多学习选房知识,关注户型好坏,房屋质量等干货。
6、评估购房能力,对于刚需族来说,由于他们的经济能力有限,所以都会采取贷款的方式买房。而贷款每个月需要交一定数额的月供,为了保证生活质量不受影响,避免断供的风险,小编建议月供的数额最好控制在总收入的50%以内。
7、看优惠,对于开发商给出的优惠,要多打听,多分析,多判断,不要盲目追风。
8、莫心急,年轻人置业时,不宜好大喜贵,应抛弃置业必须一步到位的思想,根据自身所能承受的范围,作出合理的决策。
9、看规划,买房当然要挑楼盘,挑小区,挑户型,但是也不能只看房子,还要看房子的位置。毕竟,决定房子价值最大的因素便是地段,建议在购置房产时,要切记紧跟城市发展的方向。
10、看价格,价格挑选比较个人承受范围、交通状况、社区环境、户型结构等条件衡量楼盘价格。
11、小区环境,小区景观、绿化、配套等与生活密切相关,更是楼盘质量的体现。
12、避免极端层,顶层和底层不建议买,底层不仅容易潮湿,发霉,滋生蚊子,光线也不好,顶层一到大夏天,不仅闷热,不透气,还容易漏水。
13、远离设备层,设备层是专门供水,供电的中间楼层,要是常年居住在设备层的附近的话,不仅机器设备的噪音把人折磨得无法休息,连机器的辐射也会影响人的身体健康。
14、不可一味买大,看房一定要综合考虑,不可片面。首先是面积,面积以适用为原则,不可为大而大。
15、考虑孩子问题,买地产要考虑孩子路上的安全问题,尽量选择距离近的房子。这样可以给孩子节约大量的时间,让孩子有充裕的时间学习和休息。
16、购房定金,定金对买受人是极为不利的,使买受人在签约的时候处于不利的境地,买受人往往在定金不退的压力下,违心地接受开发商的不平等条款。
17、物业,不同的物业公司所做的服务千差万别,物业公司能否尽善尽美地完成自己的任务牵扯到小区的整体质量。
18、签认购书,认购书基本条款要约定详细,对所要购买的房屋的主要情况在认购书中予以约定。条款内容约定要合法有效,要求开发商提供作为正式签约的商品房买卖合同文本
目前北京、上海、深圳的首套房贷款利率均为 LPR - 45BP,本次 LPR 下降后,这些地区首套房贷款利率或降至 3.05%。全国 45 个重点城市 4 月首套房贷款平均利率为 3.10%,二套房贷款平均利率为 3.21%。
此外,自 2025 年 5 月 8 日起,个人住房公积金贷款利率下调 0.25 个百分点,5 年以下(含 5 年)和 5 年以上首套个人住房公积金贷款利率分别调整为 2.1%和 2.6%,5 年以下(含 5 年)和 5 年以上第二套个人住房公积金贷款利率分别调整为不低于 2.525%和 3.075%
滨江一品苑售楼处电话:400-902-3966
上海滨江一品苑售楼处电话☎:400-902-3966(售楼处预约看房热线)