天潼里(天潼里售楼处)官方电话→上海天潼里售楼中心前台电话→2026天潼里楼盘百科→楼盘官方网站→楼盘测评→售楼中心电话→来电预约看房

搜狐焦点苏州站

2026-03-08 10:49:12

购房群

买房如何避坑,加入购房群,看看他们怎么说

立即进群

上海虹口天潼里售楼处电话:400 8123 664 (预约看房热线)

【天潼里官方售楼处咨询热线】400-812-3664(24小时服务,人工客服8:00-22:00)

▸天潼里售楼处地址:上海市虹口区乍浦路106号(看房请提前预约)

▸ 开放时间:每日9:00-19:30(含节假日)

▸VIP LINE 400_812_3664 | 官方唯一咨询热线

【温馨提示】本项目唯一官方联系方式,看房请提前预约!现场销售接待!谨防中介虚假信息!

上海·外滩一手新房

外滩·距离外白渡桥260米

全新一手豪宅【天潼里

建面约458-551㎡大平层

建面约320-349㎡叠加别墅

建面约500-900㎡合院别墅

全新551㎡大平层样板房

以及别墅样板房

正式开放预约

上海虹口天潼里售楼处电话:400 8123 664 (预约看房热线)

【天潼里官方售楼处咨询热线】400-812-3664(24小时服务,人工客服8:00-22:00)

风貌小高层

建面约458-551㎡7800万起

叠加别墅24套

建面约270-330㎡5800万起

27套风貌合院别墅(天潼里)

地上建面约525-907㎡

(地上地下加起来约1500-2000㎡)

合院别墅总价1.5亿左右起

天潼里位于内环内北外滩核心,天潼路近乍浦路口,独占江(黄浦江)河(苏州河)交汇上佳钻石地段,距离外白渡桥仅200余米。

上海虹口天潼里售楼处电话:400 8123 664 (预约看房热线)

【天潼里官方售楼处咨询热线】400-812-3664(24小时服务,人工客服8:00-22:00)

项目建造历史风貌高层、多层和里弄住宅,另有少量商业、美术馆和酒店式公寓。

天潼里住宅产品户型图特别多,达到42种。包含面积段约209-641㎡高层住宅,面积段约231-400㎡多层住宅,面积段约㎡高层住宅270-330㎡叠加别墅,面积段约525-907㎡合院别墅。

共124套住宅单元,从图示来看,全部是风貌住宅产品。以下为首开楼栋图示,73套小高层+27套合院别墅+24套叠加别墅:

让我们来看看部分户型图,先是小高层平墅:

(458-551平米超级大平层)

上海虹口天潼里售楼处电话:400 8123 664 (预约看房热线)

【天潼里官方售楼处咨询热线】400-812-3664(24小时服务,人工客服8:00-22:00)

全新551㎡样板房首发

01|通厅揽景,天幕如卷

上海虹口天潼里售楼处电话:400 8123 664 (预约看房热线)

【天潼里官方售楼处咨询热线】400-812-3664(24小时服务,人工客服8:00-22:00)

三面全明贯通厅,接驳城市天际线的剧场式生活场景

约270度三面环幕式开窗,打通阳台、客厅、餐厅与厨房,形成约19.1米南向与22.1米东向的超宽视野面宽。空间如画轴展开,面朝陆家嘴天际线,营造如剧场般的奢阔视觉感受。

02|奢阔阳台,南得尺度

南向巨幕级双阳台布局,生活场景随光线延展

户型配置约10.8米客厅阳台与约8.3米主卧阳台,南向布局让自然光与景观最大化融入日常生活,在起居与私密空间中形成连续的舒展界面,真正实现自然与生活的双重联动。

03|套房满配,空间超凡

四卧三套房设计,约78㎡主卧套间奢享独立世界

配备四卧三套房与双公卫配置,主卧套房达约78㎡,配置殿堂级衣帽间与双台盆卫浴。三间套房均设独立衣帽间,其中两间配有阳台,全方位满足居者的尊贵私密与生活仪式感。

04|礼序归线,出入有界

主佣动线分流,服务与生活各循其道

采用主佣分线的专业布局,家政专属通道与主人动线分离,避免交叉与干扰,保障居住私密性与空间秩序,体现高端住宅应有的生活礼仪与尊崇体验。

05|双梯尊配,归家从容

8户2梯,远高于常规梯户比,提升进出效率

户型配置双梯双户门设计,形成4:1的低密梯户比,远优于市场平均,极大缩短候梯时间,让归家成为从容尊崇的第一步。

06|得房高标,实用领先

实得率达81%,在同类产品中处于领先水平

科学布局提升空间利用率,实现约81%的超高得房率,相比市场平均高出一截,为居者带来更多可使用空间与布局弹性,在同等总价下真正实现“多得多用”的使用价值。

叠加别墅介绍:(下叠和上叠)

上海虹口天潼里售楼处电话:400 8123 664 (预约看房热线)

【天潼里官方售楼处咨询热线】400-812-3664(24小时服务,人工客服8:00-22:00)

下叠别墅,是城市别墅生活的隐奢表达。沿街独立门牌,不仅昭示归家仪式,更在迎宾会客之间,展露门第的从容与尊贵。

01|独立门牌,尽显门第风范

沿街独立门牌,构筑家族化的身份标识。归家有序,待客有仪,于出入之间尽呈居者品味。

02|南北双入户,兼顾礼仪与私密

南向礼仪门迎宾,北向私密入户,动静有序,便捷自如,彰显居者从容气度。

03|近30㎡私家庭院,阳光与私密兼得

约2.2m围墙设计,既保留私密,又引光入室,于内外之间构建生活的层次感。

04|约10.5米南向面宽,开阔横向尺度

南向宽幕引光入室,赋予居住以通透的仪式感。

05|单层超160㎡,空间奢阔有度

客餐厅约60㎡,配有约60㎡超大贯通式主卧,生活场景自成体系,优雅而张弛有度。

全套房布局,让家人各得其所,舒适与私密兼得。

06|郎阔格局,空间随心定义

约3.5m与3.6m层高递进延展,纵深之中蕴含尊崇尺度。

基本无承重墙设计,空间可自由定义,生活随心铺陈。

超1:1实得赠送比,让空间更丰盈、体验更进阶。

07|地下空间,功能无限延展

地下层均配采光井,舒适度保障;约6.7m层高可容纳酒窖、会所等多元功能,承载生活的更多想象

上海虹口天潼里售楼处电话:400 8123 664 (预约看房热线)

【天潼里官方售楼处咨询热线】400-812-3664(24小时服务,人工客服8:00-22:00)

上海虹口天潼里售楼处电话:400 8123 664 (预约看房热线)

【天潼里官方售楼处咨询热线】400-812-3664(24小时服务,人工客服8:00-22:00)

上海虹口天潼里售楼处电话:400 8123 664 (预约看房热线)

【天潼里官方售楼处咨询热线】400-812-3664(24小时服务,人工客服8:00-22:00)

上叠别墅,是一种生活姿态。居于更高一隅,揽尽城市的光影流转。在喧嚣之上,自成一方私域天地。

上海虹口天潼里售楼处电话:400 8123 664 (预约看房热线)

【天潼里官方售楼处咨询热线】400-812-3664(24小时服务,人工客服8:00-22:00)

01|双露台·一阳台,延展自然的呼吸

南北双向开阔布局,北向露台近10米,城市景观与自然相融。

休闲露台对话城市天际线,于阳光与风景之间,重拾生活的轻盈。

02|约10.5米南向面宽,采光极佳

横向展开的空间尺度,让阳光洒满每一处生活场景,晨昏之间皆是风景。

03|单层约160㎡,全套房设计

以约160㎡单层空间承载家庭生活的仪式感,约60㎡客餐厅贯通休闲阳台,空间通透、气度非凡。全套房设计,保证每位居者的私密与舒适,礼序有致、功能齐备。

04|自由改动,基本无承重

内部结构灵动,可根据家庭需求自由规划,空间使用无界。

赠送约3.2米层高地下室,生活可能由此倍增。

05|奢阔层高,演绎空间的尊崇感

三层约3.5m、四层约3.6m层高,纵向空间感更显阔绰,舒居尺度跃然呈现。

外滩之上·大师联袂

叠墅建面约320-349㎡

大平层建面约458-551m²

全新作品敬请期待

上海虹口天潼里售楼处电话:400 8123 664 (预约看房热线)

【天潼里官方售楼处咨询热线】400-812-3664(24小时服务,人工客服8:00-22:00)

外滩正核板块唯一在售新房

苏州河黄浦江「一江一河」交汇原点

距外白渡桥约200米,步行约5分钟至外滩万国建筑群

与陆家嘴三件套隔江对望,坐享丰盈配套

接下来介绍525平合院别墅:

近年来,上海在城市更新方面既注重保护原有城市肌理,又着重发展历史风貌建筑。这一方式虽然创造了一个多元且尊重历史的城市景观,但这些新开发的风貌住宅项目也代表着一种有别于中国传统房地产市场的新方向。

LilongLiving

里弄生活

上海虹口天潼里售楼处电话:400 8123 664 (预约看房热线)

【天潼里官方售楼处咨询热线】400-812-3664(24小时服务,人工客服8:00-22:00)

江南绞圈房与西式联排住宅

JiangnanCourtyardHouse&WesternTownhouse

里弄房屋,也称为石库门,是中国传统四合院与西方联排住宅的独特融合,体现了海派建筑的跨文化特色传统。中国传统四合院强调内向的水平空间,而西方联排住宅则以外向的垂直空间为特色。这种建筑设计的融合反映了十九世纪至二十世纪初上海开放进取的国际精神。

ReturntotheCourtyard

栖息院落

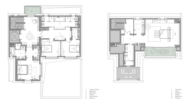
1层设计平面

1FFloorplan

入户体验始于私家庭院。在高密度的城市环境中,庭院为住宅提供了一处解压之地,一缕新鲜空气。因此,在平面布局上,我们将所有重要空间布置在庭院周边,以充分利用庭院空间。

庭院

Courtyard

从庭院地面层,可以看到客厅和餐厅的内部空间。客厅在立面上向内凹陷,形成了一条有遮盖的走廊,通向房屋定制的深铜色入户大门。

上海虹口天潼里售楼处电话:400 8123 664 (预约看房热线)

【天潼里官方售楼处咨询热线】400-812-3664(24小时服务,人工客服8:00-22:00)

入户门

EntryDoor

入户空间由一个简约的门厅和楼梯厅组成,门厅配有控制台和嵌入式衣柜。以多功能圆桌为中心的楼梯厅连接着楼梯、电梯、客用卫生间和客厅。空间采用白色洞石搭配特制染色的胡桃木,其浅色调与洞石和谐呼应,同时保留了胡桃木独特的纹理特征。

楼梯厅上海虹口天潼里售楼处电话:400 8123 664 (预约看房热线)

【天潼里官方售楼处咨询热线】400-812-3664(24小时服务,人工客服8:00-22:00)

StairHall

在客厅中,两个展示架巧妙地将空间分隔成主客厅区和休闲室,营造出一个与建筑尺度交相辉映的层次空间。

这样的布局提供了多样的就座选择——主客厅区保持其开阔大气,与庭院浑然一体;而配备了吧台并可俯瞰北侧小庭院的休闲室,则营造出温馨私密的氛围。

上海虹口天潼里售楼处电话:400 8123 664 (预约看房热线)

【天潼里官方售楼处咨询热线】400-812-3664(24小时服务,人工客服8:00-22:00)

正式客厅

FormalLivingRoom

餐厅四角以高光烤漆板为基准,营造出庄重感。空间一侧临近中庭,另一侧毗邻西侧小庭院。

餐厅

DiningRoom

一面贯穿地下室至阁楼七层的整体白色洞石墙体构成建筑主轴。楼梯采用纯净简约的设计,作为连接整个住宅的核心元素,与每层的风格相得益彰。

<<滑动查看swipeformore>>

上海虹口天潼里售楼处电话:400 8123 664 (预约看房热线)

【天潼里官方售楼处咨询热线】400-812-3664(24小时服务,人工客服8:00-22:00)

1-4层楼梯间

1-4FStaircase

深铜色的栏杆和扶手融合传统与现代语汇,演变出一种当代型态,与现代白色洞石相映成趣,营造出优雅纯粹的意境。

MasteroftheCourtyard

大隐隐于市

整个三层都属于主卧套间。我们非常重视这一层空间的秩序感和流线,并尝试了多种方案。最终我们没有将主卧室空间直接紧贴面向庭院的窗户,而是借鉴上海老洋房的做法,在中间增加了一个过渡空间——‘阳光房’。

这个空间不仅解决了整层的交通动线,更重要的是,考虑到里弄建筑之间的紧密距离,通过将最私密的卧室区域与大窗户分开来确保居住者的隐私。同时为了确保主卧室区域能获得充足的自然光,我们使用折叠百叶门来分隔主空间和阳光房。

主卧入口

MasterBedroomEntrance

主卧室空间

MainBedroomSpace

床边的读书角落

ReadingCorner

“阳光房“

“Sunroom“

上海虹口天潼里售楼处电话:400 8123 664 (预约看房热线)

【天潼里官方售楼处咨询热线】400-812-3664(24小时服务,人工客服8:00-22:00)

深色烟熏橡木搭配EricMorris定制的黄铜五金件,将上海石库门的韵味和气质在精致的细节中得到完美诠释。

主卫

MasterBathroom

CourtyardLiving

庭院生活

2&4层设计平面

2&4FFloorplan

上海虹口天潼里售楼处电话:400 8123 664 (预约看房热线)

【天潼里官方售楼处咨询热线】400-812-3664(24小时服务,人工客服8:00-22:00) 二层设有儿童区和父母房间。所有房间都围绕庭院布置,以充分利用景观视野。我们还将楼梯厅空间改造成家庭图书馆——在这个原本私密的楼层创造了一个公共空间。这为家庭成员增加了除客厅和地下室之外的又一互动空间,强化了我们对现代上海家庭——更多交通和爱的理念。

家庭书房

FamilyLibrary

<<滑动查看swipeformore>>

上海虹口天潼里售楼处电话:400 8123 664 (预约看房热线)

【天潼里官方售楼处咨询热线】400-812-3664(24小时服务,人工客服8:00-22:00)

父母卧房&儿童卧房

Parents’andKid’sBedrooms

儿童卫生间

Kid’sBathroom

四层阁楼是大女儿的卧室。这里的斜顶启发我们在空间内打造了一个木质小屋;配备私人浴室和衣帽间,还有一个露天阳台,仿佛这充满阳光的一层就是个独立公寓。

EndlessInterior

室内的"室内"

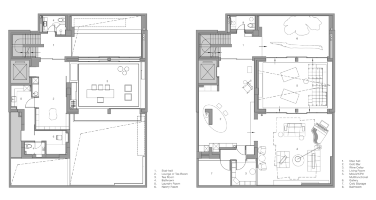
地下室层是娱乐和家庭聚会的主要空间,因此,我们将空间设计得更现代和随意。也正是在这里,我们突破了室内空间中跨文化对话的界限。

地下设计平面

上海虹口天潼里售楼处电话:400 8123 664 (预约看房热线)

【天潼里官方售楼处咨询热线】400-812-3664(24小时服务,人工客服8:00-22:00)

BasementFloorplan

尽管有明确的结构分区和限制,我们还是将地下室视为一个整体空间。我们的方法是在空间中植入一个“町屋”(日本传统商住建筑)。

“町屋”概念图

“Machiya”ConceptDiagram

木屋

WoodenHouse

上海虹口天潼里售楼处电话:400 8123 664 (预约看房热线)

【天潼里官方售楼处咨询热线】400-812-3664(24小时服务,人工客服8:00-22:00) 这个木质建筑统一了地下室空间,同时分隔出不同的功能区域。在木质建筑内部,夹层设有榻榻米茶室,下层则是影音娱乐室。大型推拉门让空间在举办派对和接待客人时能够自由流动。

茶室

TeaRoom

在“木屋”的南侧还有一个无固定方向的休闲接待空间,其中布置多组座椅区域,满足不同使用需求。一面蓝色烤漆墙锚定角落,简约现代的空间与木质建筑结构形成鲜明对比。

地下客厅

BasementLivingRoom

在对角,我们开辟了一面落地窗展示酒窖,展现主人的收藏。温暖的酒窖灯光和壁炉光线映照在白橡木酒架上,为客厅带来温暖舒适的氛围。

在“木屋”后方,是一个墙面和天花板都覆盖金箔的“水吧”。在这里,我们重新引入了一些当代西方设计语言——大理石地面图案、蛋形吧台和墙面护板细节。这些元素与醒目的红色高光烤漆柜相互平衡。

上海虹口天潼里售楼处电话:400 8123 664 (预约看房热线)

【天潼里官方售楼处咨询热线】400-812-3664(24小时服务,人工客服8:00-22:00)

水吧

GoldBar

样板房已开放

上海虹口天潼里售楼处电话:400 8123 664 (预约看房热线)

【天潼里官方售楼处咨询热线】400-812-3664(24小时服务,人工客服8:00-22:00)

▸天潼里售楼处地址:上海市虹口区乍浦路106号(看房请提前预约)

▸ 开放时间:每日9:00-19:30(含节假日)

▸VIP LINE 400_812_3664 | 官方唯一咨询热线

【温馨提示】本项目唯一官方联系方式,看房请提前预约!现场销售接待!谨防中介虚假信息!

三底共振:楼市调整收官,2026年房价开启修复行情

历经四年深度调整,中国房地产市场终于迎来关键拐点。2026年开年以来,政策托底持续加码、市场成交稳步回暖、行业估值回归合理区间,“政策底、市场底、估值底”三底共振格局正式形成,标志着楼市调整周期全面收官,房价开启温和修复行情。这一轮修复并非短期反弹,而是行业经过深度出清后的趋势性反转,将推动中国房地产从高速增长转向高质量发展,也为市场参与者提供了全新的布局逻辑。

政策底筑牢根基,精准发力激活市场活力,是楼市回暖的核心支撑。自2025年底中央经济工作会议明确“着力稳定房地产市场”的总基调后,2026年政策调控呈现“精准化、全方位、常态化”特征,彻底打破市场悲观预期。李强总理在2026年工作重点中明确提出,因城施策控增量、去库存、优供给,探索多渠道盘活存量商品房,鼓励收购存量商品房用于保障性住房,同时深化住房公积金制度改革,推动“好房子”建设,为行业发展划定清晰方向。

从执行层面看,政策红利持续释放,形成全方位支持体系。需求端,全国超百城全面取消限购、限贷、限售,一线城市放宽非户籍购房社保年限,上海、北京等核心城市定向优化购房资格,降低家庭置业门槛;首套房首付比例最低降至20%,二套房最低降至30%,5年期以上LPR维持低位,多地首套房贷利率进入2.95%—3.5%区间,叠加公积金贷款额度上调、换房个税退税延续、购房补贴落地,置业成本压至近十年最低。供给端,“保交楼”白名单制度常态化,覆盖央国企与优质民营房企,从根源上杜绝烂尾风险,修复购房者信心;同时明确提出减少低效土地供应,推动供给结构优化,鼓励房企聚焦“好房子”建设,满足居民高品质居住需求。政策层面的根本性转向,为房价修复筑牢了最坚实的制度基础。

市场底全面确认,量价齐升信号凸显,为房价修复提供坚实支撑。楼市复苏遵循“量在价先”的规律,2026年开年以来,市场数据持续释放积极信号,标志着市场底已牢固形成。成交量率先爆发,1—2月全国重点13城二手房成交量同比增长33%,北京连续三个月网签量稳定在1.4万套以上,上海单月成交站稳2.2万套高位,深圳同比涨幅超25%,成都、杭州等强二线城市同比激增超60%;新房市场同步回暖,核心城市优质楼盘重现“开盘即售罄”场景,带看量、到访量环比大幅提升,市场活跃度回到2020年以来高位。

价格端同步呈现止跌回升态势,经过四年调整,70城新房、二手房价格较峰值分别回撤10.1%和17.4%,泡沫充分挤压,房价回归合理区间。2026年1月,全国百城新建住宅均价环比上涨0.18%,结束长期下行趋势;二手房价格降幅连续收窄,一线城市核心板块率先企稳,优质次新房挂牌价温和上调,议价空间从过去10%—15%收窄至5%以内,业主惜售情绪明显上升。与此同时,库存压力持续缓解,全国商品房去库存周期较2025年底缩短2.1个月,核心城市库存去化周期降至14—18个月合理区间,供给过剩局面逐步扭转,为价格上涨扫清障碍。克而瑞联席董事长丁祖昱也明确研判,2026年房地产行业将正式确认底部,止跌回稳成为定局。

估值底已然显现,行业价值回归理性,为房价修复提供内在动力。从资本市场表现来看,房地产(A股)指数自2026年初以来呈现震荡回升态势,截至3月5日,总市值达12169.11亿元,最新报告期市净率0.98,市销率0.73,估值水平已处于历史低位,具备较强的修复空间。从行业基本面来看,经过四年深度出清,房企“高杠杆、高周转”的发展模式彻底终结,大量中小房企退出市场,行业集中度持续提升,优质房企的估值优势逐步凸显。

更为关键的是,房价调整幅度已达到合理区间,具备了较强的资产配置价值。据丁祖昱研判,我国30城二手房价格较最高点已回撤39%,远超国际平均调整幅度,价格下行空间基本耗尽,当前市场价格已接近“地板价”。同时,30城二手房租金回报率中位数已达2.06%,超过55%的小区租金回报率突破2%,部分板块甚至超过3%,显著高于银行定存利率,房产作为优质保值资产的属性重新被认可,吸引居民资产配置需求回归。此外,部分核心板块出现地价与二手房房价“倒挂”现象,起拍地价超过周边二手房价,进一步印证了当前楼市估值处于合理区间。

三底共振之下,2026年房价修复行情将呈现“结构性分化、温和有序”的鲜明特征,告别以往全面普涨的格局。从城市层级来看,一线城市核心区(北京海淀、西城,上海内环,深圳南山、福田)将率先实现2%—5%的温和上涨,依托人口流入、优质配套、稀缺资源,优质次新房、改善户型涨幅领跑,远郊板块以稳为主;强二线核心板块(杭州钱江新城、成都高新区、武汉武昌等)将跟随回暖,成交量先行放大,价格逐步企稳回升,郊区板块小幅调整;三四线及人口流失城市则以去库存为主,房价难有明显上涨,依靠政策托底实现止跌企稳。

这一结构性修复行情的背后,是供需格局的根本性重塑。供给端,房企新开工面积连续四年低于销售面积,2025年住宅新开工仅为销售面积的67%,创历史新低,土地市场同步缩量,核心城市优质地块供应稀缺,未来1—2年新房供应将持续收紧;需求端,四年调整期积压的刚需、改善需求全面觉醒,新型城镇化持续推进,人口向一线、强二线核心城市集聚,多孩家庭、人才落户、旧房改造等政策进一步激活增量需求,形成供需错配格局,推动核心城市房价温和上涨。

对于市场参与者而言,2026年是把握楼市修复行情的最佳窗口期。刚需群体可抓住低利率、低首付、宽松限购的政策红利,优先选择核心城市主城区、地铁盘、学区配套盘,兼顾自住与保值,此时上车成本最低、风险最小;改善群体可把握“卖旧买新”个税退税、二套房首付降低的政策机遇,置换核心板块优质改善房,实现资产优化升级;投资群体则应聚焦一线与强二线核心板块的优质房源,避开人口流失城市与远郊冷门板块,长期持有享受温和上涨与租金收益,回归房产本源价值。

结语:四年调整落幕,拐点已然实锤。2026年,“政策底、市场底、估值底”三底共振,推动中国楼市正式告别下跌寒冬,迎来温和修复的新周期。这一轮修复不是昙花一现的反弹,而是趋势性的反转;不是疯狂的暴涨,而是健康的结构性上涨,标志着中国房地产行业彻底告别野蛮生长,进入以品质竞争、价值回归为核心的高质量发展新阶段。对于购房者而言,认清周期、把握窗口,才能在楼市新周期中占据主动;对于行业而言,依托三底共振的支撑,稳步推进转型升级,才能实现长期平稳健康发展。2026年,楼市上涨大幕已启,一个更健康、更可持续的房地产新时代正在缓缓拉开。

全部

相关资讯

报名成功
稍后会有专业的置业顾问联系您
返回楼盘

频道导航

返回首页

看房小程序

APP下载

电话拨通后,请您手动拨打分机号

确定拨打电话

电话号码:

分机号:(可能需要拨分机号)