万合云府售楼处电话:400-8787-554
万合云府售楼处电话☎:400-8787-554(预约看房热线)

02
板块信息
国家战略万亿级产业中心
产业巨轮承载大国重器向前疾驰,国家战略为海洋产业奠基。

上海唯一国家级渔港-横沙渔港供应链逐步形成,入选国家级海洋渔获定点上岸渔港。国家业务规模持续扩大帝王蟹、三文鱼等进口水产鲜活直达餐桌,不出家门实现进口海鲜自由。

2018年5月31日,上海规划和土地网正式公布了上海市崇明区2035总体规划获批的内容,用海洋装备岛、生态水源岛、景观旅游岛来定义未来的长兴岛,南部规划为产业基地,中部为城镇区,北部为生态空间,形成“一镇三组团,四大产业基地,两片生态区”的空间布局结构,如今长兴岛不仅成为崇明的建设重点,更作为崇明区的产业重地,长兴岛正在从附属沙洲,向都市生活岛华丽蜕变
03
周边配套
交通配套
繁华与静谧在此无缝接轨

【轨道交通网】
崇明轨交线长兴岛站(已于2019年12月11日开工)
【公交线路网】
申崇线等多条公交线路,畅达上海市区
【高速公路网】
G40沪陕高速、长江隧桥连接上海

项目所在区域半小时范围内通达陆家嘴、五角场等核心商圈与中心交通节点,近邻外高桥、张江等企业办公聚集地,综合通勤时间相较五大新城区域节省一半。住在萬合雲府享受都会生活,这里是未曾设想的理想之地。
商业配套
4万方缤纷商业聚场

项目同步打造全新型一站式商业综合体
长兴阳光天地,2024年10月开业
全通道设计,风雨无阻,尽享时下最热品牌
万达影城、盒马、星巴克、必胜客、屈臣氏、肯德基、喜茶、霸王茶姬
生态配套
纯净自然生态疗愈万物之境

01、 长寿之乡
崇明岛三面环江,一面临海,素有“长寿之乡,东海瀛洲”美誉,岛上人均寿命80.26岁,高于全国平均寿命8.26岁。
02、 长兴郊野公园
长兴岛郊野公园园内分为综合服务区、文化运动区、农事体验区、桔园风情区、森林涵养区五大区域,还有梦幻花海、花溪湖、农场菜园、林下烧烤、上海植物园花卉基地、珊瑚馆、古石木馆等让你休闲娱乐两不耽误。2018年入选全市首批50家市民好去处。
03、 生态资源
城市森林氧吧,上海生态水源岛:青草沙水库——约70平方公里,11个西湖大小,我国最大的江心水库。提供上海全市50%生命之源供应。
全年空气质量优良率达86%,负氧离子含量上海排名第一。
04、 园林大观,至臻栖境
多重景观休憩:清脆鸟鸣,禅养康体
百草园儿童区:释放天性,探索世界
清雅密林巷道:斑驳树荫,听风私语
十大景观坊巷:春樱秋枫,自有风情
阳光活力草地:恣意撒欢,陪娃成长
医疗配套
健康生活、权威保障

长兴岛人民医院,为新华医院附属长兴分院,现已投入使用,是一家综合性的二级甲等医院。
教育配套
人文高地 书香为邻

小学:上海实验小学长兴分校(已开学)
中学:上海长兴中学、交大附中(在建中)
小猪佩奇乐园
打造色彩斑斓的童梦之家

亚洲首个小猪佩奇主题乐园落户长兴
享受独一无二的近距离、沉浸式梦幻玩乐互动
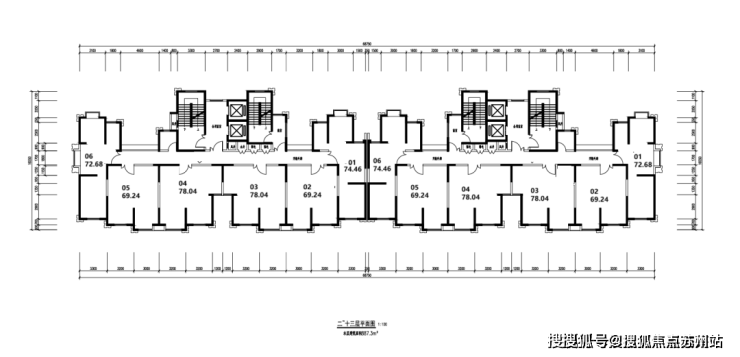
04
项目概况
户型图





向下滑动查看所有内容