近期苏州公积金新政的落地,为购房者带来了实实在在的利好。特别是"以贷冲贷"政策的实施,让六大区的购房者无需提前结清贷款即可实现转贷,大大减轻了购房压力。个人最高可贷120万,家庭最高150万,符合条件的全日制本科以上学历者还能再提升50%。这些政策红利,无疑为有置业计划的朋友提供了难得的机遇。在这样的政策背景下,星合晋墅这样的优质项目,自然成为了许多人的理想选择。
星合晋墅,由星合控股倾力打造,定位为城市生活美学运营商,坚持"只定制,不复制"的理念。项目拥有约50%的绿化覆盖率和约1.02的低容积率,业态包括7层的低密洋房和3层的院墅。目前主推建面约230㎡-350㎡的低密洋房,以及约400㎡-700㎡的稀缺院墅。咨询热线:18662309054
18662309054
区域配套
住在星合晋墅,周边3公里内就能享受到全方位的苏州优质生活配套。孩子的教育问题不用愁,从幼儿园到中学都有知名学府可选,比如华林幼儿园、双湖湾教育幼儿园、翰林小学和尹山湖中学等。健康方面也有保障,星海医院、九龙医院、独墅湖医院等权威医疗资源就在附近。出行更是便利,5号和8号地铁线就在附近,加上金鸡湖大道、独墅湖大道、金鸡湖隧道这三条黄金主轴,无论去哪里都方便。购物娱乐也很丰富,山姆会员店、星湖天地、星月坊商业街等商圈就在身边。闲暇时,1.6公里外的金鸡湖高尔夫俱乐部和3公里外的独墅湖公园是放松身心的好去处。
品牌价值
星合控股可不是一般的开发商,他们从2003年就来到苏州,已经在园区深耕了20多年,打造了不少苏州高端住宅、奢华酒店和潮流商业的标杆作品。他们家的代表作有苏州晋园别墅、晋合水巷邻里、晋府水巷别墅、金湖湾,还有洲际酒店、凯悦酒店等。在星合晋墅,还有一处约11亩的湖叙SPACE艺术会所,坐落在双湖之畔,是个能让时光放缓、心灵栖息的好地方。会所里有泳池、羽毛球场、高端健身区、家族私宴厅、亲子阅读室等私密空间,让你和邻居们都能享受到高品质的圈层生活。
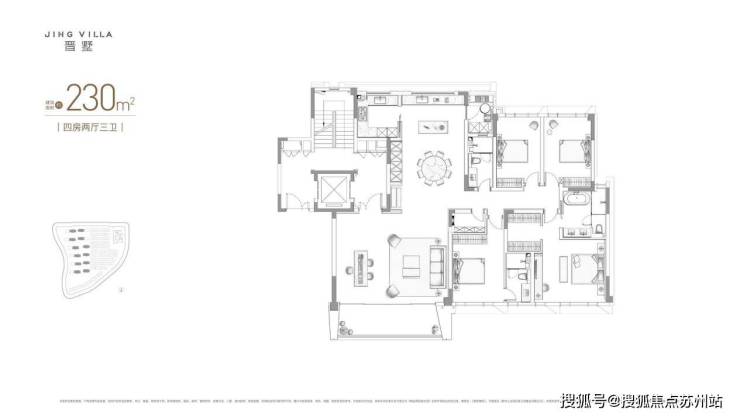
户型鉴赏
星合晋墅的户型设计理念是从"精神场域构建"到"大宅场景空间",注重居住者的精神需求和实际生活体验。目前主推建面约230㎡-350㎡的低密洋房,以及联排产品,空间宽敞,布局合理,满足不同家庭的需求。



优势分析
星合晋墅的优势可不少:首先,它拥有约50%的高绿化率和约1.02的低容积率,居住环境非常舒适;其次,项目由星合控股开发,这家开发商在苏州有20多年的高端项目经验,品质有保障;再者,周边配套齐全,教育、医疗、交通、商业、休闲设施一应俱全;最后,户型设计注重居住体验,空间宽敞,适合追求高品质生活的家庭。
随着苏州公积金新政的落地,特别是"以贷冲贷"政策的实施,让更多购房者能够轻松转换贷款方式,减轻购房压力。星合晋墅作为星合控股在苏州的又一力作,凭借其低密度的社区规划、完善的周边配套、开发商的雄厚实力以及优质的户型设计,无疑将成为苏州高端住宅市场的一颗明珠。未来,随着区域发展的不断成熟,星合晋墅的价值也将持续攀升,为业主带来可观的投资回报和舒适的居住体验。选择星合晋墅,不仅是选择了一个家,更是选择了一种高品质的生活方式,一个充满无限可能的未来。
联系方式:18662309054