济仁华庭售楼处电话☎:400-8787-554(预约热线)
杭州济仁华庭售楼处电话☎:400-8787-554(欢迎预约)
温馨提示:提前预约销售人员看房,感谢您对售楼处的配合!
⚠免责声明:请尊重他人的努力和智慧,避免未经授权的复制或引用,以维护创作的公正性和原创性。

项目介绍售楼处电话☎:400-8787-554:济仁华庭总用地面积5.25万平方米,总建筑面积25.50万平方米。项目由12幢24-26层高层、二层地下车库和社区卫生等配套用房组成,住宅1393套.

售楼处电话☎:400-8787-554
【项目地址】 东至规划二十七路,南至振宁路,西至金鸡路绿化带、北至规划济仁路.
【均价】 33000/㎡
【面积】 70 ㎡、120㎡ 、140 ㎡
【楼层规划】 24-26层高层,总高83.
【装修】 毛坯.
【体量】 共 12幢、二层地下车库、住宅1393套.
【户型特点】 户型方正,南北通透,全明设计,大阳台.

项目卖点:
商业售楼处电话☎:400-8787-554:奥体印象城、山姆超市、华联超市、如家超市,怡瑞生活超市,领航汇…
学校售楼处电话☎:400-8787-554:崇文钱江世纪城实验学校.杭州第二中学钱江校区,江南中学,学军文渊中学.
地铁售楼处电话☎:400-8787-554:地铁15号线丰二站(0米)地铁7号线兴议站(900米)

公交站售楼处电话☎:400-8787-554:531M、542、537、2007M、519、533、791M.
医院售楼处电话☎:400-8787-554:浙医附院.
公园售楼处电话☎:400-8787-554:钱江世纪城公园.

售楼处电话☎:400-8787-554
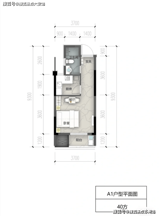
户型:


杭州济仁华庭售楼处电话☎:400-8787-554
售楼处电话:400-8787-554
楼盘项目全面介绍,本电话为开发商提供线 上预约售楼电话,楼盘项目全面介绍(包含楼盘简介,均价,房价,现房,期房,别墅,叠墅,大平层,价格,楼盘地址,户型图,交通规划,备案价,备案名,项目配套,样板间,开盘时间,认筹时间,楼盘详情,售楼处电话,最新消息,最新详情,周边配套,一房一价,最新进展等详情咨询)楼盘详情丨价格丨更多优惠丨机不可失丨欢迎致电丨诚邀品鉴!售楼处位置丨特价房丨工抵房丨剩余房源丨户型图丨最新消息丨购房为人生四大重要事情之一选择一个好的销售可让购房购的愉快熟悉、免责声明:将文章内容综合来源于网络、只作分享,版权归原作者所有!!如有侵权,请联系我们,我们第一时间处理如有问题欢迎来电咨询,专业一对一热情服务,让您用专业眼光去买房。如果您想了解更多楼盘详情,欢迎提前预约拨打售楼处电话☎400-8787-554✔✔✔