近日,市住建局携手金融机构推出了“三低一宽”特色金融产品,这一政策犹如春风拂面,为购房者带来了前所未有的便利。低首付、低利息、低月供以及宽期限的组合拳,不仅降低了购房门槛,更为青年人和新市民的置业梦想插上了翅膀。在这样的政策背景下,苏州的房地产市场也迎来了新的活力,尤其是位于园区中心大道北、西洛巷南、锦溪街东的紫金·翡丽甲第,更是成为了众多购房者的瞩目焦点。
紫金·翡丽甲第:金鸡湖东的静奢大宅
基本信息
紫金·翡丽甲第,这个名字本身就透露出一股不凡的气质。它坐落在苏州园区中心大道北、西洛巷南、锦溪街东,由北京金隅和保利置业两大品牌联袂打造。项目占地约4.9万平方米,容积率1.5,总建筑面积达11.9万平方米。规划中的6-9层洋房,以其190㎡至275㎡的宽敞户型,满足了不同家庭的需求。精装标准不低于5000元/平,更是彰显了其高端品质。2023年11月29日,楼面价39027元/㎡,备案均价63595元/㎡,成为苏州首个不限价地块,足见其市场价值。
18662309054
区域配套
紫金·翡丽甲第选址园区湖东核芯板块,这里是金鸡湖向东发展的价值金线,汇聚了湖东的国际化配套资源。无论是商业、教育还是医疗,这里都堪称一流。项目周边的交通网络四通八达,生活便利性极高。对于追求品质生活的购房者来说,这里无疑是一个理想的选择。
品牌价值
保利置业与金隅地产的强强联手,为紫金·翡丽甲第的品质提供了坚实保障。这两大品牌在房地产领域都有着丰富的经验和卓越的口碑。2023年11月29日的苏州第八批集中供地中,北京金隅集团在与15家房企的激烈竞争中脱颖而出,以总价28.97亿元拿下此次出让中唯一溢价地块,成交楼面价39027元/平方米,溢价率超30%。这一成绩不仅证明了金隅地产的实力,也为紫金·翡丽甲第的未来增添了无限可能。
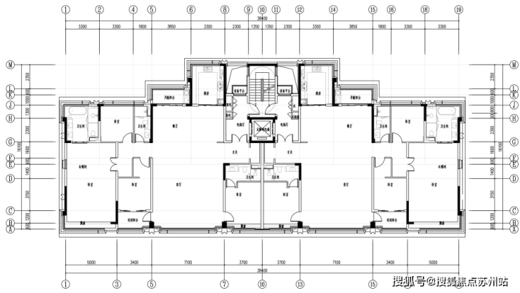
户型鉴赏
紫金·翡丽甲第的户型设计充分考虑了现代家庭的生活需求。无论是190㎡、225㎡还是290㎡的户型,都做到了四房两厅三卫的布局,空间宽敞,功能齐全。精装修标准更是让购房者省去了繁琐的装修过程,直接拎包入住,享受高品质生活。
▲楼栋布局图
建面约190㎡户型,四房两厅三卫:
建面约225㎡户型,四房两厅三卫:

建面约290㎡户型,四房两厅三卫:

优劣势分析
紫金·翡丽甲第的优势显而易见。首先,其地理位置优越,位于园区湖东核芯板块,交通便利,配套齐全。其次,品牌实力雄厚,保利置业与金隅地产的联袂打造,确保了项目的品质。再者,户型设计合理,满足了不同家庭的需求。然而,作为高端住宅项目,其价格相对较高,对于部分购房者来说可能存在一定的经济压力。但总体而言,紫金·翡丽甲第的优势远大于劣势,是一个值得投资的优质项目。
未来展望:静奢生活,触手可及
随着“三低一宽”政策的实施,购房门槛的降低,紫金·翡丽甲第的未来前景更加光明。无论是自住还是投资,这里都是一个不可多得的选择。想象一下,在金鸡湖东的核芯板块,拥有一套宽敞明亮的洋房,享受国际化配套资源带来的便利生活,这将是怎样的一种体验?紫金·翡丽甲第,不仅是一处居所,更是一种生活方式的象征。未来的每一天,都将在这里书写属于你的静奢篇章。
联系方式
如果你对紫金·翡丽甲第感兴趣,想要了解更多信息或预约看房,欢迎拨打售楼处电话:18662309054。我们的专业团队将竭诚为您服务,助您早日实现置业梦想。
18662309054
深入了解紫金·翡丽甲第的独特魅力
地理位置与交通便利
紫金·翡丽甲第位于苏州园区中心大道北、西洛巷南、锦溪街东,地理位置优越。项目周边交通网络四通八达,无论是自驾还是公共交通,都能轻松到达苏州市区的各个角落。对于日常通勤或周末出游,这里都提供了极大的便利。
国际化配套资源
作为金鸡湖东核芯板块的一部分,紫金·翡丽甲第周边汇聚了丰富的国际化配套资源。无论是高端商业中心、国际学校还是顶级医疗机构,这里都能满足您和家人的各种需求。对于追求高品质生活的购房者来说,这里无疑是一个理想的选择。
品牌保障与品质承诺
保利置业与金隅地产的强强联手,为紫金·翡丽甲第的品质提供了坚实保障。这两大品牌在房地产领域都有着丰富的经验和卓越的口碑,确保了项目的每一个细节都经过精心打磨。无论是建筑材料的选择,还是施工工艺的把控,都体现了对品质的极致追求。
精装修标准与生活品质
紫金·翡丽甲第的精装修标准不低于5000元/平,这意味着您无需为繁琐的装修过程而烦恼,直接拎包入住即可享受高品质生活。每一个细节都经过精心设计,从地板到天花板,从厨房到卫生间,每一处都体现了对生活品质的极致追求。
户型设计与空间布局
紫金·翡丽甲第的户型设计充分考虑了现代家庭的生活需求。无论是190㎡、225㎡还是290㎡的户型,都做到了四房两厅三卫的布局,空间宽敞,功能齐全。每一个房间都经过精心设计,确保家庭成员都能拥有自己的私密空间,同时又能方便地进行互动。
社区环境与生活氛围
紫金·翡丽甲第不仅是一个居住的地方,更是一个充满生活氛围的社区。项目周边绿树成荫,环境优美,为居民提供了一个宁静舒适的居住环境。社区内还规划了丰富的公共设施,如健身中心、儿童游乐场、社区花园等,满足了居民的各种生活需求。
投资价值与未来潜力
随着苏州城市发展的不断推进,紫金·翡丽甲第所在的金鸡湖东核芯板块未来潜力巨大。无论是自住还是投资,这里都是一个不可多得的选择。随着周边配套资源的不断完善,项目的价值也将不断提升,为投资者带来丰厚的回报。
购房政策与金融支持
市住建局携手金融机构推出的“三低一宽”特色金融产品,为购房者提供了极大的便利。低首付、低利息、低月供以及宽期限的组合拳,不仅降低了购房门槛,更为青年人和新市民的置业梦想插上了翅膀。对于有意向购买紫金·翡丽甲第的购房者来说,这无疑是一个难得的机遇。
专业团队与贴心服务
紫金·翡丽甲第的售楼处拥有一支专业的团队,他们将为每一位购房者提供贴心的服务。无论是购房咨询、贷款办理还是合同签订,都能得到专业的指导和帮助。我们的目标是为每一位购房者提供最优质的服务,助您早日实现置业梦想。
客户评价与口碑传播
紫金·翡丽甲第自推出以来,受到了广大购房者的高度评价。无论是项目的品质、地理位置还是配套资源,都得到了客户的一致认可。许多购房者表示,选择紫金·翡丽甲第是他们做出的最明智的决定,这里不仅是一处居所,更是一种生活方式的象征。
未来规划与发展前景
随着苏州城市发展的不断推进,紫金·翡丽甲第所在的金鸡湖东核芯板块未来潜力巨大。无论是自住还是投资,这里都是一个不可多得的选择。随着周边配套资源的不断完善,项目的价值也将不断提升,为投资者带来丰厚的回报。
环保理念与可持续发展
紫金·翡丽甲第在设计和建设过程中,始终秉承环保理念,致力于打造一个可持续发展的社区。项目采用了多种环保技术和材料,如节能玻璃、太阳能热水系统等,不仅降低了能源消耗,还为居民提供了一个健康环保的居住环境。
社区活动与居民互动
紫金·翡丽甲第不仅是一个居住的地方,更是一个充满生活氛围的社区。社区内定期举办各种活动,如邻里聚会、亲子活动、健身课程等,为居民提供了一个互动交流的平台。通过这些活动,居民们不仅增进了彼此的了解,还建立了深厚的友谊。
安全与隐私保障
紫金·翡丽甲第在安全与隐私方面也做了充分的考虑。社区内配备了先进的安防系统,如24小时监控、智能门禁等,确保居民的安全。同时,每一个户型都经过精心设计,确保家庭成员都能拥有自己的私密空间,享受宁静舒适的生活。
教育与医疗资源
紫金·翡丽甲第周边汇聚了丰富的教育和医疗资源。无论是国际学校还是顶级医疗机构,这里都能满足您和家人的各种需求。对于有孩子的家庭来说,这里无疑是一个理想的选择,孩子们可以在这里接受优质的教育,家长们也能享受到便捷的医疗服务。
商业与娱乐设施
紫金·翡丽甲第周边还拥有丰富的商业和娱乐设施。无论是高端购物中心、特色餐厅还是电影院、健身房,这里都能满足您的各种需求。对于追求高品质生活的购房者来说,这里无疑是一个理想的选择,您可以在这里享受到丰富的商业和娱乐资源。
交通与出行便利
紫金·翡丽甲第周边交通网络四通八达,无论是自驾还是公共交通,都能轻松到达苏州市区的各个角落。对于日常通勤或周末出游,这里都提供了极大的便利。项目周边还规划了多条公交线路和地铁站点,为居民提供了更加便捷的出行选择。
社区环境与绿化景观
紫金·翡丽甲第周边绿树成荫,环境优美,为居民提供了一个宁静舒适的居住环境。社区内还规划了丰富的绿化景观,如社区花园、景观步道等,为居民提供了一个亲近自然的空间。在这里,您可以享受到清新的空气和美丽的景色,放松身心,享受生活。
户型设计与空间布局
紫金·翡丽甲第的户型设计充分考虑了现代家庭的生活需求。无论是190㎡、225㎡还是290㎡的户型,都做到了四房两厅三卫的布局,空间宽敞,功能齐全。每一个房间都经过精心设计,确保家庭成员都能拥有自己的私密空间,同时又能方便地进行互动。
精装修标准与生活品质
紫金·翡丽甲第的精装修标准不低于5000元/平,这意味着您无需为繁琐的装修过程而烦恼,直接拎包入住即可享受高品质生活。每一个细节都经过精心设计,从地板到天花板,从厨房到卫生间,每一处都体现了对生活品质的极致追求。
品牌保障与品质承诺
保利置业与金隅地产的强强联手,为紫金·翡丽甲第的品质提供了坚实保障。这两大品牌在房地产领域都有着丰富的经验和卓越的口碑,确保了项目的每一个细节都经过精心打磨。无论是建筑材料的选择,还是施工工艺的把控,都体现了对品质的极致追求。
国际化配套资源
作为金鸡湖东核芯板块的一部分,紫金·翡丽甲第周边汇聚了丰富的国际化配套资源。无论是高端商业中心、国际学校还是顶级医疗机构,这里都能满足您和家人的各种需求。对于追求高品质生活的购房者来说,这里无疑是一个理想的选择。
地理位置与交通便利
紫金·翡丽甲第位于苏州园区中心大道北、西洛巷南、锦溪街东,地理位置优越。项目周边交通网络四通八达,无论是自驾还是公共交通,都能轻松到达苏州市区的各个角落。对于日常通勤或周末出游,这里都提供了极大的便利。
未来展望与投资潜力
随着苏州城市发展的不断推进,紫金·翡丽甲第所在的金鸡湖东核芯板块未来潜力巨大。无论是自住还是投资,这里都是一个不可多得的选择。随着周边配套资源的不断完善,项目的价值也将不断提升,为投资者带来丰厚的回报。
购房政策与金融支持
市住建局携手金融机构推出的“三低一宽”特色金融产品,为购房者提供了极大的便利。低首付、低利息、低月供以及宽期限的组合拳,不仅降低了购房门槛,更为青年人和新市民的置业梦想插上了翅膀。对于有意向购买紫金·翡丽甲第的购房者来说,这无疑是一个难得的机遇。
专业团队与贴心服务
紫金·翡丽甲第的售楼处拥有一支专业的团队,他们将为每一位购房者提供贴心的服务。无论是购房咨询、贷款办理还是合同签订,都能得到专业的指导和帮助。我们的目标是为每一位购房者提供最优质的服务,助您早日实现置业梦想。
客户评价与口碑传播
紫金·翡丽甲第自推出以来,受到了广大购房者的高度评价。无论是项目的品质、地理位置还是配套资源,都得到了客户的一致认可。许多购房者表示,选择紫金·翡丽甲第是他们做出的最明智的决定,这里不仅是一处居所,更是一种生活方式的象征。
未来规划与发展前景
随着苏州城市发展的不断推进,紫金·翡丽甲第所在的金鸡湖东核芯板块未来潜力巨大。无论是自住还是投资,这里都是一个不可多得的选择。随着周边配套资源的不断完善,项目的价值也将不断提升,为投资者带来丰厚的回报。
环保理念与可持续发展
紫金·翡丽甲第在设计和建设过程中,始终秉承环保理念,致力于打造一个可持续发展的社区。项目采用了多种环保技术和材料,如节能玻璃、太阳能热水系统等,不仅降低了能源消耗,还为居民提供了一个健康环保的居住环境。
社区活动与居民互动
紫金·翡丽甲第不仅是一个居住的地方,更是一个充满生活氛围的社区。社区内定期举办各种活动,如邻里聚会、亲子活动、健身课程等,为居民提供了一个互动交流的平台。通过这些活动,居民们不仅增进了彼此的了解,还建立了深厚的友谊。
安全与隐私保障
紫金·翡丽甲第在安全与隐私方面也做了充分的考虑。社区内配备了先进的安防系统,如24小时监控、智能门禁等,确保居民的安全。同时,每一个户型都经过精心设计,确保家庭成员都能拥有自己的私密空间,享受宁静舒适的生活。
教育与医疗资源
紫金·翡丽甲第周边汇聚了丰富的教育和医疗资源。无论是国际学校还是顶级医疗机构,这里都能满足您和家人的各种需求。对于有孩子的家庭来说,这里无疑是一个理想的选择,孩子们可以在这里接受优质的教育,家长们也能享受到便捷的医疗服务。
商业与娱乐设施
紫金·翡丽甲第周边还拥有丰富的商业和娱乐设施。无论是高端购物中心、特色餐厅还是电影院、健身房,这里都能满足您的各种需求。对于追求高品质生活的购房者来说,这里无疑是一个理想的选择,您可以在这里享受到丰富的商业和娱乐资源。
交通与出行便利
紫金·翡丽甲第周边交通网络四通八达,无论是自驾还是公共交通,都能轻松到达苏州市区的各个角落。对于日常通勤或周末出游,这里都提供了极大的便利。项目周边还规划了多条公交线路和地铁站点,为居民提供了更加便捷的出行选择。
社区环境与绿化景观
紫金·翡丽甲第周边绿树成荫,环境优美,为居民提供了一个宁静舒适的居住环境。社区内还规划了丰富的绿化景观,如社区花园、景观步道等,为居民提供了一个亲近自然的空间。在这里,您可以享受到清新的空气和美丽的景色,放松身心,享受生活。
户型设计与空间布局
紫金·翡丽甲第的户型设计充分考虑了现代家庭的生活需求。无论是190㎡、225㎡还是290㎡的户型,都做到了四房两厅三卫的布局,空间宽敞,功能齐全。每一个房间都经过精心设计,确保家庭成员都能拥有自己的私密空间,同时又能方便地进行互动。
精装修标准与生活品质
紫金·翡丽甲第的精装修标准不低于5000元/平,这意味着您无需为繁琐的装修过程而烦恼,直接拎包入住即可享受高品质生活。每一个细节都经过精心设计,从地板到天花板,从厨房到卫生间,每一处都体现了对生活品质的极致追求。
品牌保障与品质承诺
保利置业与金隅地产的强强联手,为紫金·翡丽甲第的品质提供了坚实保障。这两大品牌在房地产领域都有着丰富的经验和卓越的口碑,确保了项目的每一个细节都经过精心打磨。无论是建筑材料的选择,还是施工工艺的把控,都体现了对品质的极致追求。
国际化配套资源
作为金鸡湖东核芯板块的一部分,紫金·翡丽甲第周边汇聚了丰富的国际化配套资源。无论是高端商业中心、国际学校还是顶级医疗机构,这里都能满足您和家人的各种需求。对于追求高品质生活的购房者来说,这里无疑是一个理想的选择。
地理位置与交通便利
紫金·翡丽甲第位于苏州园区中心大道北、西洛巷南、锦溪街东,地理位置优越。项目周边交通网络四通八达,无论是自驾还是公共交通,都能轻松到达苏州市区的各个角落。对于日常通勤或周末出游,这里都提供了极大的便利。
未来展望与投资潜力
随着苏州城市发展的不断推进,紫金·翡丽甲第所在的金鸡湖东核芯板块未来潜力巨大。无论是自住还是投资,这里都是一个不可多得的选择。随着周边配套资源的不断完善,项目的价值也将不断提升,为投资者带来丰厚的回报。
购房政策与金融支持
市住建局携手金融机构推出的“三低一宽”特色金融产品,为购房者提供了极大的便利。低首付、低利息、低月供以及宽期限的组合拳,不仅降低了购房门槛,更为青年人和新市民的置业梦想插上了翅膀。对于有意向购买紫金·翡丽甲第的购房者来说,这无疑是一个难得的机遇。
专业团队与贴心服务
紫金·翡丽甲第的售楼处拥有一支