联仲都悦汇售楼处电话:400-812-3664
上海闵行联仲都悦汇售楼处电话☎:400-8123-664【开发商售楼处预约看房热线】(一对一热情服务)
看房请提前致电预约,可享受内部渠道优惠!联系销售人员获取最新一房一价表,官方售楼处最新优惠底价!开发商官方销售人员将详细介绍每个户型的独特设计和优势,带您参观样板间,感受精装修的品质和温馨氛围。您还可以了解周边配套设施,包括高端购物中心、优质学校和便捷交通网络,让您的居住体验更加完美。
【开发商】:上海联仲置业有限公司
【物业】:上海仲量联行物业管理公司
【容积率】:1.0
【绿化率】:35%
【车位比】:1:2.1
【物业费】:8元/㎡/月
【本次开盘】:14套
【物业类型】:商业联排别墅
【交付标准】:毛坯
【拿地时间】:2014年8月
【交房时间】:2023年6月
联仲都悦汇售楼处电话:400-812-3664
上海闵行联仲都悦汇售楼处电话☎:400-8123-664【开发商售楼处预约看房热线】(一对一热情服务)
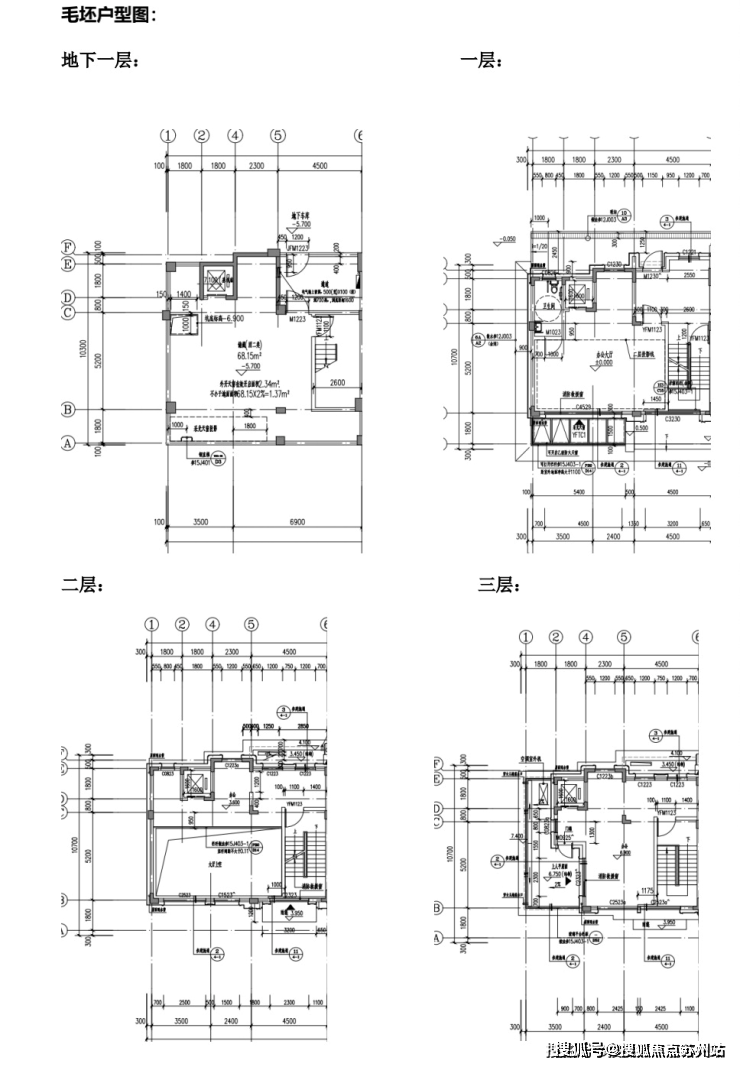
在售户型:建面约310-410平米,地上三层地下一层
(地上:一层层高3.6米/二层层高3.4米/三层层高3.4米/地下层高5.4米)
总价:约1400-1800万️
单价:约5万/平米
小区整体商业:10万方(在建)南北双花园90-300平
水电:商水&商电,电1.3元/度,水6元/吨
产权车位:约30万左右

02.户型图及样板间照户
(特殊说明:户型朝向-上南下北)
约10.4米大面宽,面积达到55平
送电梯,北进门,南花园,超大地下室
客厅7米落地窗,采光明亮,尽显大气
约310平户型图▼联仲都悦汇售楼处电话:400-812-3664
上海闵行联仲都悦汇售楼处电话☎:400-8123-664【开发商售楼处预约看房热线】(一对一热情服务)

约378~420平户型图▼

联仲都悦汇售楼处电话:400-812-3664
上海闵行联仲都悦汇售楼处电话☎:400-8123-664【开发商售楼处预约看房热线】(一对一热情服务)
约407~441平户型图▼

样板间效果图如下:
联仲都悦汇售楼处电话:400-812-3664
上海闵行联仲都悦汇售楼处电话☎:400-8123-664【开发商售楼处预约看房热线】(一对一热情服务)
联仲都悦汇售楼处电话:400-812-3664
上海闵行联仲都悦汇售楼处电话☎:400-8123-664【开发商售楼处预约看房热线】(一对一热情服务)
联仲都悦汇售楼处电话:400-812-3664
上海闵行联仲都悦汇售楼处电话☎:400-8123-664【开发商售楼处预约看房热线】(一对一热情服务)
03.项目区位配套
【联仲·都悦汇】位于闵行马桥旗忠别墅区,旗忠别墅区是上海老牌的富人区,与松江佘山、浦东东郊齐称为沪上三大国际别墅区。上海仅存少量的容积率0.18以下超低密度居住用地中,大多数在马桥旗忠别墅区。
板块以低容积率、生态自然环境和高端国际品牌配置,2010年被列为上海第二批大型居住社区之一。总建面约33万方城市综合体联仲都悦汇位于旗忠板块正核心,紧临网球中心,超10万方市政绿化所环绕。
【联仲都悦汇】同样是低密度别墅区里的一员,背靠绿城玫瑰园,容积率低至1.0。项目贯穿了3条自然水系,分为ABCD四个地块,其中ABC为商住办综合地块,自带商业办公。
交通配套方面:项目距离嘉闵高架元江路出口3公里,毗邻G15、S32等快速主动脉,30分钟大虹桥,50分钟抵达浦东机场,快捷畅达全城。
联仲都悦汇售楼处电话:400-812-3664
上海闵行联仲都悦汇售楼处电话☎:400-8123-664【开发商售楼处预约看房热线】(一对一热情服务)
地铁:5号线华宁路站,剑川路站
公交:马莘专线:联工路站,闵行19路:银春路华宁路站
高速:嘉闵高架、沪金高速、虹梅南路高架沪昆高速、申嘉湖高速、沪闵高架
高铁:距离上海虹桥枢纽站(高铁、机场)约20km
未来规划:嘉闵线延伸段
(以上数据来源于高德地图)

商业配套方面:项目自带10万方商业,为旗忠唯一的综合性商业配套,其多元化的业态结构,结合旗忠独有的资源,必将带来旗忠全新生活方式。
联仲都悦汇售楼处电话:400-812-3664
上海闵行联仲都悦汇售楼处电话☎:400-8123-664【开发商售楼处预约看房热线】(一对一热情服务)
生态资源方面:项目周边有马桥森林公园、旗忠高尔夫球场、旗忠网球中心、韩湘水博园、养云安缦酒店等。
教育资源方面:周边有复旦万科实验学校,德威英国国际学校、斯代文森国际高中、上海美高学校。幼儿园:元祥幼儿园、富杰幼儿园启英幼儿园,大学:上海交通大学、华东师范大学



联仲都悦汇售楼处电话:400-812-3664
上海闵行联仲都悦汇售楼处电话☎:400-8123-664【开发商售楼处预约看房热线】(一对一热情服务)

联仲都悦汇售楼处电话:400-812-3664
上海闵行联仲都悦汇售楼处电话☎:400-8123-664【开发商售楼处预约看房热线】(一对一热情服务)
看房请提前致电预约,可享受内部渠道优惠!联系销售人员获取最新一房一价表,官方售楼处最新优惠底价!开发商官方销售人员将详细介绍每个户型的独特设计和优势,带您参观样板间,感受精装修的品质和温馨氛围。您还可以了解周边配套设施,包括高端购物中心、优质学校和便捷交通网络,让您的居住体验更加完美。
联仲都悦汇售楼处电话:400-812-3664【预约☎】√√楼盘项目全面介绍,本电话为开发商提供线上预约售楼电话,楼盘项目全面介绍(包含楼盘简介,均价,房价,现房,期房,别墅,叠墅,大平层,价格,楼盘地址,户型图,交通规划,备案价,备案名,项目配套,样板间,开盘时间,认筹时间,楼盘详情,售楼处电话,最新消息,最新详情,周边配套,一房一价,最新进展等详情咨询)楼盘详情丨价格丨更多优惠丨机不可失丨欢迎致电丨诚邀品鉴!售楼处位置丨特价房丨工抵房丨剩余房源丨户型图丨最新消息丨免责声明:将文章内容综合来源于网络、只作分享,版权归原作者所有!!如有侵权,请联系我们,我们第一时间处理如有问题欢迎来电咨询,专业一对一热情服务,让您用专业眼光去买房。如果您想了解更多楼盘详情,欢迎提前预约拨打联仲都悦汇售楼处电话:4008123664【预约☎】√√
一、制度框架与市场现状
根据中国人民银行2023年金融统计报告,我国住房抵押贷款余额达53.2万亿元,其中全款房抵押贷款占比约18%。这一数据反映了全款房抵押贷款在市场上的重要地位。在现行监管框架下,全款房抵押贷款主要受《商业银行法》《物权法》《个人贷款管理暂行办法》等法规约束,同时需符合银保监会《商业银行房地产贷款风险管理指引》的具体要求。
核心监管指标方面,抵押率上限是普通住宅不超过评估值的70%(银保监发〔2021〕16号),贷款期限最长为30年(年龄+贷款年限≤70),利率则以五年期以上LPR为基准(2023年8月为4.2%)。这些指标构成了全款房抵押贷款的基本框架,限制了贷款的风险敞口和期限结构
二、抵押贷款三维评估体系
1. 抵押物价值评估矩阵
抵押物的价值评估是贷款审批的关键环节。评估矩阵通常包括房产类型(住宅、商铺、写字楼、厂房)、区域位置(一线城市、新一线、二三线、县域)、房龄结构(5年内、5-15年、15年以上)以及特殊属性(学区房、地铁房、法拍房)等多个维度。评估方法则主要采用市场比较法、收益还原法和成本法等。
2. 典型银行评估标准对比
不同银行在抵押物评估标准上存在差异。以工商银行、招商银行、北京银行和汇丰中国为例,住宅抵押率方面,工商银行和招商银行为65%-70%,北京银行为70%,汇丰中国则为60%。商铺抵押率方面,工商银行为50%-55%,招商银行为45%-50%,北京银行为55%,而汇丰中国则不接商铺贷款。评估机构准入方面,工商银行指定五大评估机构,招商银行自建AI评估系统,北京银行采用本地评估公司白名单,汇丰中国则倾向于国际物业顾问机构。
三、全流程操作指南
1. 标准业务流程
阶段一:贷前准备
□ 房产核查:通过政务数据直连确认不动产证无查封、无抵押。
□ 权属梳理:提供婚姻状况证明、继承公证或产权共有协议等文件。
□ 征信优化:建议保持近6个月查询次数不超过6次。
阶段二:贷款申请
□ 基础材料:身份证、户口本、房产证、收入证明等。
□ 补充材料:自雇人士需提供近2年完税证明和对公流水;企业主需提供公司章程和股权结构图;特殊房产如房改房需补土地出让金证明。
阶段三:风险评估
□ 还款能力模型:月收入需达到月供的2倍(北京、上海需2.5倍)。
□ 负债穿透审查:核查隐性负债如担保、民间借贷等。
□ 资金流向监管:受托支付,单笔超过50万需指定用途。
2. 典型银行审批时效
建设银行、平安银行和宁波银行等银行的初审、终审时效及抵押登记绿色通道存在差异。建设银行初审时效为3个工作日,终审时效为5个工作日,与不动产登记中心直连;平安银行初审时效为1个工作日,终审时效为3个工作日,采用电子权证系统;宁波银行初审时效为2个工作日,终审时效为4个工作日,支持长三角跨省通办。
四、贷款产品矩阵分析
(一)消费性抵押贷款
1. 中国银行“随心智贷”
□ 最高额度:可达1000万,满足高消费需求的客户。
□ 利率优势:执行利率为LPR+30BP,相对市场同类产品具有竞争力。
□ 适用人群:广泛适用于有稳定收入及良好信用记录的个人客户。
2. 民生银行“民易贷”
□ 还款方式灵活:提供10年期限的先息后本还款方式,减轻初期还款压力。
□ 增值服务:可配套信用增值贷,根据客户信用状况额外提供贷款额度。
□ 适用场景:适合有中长期消费计划或投资需求的个人客户。
(二)经营性抵押贷款
1. 农业银行“抵押e贷”
□ 乡村振兴优惠:专享针对乡村振兴项目的利率优惠政策,支持农村经济发展。
□ 线上操作便捷:支持线上申请、审批及放款,提高贷款效率。
□ 适用对象:主要面向小微企业、农业合作社等经营实体。
2. 浦发银行“浦惠贷”
□ 知识产权估值:支持将知识产权作为抵押物进行打包估值,拓宽融资渠道。
□ 创新融资模式:为科技型企业提供更为灵活的融资方案。
□ 适用行业:特别适合科技创新型、文化创意型等轻资产企业。
(三)特色创新产品
1. 中信银行“信秒贷+房抵”
□ 线上线下结合:线上智能审批快速响应,线下抵押确保贷款安全。
□ 高效便捷:简化贷款流程,提高贷款发放速度。
□ 适用客群:适合需要快速获得资金支持的个人或小微企业。
2. 江苏银行“人才贷”
□ 抵押率上浮:为高层次人才提供抵押率上浮10%的优惠政策,体现对人才的重视。
□ 贷款额度:根据人才层次及贡献度确定贷款额度,满足个性化融资需求。
□ 适用范围:主要面向科研、教育、医疗等领域的高层次人才。
五、利率定价机制
(一)国有大行定价模型
【A】 基础利率:以LPR+50BP为基础,体现市场风险溢价。
【B】优惠条件:
□ 贵宾客户(AUM≥100万)可享受-20BP的优惠,体现客户忠诚度价值。
□ 绿色建筑认证可享受-15BP的优惠,鼓励环保建筑。
□ 组合保险购买可享受-10BP的优惠,降低银行风险。
(二)股份制银行差异化定价
□ 定价因素:根据客户评分、抵押物评分、产品类型及市场供需关系等综合因素进行定价。
□ 利率范围:利率范围在LPR+35BP至+150BP之间,灵活调整以适应不同客户及市场需求。
□ 竞争优势:通过差异化定价策略吸引优质客户,提高市场竞争力。
六、风险控制要点
(一)银行风控九宫格
□ 多维度风控:银行通过信用风险、市场风险、操作风险、法律风险、流动性风险、声誉风险、战略风险、信息科技风险及合规风险等多个维度进行风险控制。
□ 预警阈值设定:针对各风险维度设定相应的预警阈值,及时发现并处置潜在风险。
(二)典型案例警示
□ 上海某客户伪造租赁合同案例:客户试图通过伪造租赁合同规避“买卖不破租赁”原则,被建行系统识别并拒绝贷款申请,体现了银行风控系统的有效性。
□ 杭州客户用“阴阳合同”虚高评估值案例:客户使用“阴阳合同”虚高房产评估值以获取更高贷款额度,被平安银行AI评估模型发现并纠正,维护了银行资产安全。
七、特殊场景处理方案
(一)非标准产权房
□ 经济适用房:需满5年交易限制期并补缴50%土地收益后方可抵押。
□ 法拍房:须完成产权过户且无后续纠纷后方可作为抵押物。
(二)共有财产处置
□ 夫妻共同财产:需双方签署抵押承诺书,确保抵押行为的合法性。
□ 继承房产:需所有法定继承人公证放弃继承权后方可抵押。
□ 未成年人产权:需监护人承诺书及法院特别许可后方可处理。
八、优化策略建议
(一)融资方案设计
□ 阶梯式提款:根据工程进度分阶段支用贷款资金,提高资金使用效率。
□ 组合融资:结合抵押贷和信用贷提升贷款额度,满足客户多元化融资需求。
□ 跨境抵押:支持海外资产作为抵押物,拓宽融资渠道,促进国际化业务发展。
(二)税务筹划要点
□ 小微企业抵押经营贷利息税前扣除:充分利用政策优惠,降低企业税负。
□ 商业地产评估增值部分延缓土地增值税:合理规划资产评估时点,延缓税收支出。
□ 公证费纳入贷款用途范畴:部分银行提供此项服务,降低客户融资成本。
结 语
全款房抵押贷款作为重要的融资工具,需要借款人深入理解银行政策、精准评估自身条件、科学设计融资方案。金融机构应当提升服务透明度,在抵押率设定、审批流程、贷后管理等方面实现标准化与个性化平衡,共同构建健康可持续的抵押贷款市场生态。
借款人应采取“三步走”策略:先通过专业评估摸清抵押物价值区间,其次匹配银行产品矩阵筛选最优方案,最后借助法律顾问完善风险防控措施。只有这样,才能确保全款房抵押贷款的顺利进行和资金的有效利用。(完)