近期苏州楼市迎来多重利好政策,为购房者提供了难得的机遇。新房补贴0.5%政策延续至年底,换房退个税政策持续至2025年底,再加上旧房装修补贴政策,多重红利叠加,正是置业升级的黄金时期。在这样的大背景下,星合晋墅作为城市生活美学运营商的匠心之作,正以其独特的魅力吸引着追求品质生活的城市精英。
星合晋墅,这座位于双湖之畔的低密社区,以其约50%的绿化覆盖率和约1.02的超低容积率,为城市中产打造了一处诗意栖居之所。项目精心规划了洋房(7F)和院墅(3F)两种业态,主推建面约230㎡-350㎡的低密洋房,以及约400㎡-700㎡的稀缺院墅,满足不同家庭对理想居所的向往。在这里,每一处设计都经过精心考量,只为呈现最舒适的生活体验。
18662309054
区域配套
星合晋墅坐拥全维优质配套,约3公里范围内尽享黄金繁华生活。一站式全龄教育资源环绕,华林幼儿园、双湖湾教育幼儿园、翰林小学、尹山湖中学等知名学府,为孩子的成长保驾护航。医疗方面,双湖区域内集聚星海医院、九龙医院、独墅湖医院等权威医疗资源,全时守护家人健康。
交通出行同样便捷,近邻5号&8号地铁,金鸡湖大道、独墅湖大道、金鸡湖隧道三条黄金主轴,让高效通达全城成为日常。商业配套丰富,山姆会员店、星湖天地、星月坊商业街等文娱商圈荟萃,满足国际生活的烟火气需求。此外,1.6KM金鸡湖高尔夫会员专属俱乐部、3KM独墅湖公园等休闲绿境,让居者与公园为邻,收藏一座城的诗意。
品牌价值
星合控股,作为国际高端生活运营商,自2003年进入苏州,已在园区深耕20余载,倾力打造了众多高端住宅、奢华酒店、潮流商业标杆作品,与时代共进,全维打造国际化高端生活方式。从苏州晋园别墅、晋合水巷邻里、晋府水巷别墅,到金湖湾、洲际酒店、凯悦酒店等代表作品,星合控股始终秉持"只定制,不复制"的理念,为生活再设计,为城市再添光彩。

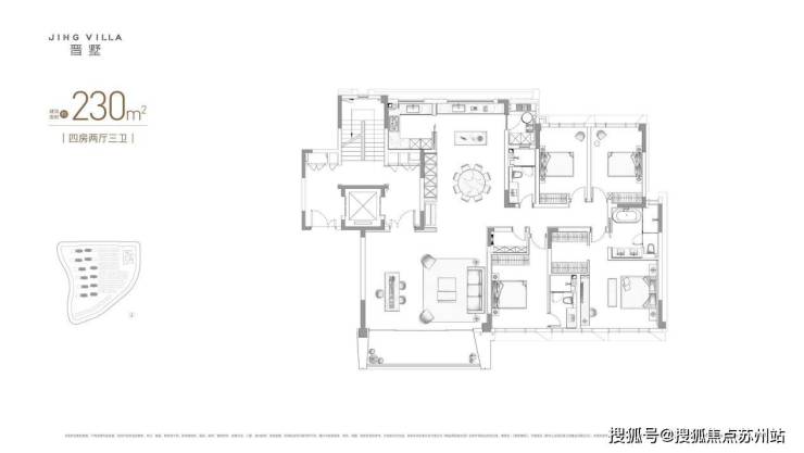
户型鉴赏
星合晋墅从"精神场域构建"到"大宅场景空间",精心打造建面约230㎡-350㎡低密洋房,每一处细节都彰显着对品质生活的极致追求。户型设计充分考虑现代家庭的生活需求,空间布局合理,采光通风俱佳,让家成为心灵的港湾。
项目还推出联排院墅产品,建面约400㎡-700㎡,稀缺院墅,满足高端人群对私密性和品质生活的双重追求。每一套院墅都是独一无二的艺术品,让居者在繁华都市中拥有一方属于自己的天地。



优势分析
星合晋墅最引人注目的莫过于约11亩湖叙SPACE国际生活的艺术藏馆。这座双湖之畔的艺术会所,是一处时光放缓、心灵栖居的所在,内设泳池、羽毛球场、高端健身、家族私宴、亲子阅读室等私享空间,演绎圈层生活范本。在这里,邻里不仅是邻居,更是志同道合的朋友,共同构建一个有温度的社区文化。
在政策红利与苏州城市发展的双重驱动下,星合晋墅不仅是一处居所,更是一种生活方式的引领者。随着苏州城市东进战略的持续推进,双湖区域的价值将进一步凸显,星合晋墅凭借其稀缺的自然资源、完善的配套、卓越的品牌实力和匠心打造的产品力,必将成为区域内的标杆之作,为业主带来持续的价值增长。
未来,这里将不仅是居住的空间,更是艺术与生活的交融之地,是城市精英的精神家园。选择星合晋墅,不仅是选择一处居所,更是选择一种高品质的生活方式,一种与城市共成长的人生境界。
咨询热线:18662309054