近期,各地纷纷出台了一系列楼市利好政策,包括降低首付比例、优化贷款利率、提供人才购房补贴等,为购房者带来了实实在在的优惠。这些政策的出台,不仅减轻了购房者的经济压力,也为房地产市场注入了新的活力。在这样的大背景下,选择一处理想的理想家园,成为了许多家庭的重要考量。今天,就让我们一同走进【星合晋墅】项目,感受这座城市生活美学运营商带来的独特魅力。
基本信息
【星合城市生活美学运营商】只定制 不复制
星合晋墅项目拥有约50%的绿化覆盖率,容积率仅为约1.02,这意味着小区环境非常舒适,居住密度低,能够给业主带来更加宽敞、宜居的生活空间。项目业态包括洋房(7层)和院墅(3层),满足不同家庭的需求。主推建面约230㎡-350㎡的低密洋房,以及约400㎡-700㎡的稀缺院墅,无论是追求品质生活的年轻家庭,还是注重私密性的高端人士,都能在这里找到心仪的家。
咨询热线:18662309054
18662309054
区域配套
全维优质配套随心享 约3公里黄金繁华境
一站式全龄教育 书香涵养未来 项目周边教育资源丰富,涵盖了从幼儿园到中学的知名学府,包括华林幼儿园(东华林街)、双湖湾教育幼儿园、翰林小学、尹山湖中学等,为孩子的成长提供了优质的教育环境。
优质医疗资源 全时护航健康 在双湖区域内,集聚了星海医院、九龙医院、独墅湖医院等权威医疗机构,为居民的健康提供了全方位的保障。
双轨三轴枢纽 高效通达全城 项目地理位置优越,近邻5号和8号地铁线路,同时拥有金鸡湖大道、独墅湖大道、金鸡湖隧道三条黄金主轴,无论是日常通勤还是周末出行,都能轻松实现高效交通便利。
文娱商圈荟萃 国际生活的烟火气 周边商业配套齐全,山姆会员店、星湖天地、星月坊商业街等商业综合体,满足了居民日常购物、餐饮、娱乐等全方位需求。
与公园为邻 收藏一座城的诗意 项目周边有1.6KM金鸡湖高尔夫会员专属俱乐部、3KM独墅湖公园等休闲绿境,让业主在繁忙的都市生活中,也能享受到自然与诗意。
品牌价值
星合控股 国际高端底蕴 为生活再设计
星合控股自2003年进入苏州,已经在园区深耕20余载,倾力打造了众多高端住宅、奢华酒店、潮流商业标杆作品,与时代共进,全维打造国际化高端生活方式。其代表作品包括苏州晋园别墅、晋合水巷邻里、晋府水巷别墅、金湖湾、洲际酒店、凯悦酒店等,每一个作品都彰显了品牌的卓越品质与独特魅力。
约11亩湖叙SPACE 国际生活的艺术藏馆
项目内的双湖之畔艺术会所,是一处时光放缓、心灵栖居的所在,内部设有泳池、羽毛球场、高端健身、家族私宴、亲子阅读室等私享空间,为业主演绎圈层生活范本,让每一位业主都能在这里找到属于自己的生活方式。
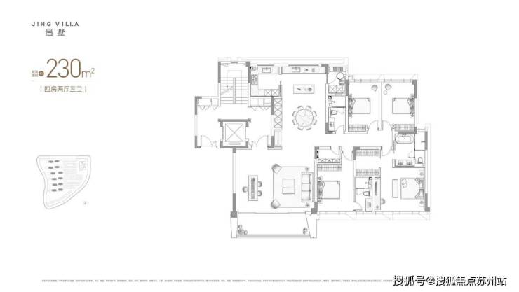
户型鉴赏
从"精神场域构建"到"大宅场景空间"
建面约230㎡-350㎡低密洋房
联排产品



优劣势分析
优势:
低密度社区:容积率仅约1.02,绿化覆盖率高达50%,居住环境舒适宜人。
优质配套:周边教育资源丰富,医疗资源完善,交通便利,商业配套齐全。
品牌保障:星合控股深耕苏州20余年,拥有丰富的开发经验和高端品质保证。
稀缺产品:洋房和院墅产品面积较大,适合高端家庭需求。
圈层生活:艺术会所等配套设施,为业主提供高品质的社交和生活空间。
劣势:
价格较高:作为高端住宅项目,价格相对较高,门槛较高。
位置相对偏远:虽然交通便利,但距离市中心有一定距离。
户型面积较大:对于小家庭而言,可能空间过大,不够经济实用。
随着城市发展的不断推进,区域价值的持续提升,【星合晋墅】项目所处的板块将迎来更加美好的发展前景。在政策利好的加持下,这里将成为集居住、教育、医疗、商业于一体的综合性宜居区域。对于选择【星合】的业主而言,不仅拥有了一个高品质的家,更拥有了一份不断增值的资产。在这里,家与城将实现美好共生,让每一位业主都能享受到城市发展带来的红利,实现居住与房产投资的完美结合。
咨询热线:18662309054