苏州金鸡湖别墅苏州 双湖顶豪:晋墅!展厅正式公开!最快7月开盘,楼面积58000元/平!

搜狐焦点苏州站

2025-06-12 20:37:52

购房群

买房如何避坑,加入购房群,看看他们怎么说

立即进群

刚刚!苏州顶豪圈层

翘首以盼的星合双湖别墅项目

案名正式公布——就叫:晋墅

以1.02超低容积率、326席联排+洋房

新加坡顶奢血统三大基因,未开先火!

目前展厅已经公开,最快7月就开卖

咨询电话:18936159932

作为园区双湖板块近十年来罕见的低密墅居作品,「晋墅」 洋房建面230/290/350㎡,别墅预计450-700㎡左右,喜欢亲们可以关注起来,销售已经正式进场。

据悉洋房总价预计1500万级,联排总价3000万级。

扫码登记掌握一手消息

置业顾问会第一时间联系你

咨询电话:18936159932

根据规划,星 合荣域西项目拟建35栋7F洋房+3F联排产品,其中23栋3F联排、12栋7F大平层洋房。

作为新加坡星合控股的迭代之作,「晋墅」延续了晋合金湖湾、晋园别墅等顶豪基因,并由新加坡SCDA事务所操刀设计,以“艺术性与私密性平衡”为核心理念。

而且对比周边世茂铜雀台(10.4万/㎡)、九龙仓国宾花园(11.5万/㎡)等二手房价格,入市或将掀起新一轮“顶豪抢购潮”。

立面银白色铝板+陶板组合,垂直格栅与悬挑结构设计,打造光影交错的现代艺术立面,材质标准远超同类豪宅。

全装修标准不低于5000元/㎡,空调、地暖、新风三大件全配,打造“拎包入住”的总统级居住体验。

其中据说 洋房面积大概在约230/290/350㎡左右,联排大概约450-700㎡左右!

从总图上看,项目未来社区主入口以及物业配套用房在 西华林街上物业配套用房包含 泳池会所,风雨连廊等。

B1#洋房南立面,层高3.2米。

一梯两户设计

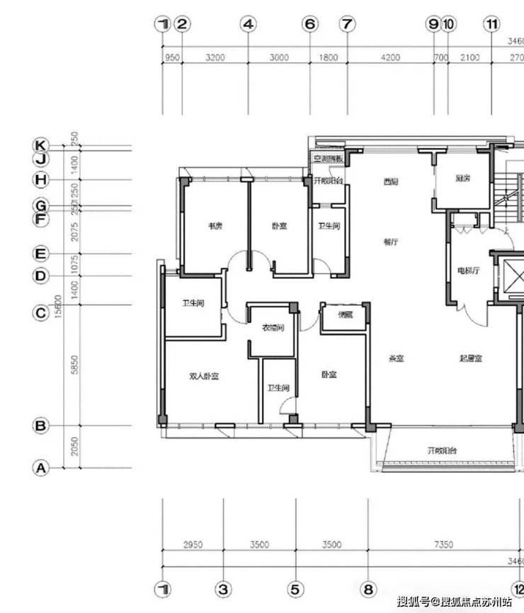
建面 约230㎡户型,4房3卫,南向面宽17.3米,中西双厨,豪华主卧套。

7.35米的南向宽厅(客厅+茶室厅),豪华双人主卧套面宽接近6米,卫生间全明。

装标方面,全装修住宅,装修标准 不低于5000元/平

星合荣域花园西项目,即苏园土挂(2024)03号地块。

是2024年9月土拍中,星合控股以总价51.98亿竞得, 成交楼面价58000元/㎡,与建屋联袂打造。

星合荣域西地块位于园区双湖核心,东延路南、西华林街东,坐拥独墅湖一线湖景,西眺金鸡湖大酒店,是苏州公认的低密豪宅区。

地块南侧为绿地,视野开阔;周边交通便利,距地铁8号线东延路站1公里,邻瑞广场1.4公里;紧邻苏州大学、西交利物浦大学等高教区,配套优质。整体而言,该地块是园区近年来稀缺的高品质住宅用地。

项目目前展厅已经公开,销售进场,最快7月份开卖,喜欢的提前关注起来。

咨询电话:18936159932

全部

相关资讯

报名成功
稍后会有专业的置业顾问联系您
返回楼盘

频道导航

返回首页

看房小程序

APP下载

电话拨通后,请您手动拨打分机号

确定拨打电话

电话号码:

分机号:(可能需要拨分机号)