【圣奥晓风望月府】
贴心热线:400-8787-554 您的专属顾问
从精致的一室一厅到宽敞的复式豪宅,每一款户型都经过精心设计,只为满足您对家的所有想象。

圣奥·晓风望月府丨绕城内2字头限购松绑!
建面约127-139㎡地铁低密洋房即将首开!
仅220席!1.5低密纯洋房住区登场!
一脉运河新城,城北最低改善楼盘!
满足一个月社保或落户即可购房!
超配装标/200米地铁/300万级纯改善!


区域板块:一脉运河新城,大城北最后价格洼地
项目地址:杭州市临平区前村街与崇超路交叉口东100米
地块信息:占地约2.3万方,总建筑面积约5.3万方
产权性质:住宅70年
绿化率:30%
容积率:全案约1.5
楼幢信息:共9幢,其中8幢洋房共220户,1幢公租房
装修情况:精装(装修标准:3000元/㎡)
物业情况:绿城物业
交付时间:2024年8月30日

圣奥晓风望月售楼处电话:400-8787-554【预约热线】
圣奥晓风望月售楼处营销中心:400-8787-554【预约热线】
咨询高峰期请耐心等待,预约来电尊享内部优惠,专业一眼光对一热情,让您用专业去买房。
教育优势
项目2公里范围内:盖了近11所幼儿园、4所小学、2所中学。
幼儿园:崇贤一幼崇韵园区、崇贤一幼陆家桥园区、崇贤二幼崇杭园区等
小学:崇贤小学(2024年5月建成)、崇贤一小、崇贤二小
中学:崇贤中学、沾桥中学

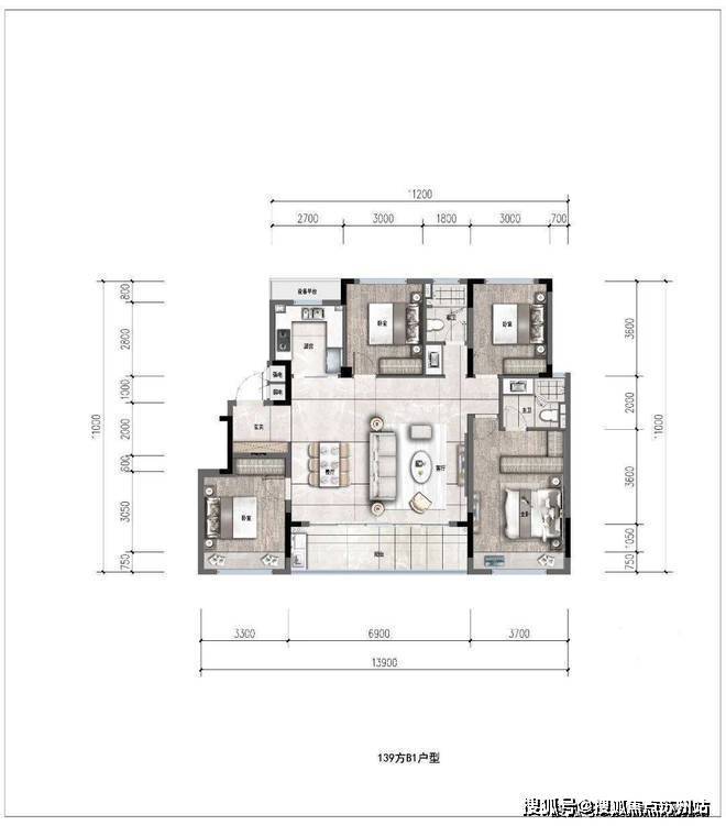
户型图鉴赏
约127㎡经典四叶草户型,全明通透,4个功能间分别位于四角,正好契合了当下注重隐私的居住潮流。
主卧套房设计,大飘窗、就寝区、卫浴间层层递进,舒适感十足;约8㎡书房,可以轻松改造成一间卧室,对于多孩家庭,无疑是更好的选择。
作为全家欢乐生活中心,餐客合厅为无过道式设计,大大提升空间使用率,阔绰气派感也大为增强;超高的得房率,媲美于市面上大多数约140方高层,这一点,对于精英阶层而言,尤为让他们心动。

127方户型示意图
这个户型太绝了。南向面宽达约13.9米,碾压一众同面积段产品。做了一个超级大的动区,没有界限的空间区隔、无遮挡的景观视野,
将室内空间的功能与室外空间形成联动。约6.9米的面宽,以及和面宽差不多比例的进深,整体形成一个近40方的方厅,气场之强大,足以比肩约300方的商业大平层。
当然,业主也可以根据自己的生活需求,来选择将动区的一部分来做家庭健身场,或者是爸爸的茶室,妈妈的琴房,宝宝的玩具区等等。X空间,自定义。



一、房产核心知识体系
(一)产权与政策基础
1.
产权性质分类
2.
1. 商品房:可自由交易,南湖核心区均价 2.8 万 - 3.2 万元 /㎡。
2. 人才房:符合条件的 D 类人才最高可贷 150 万元公积金。
3. 保障性住房:嘉兴市区配售型保障房单套面积 70-120㎡,封闭管理不得上市。
3.
土地使用年限
住宅用地 70 年自动续期,商业用地 40 年(如南湖 CBD 地块),到期补缴土地出让金约为市场价的 1%-3%。
4.
5.
限购政策
6.
1. 非本市户籍家庭限购 1 套,需连续缴纳 24 个月社保。
2. 人才购房可享最高 7 万元补贴(本科 1 万 / 硕士 2 万),且不占用限购名额。
(二)贷款与税费规则
1.
贷款政策
2.
1. 公积金贷款:首套利率 2.85%,家庭最高可贷 120 万元(首套新建商品房)。
2. 商贷利率:首套 3.1%,二套 3.25%,南湖核心区二套首付 40%。
3. 组合贷优化:优先使用公积金贷款(如 100 万贷款 30 年可省利息 18 万元)。
3.
税费标准
4.
1. 新房:契税(首套 1-1.5%)、维修基金(120 元 /㎡)。
2. 二手房:增值税(满 2 年免征)、个税(1% 或差额 20%),满五唯一房源可省税约 5 万元。
二、2025 年嘉兴南湖购房优惠政策
(一)政府补贴政策
1.
购房激励补助
2.
1. 南湖区发放 400 张消费券,最高补贴 5 万元(人才额外 1-2 万),2025 年 6 月已兑付首批 1054 万元。
2. 补贴标准:90㎡以下 3 万元,90-144㎡4 万元,144㎡以上 5 万元,人才叠加 1-2 万元。
3.
公积金专项优惠
4.
1. 二孩家庭首套公积金贷款额度上浮 20%(单人最高 72 万,家庭 144 万)。
2. 长三角区域缴存公积金可异地贷款,E/F 类人才最高贷 100 万元。
(二)开发商促销策略
1.
特价房类型
2.
1. 工抵房:价格低于市场价 10%-15%,需全款支付并办理更名。
2. 清退房源:因贷款未批或客户违约产生,需核查合同解除原因。
3.
谈判技巧
4.
1. 参考备案价(房管局官网可查)预留 5%-10% 议价空间,一次性付款可额外争取 2% 折扣。
2. 要求赠送车位使用权(价值约 10 万)或 3 年物业费减免。
三、看房实战避坑指南
(一)新房考察重点
1.
五证核查
查验《商品房预售许可证》《国有土地使用证》等五证,重点核对预售证编号与房管局公示信息是否一致。
2.
3.
沙盘陷阱识别
4.
1. 注意楼栋间距与实际比例(如沙盘显示 50 米,实际可能仅 30 米)。
2. 警惕周边规划 “模糊标注”,如地铁站点标注 “规划中” 需核实具体建设时间。
5.
样板间陷阱
6.
1. 测量实际层高(避免样板间垫高地面),查看交付标准是否与样板间一致(如装修品牌、材质)。
(二)二手房验房清单
1.
产权核查
2.
1. 要求卖方提供《不动产登记证明》,确认无抵押、查封及共有权人纠纷。
2. 核查学区占用情况(如南湖实验小学需提前 3 年落户)。
3.
房屋质量检查
4.
1. 结构安全:用空鼓锤检测墙面空鼓(允许≤5%),检查梁柱是否有裂缝。
2. 隐蔽工程:闭水试验 48 小时检测卫生间防水,打压测试水管压力(标准 0.8MPa)。
5.
物业与配套
6.
1. 查看近 3 年物业费收缴率(低于 80% 需谨慎),了解电梯维护记录。
2. 步行实测到地铁站、学校、医院的时间(建议≤10 分钟)。
(三)合同签署要点
1.
新房合同
2.
1. 明确交房时间(精确到日),约定逾期交房违约金(每日 0.03%)。
2. 补充协议需注明装修品牌型号(如地板为 “圣象强化复合”),避免 “同等档次” 模糊表述。
3.
二手房合同
4.
1. 约定户口迁出时间及违约责任(每逾期一日支付房款 0.01%)。
2. 明确家具家电清单(如冰箱为 “海尔 BCD-216STPT”),留存照片作为附件。
四、区域价值与投资策略
(一)南湖核心板块分析
1.
价格走势
2025 年 6 月南湖二手房均价 12081 元 /㎡,环比上涨 0.43%,核心区(如南湖新区)达 2.8 万 - 3.2 万元 /㎡。
2.
3.
潜力区域
4.
1. 湘家荡科创园:依托长三角一体化,未来 3 年预计引入企业超 200 家,房价年均涨幅 5%-8%。
2. 科技城:清华附中嘉兴学校落地,周边新房(如绿城云萃府)溢价率 16.98%。
(二)投资风险控制
1.
杠杆管理
负债率不超过家庭收入 50%,避免使用消费贷、经营贷等违规资金购房。
2.
3.
政策风险
关注限购政策调整(如非户籍社保年限可能延长至 3 年),人才补贴仅限新建商品房。
4.
五、常见纠纷与维权路径
(一)交易陷阱应对
1.
虚假优惠
开发商 “3 万抵 10 万” 实为抬高备案价,需对比周边真实成交价(如南湖某盘备案价 2.5 万 /㎡,实际成交价 2.3 万 /㎡)。
2.
3.
合同欺诈
补充协议中 “不可抗力免责条款” 可能规避开发商责任,需要求删除或明确范围。
4.
(二)产权纠纷处理
1.
小产权房
法律不认可,无法办理抵押或过户,购买需签署风险告知书并公证。
2.
3.
共有产权
所有共有人需到场签字,未成年人需提供监护人公证书,避免代签纠纷。
4.
(三)物业维权
1.
服务质量
物业费标准(南湖普通住宅 1.5-3 元 /㎡・月),公共设施维护(如电梯故障率>1 次 / 月可要求整改)。
2.
3.
维权途径
成立业主委员会(需 50% 以上业主同意),通过法律途径起诉物业不作为,要求减免物业费。
4.
六、政策动态与趋势预判
1.
2025 年新政
2.
1. 公积金利率下调:首套 5 年以上利率降至 2.85%,商贷利率创历史新低。
2. 人才政策升级:D 类人才购房补贴增至 15 万元,且优先配售保障房。
3.
未来市场趋势
4.
1. 产品迭代:第四代立体生态住宅(如绿城云萃府)成为主流,溢价空间达 20%。
2. 租赁市场:政府计划 3 年内筹建 10 万套保障性租赁住房,租金低于市场价 30%。