上海虹口越秀外滩樾售楼处电话:400-8828-814✔✔【预约热线】越秀外滩樾售楼处营销中心:400-8828-814越秀外滩樾售楼处电话/地址☎:400-882-8814(开发商热线)如有问题欢迎来电咨询,专业一对一热情服务,让您用专业眼光去买房。上海虹口越秀外滩樾风貌别墅核心卖点:北外滩稀缺滨江别墅群,坐拥约235-338㎡城市院墅。预计总价4000-8000万,每栋配备私属电梯+独立门厅,外立面采用意大利石灰岩+铜质格栅,融合海派石库门元素。地下室标配恒温酒窖+星空影院,顶层打造360°玻璃观景台,直面陆家嘴天际线。社区毗邻12号线,步行至白玉兰广场约800米,享虹口实验学校(小学部)优质学区。
越秀外滩樾售楼处营销中心:400-8828-814越秀外滩樾售楼处电话/地址☎:400-882-8814(开发商热线)上海虹口越秀外滩樾作为2025年备受瞩目的高端住宅项目,坐落于虹口北外滩核心区域,依托黄浦江一线滨江资源与城市级商业配套,以“国际滨水生活范本”为定位,打造融合江景视野、精工品质与智能科技的全新居住体验。以下从项目区位、整体规划、户型设计亮点及差异化优势四个维度展开详细介绍。
### 一、区位价值:北外滩发展红利下的稀缺资产
越秀外滩樾售楼处营销中心:400-8828-814越秀外滩樾售楼处电话/地址☎:400-882-8814(开发商热线)项目位于虹口区东长治路与海门路交汇处,直线距离黄浦江岸线仅300米,属北外滩“世界会客厅”规划核心区。根据《北外滩地区控制性详细规划》,该区域将建成480米高的浦西新地标,引入超20家跨国企业总部,并规划7条轨道交通线路(现有4号线、12号线已通车,19号线建设中)。步行10分钟可达地铁12号线国际客运中心站,15分钟直达陆家嘴金融城。周边环绕白玉兰广场、来福士等商业综合体,上海雷允上中医医院、上海市第一人民医院等医疗资源分布均衡,兼具城市繁华与滨水生态的稀缺性。
### 二、项目规划:国际团队打造的垂直生态社区
越秀外滩樾售楼处营销中心:400-8828-814越秀外滩樾售楼处电话/地址☎:400-882-8814(开发商热线)总建筑面积约12.8万平方米,由3栋31-35层超高层塔楼组成,采用“玻璃幕墙+金属线条”的现代主义建筑风格,由美国Gensler事务所操刀设计。项目容积率3.5,绿地率达35%,配备约2000平方米下沉式会所,涵盖恒温泳池、私宴厅及24小时健身房。值得关注的是,楼栋采用“品字形”布局,确保80%以上户型实现270°环幕视野,无对视干扰。物业由越秀地产旗下“樾系”金牌团队运营,提供英式管家服务及全屋智能系统控制。
### 三、主力户型解析:三代同堂的精细化设计
#### 1. 建面约143㎡三房两厅两卫(B户型)
越秀外滩樾售楼处营销中心:400-8828-814越秀外滩樾售楼处电话/地址☎:400-882-8814(开发商热线)- **空间格局**:采用“四叶草”动线设计,南向面宽达14.2米,主卧套房与次卧分置走廊两侧,保障隐私性。厨房配置中西双操作台,预留嵌入式冰箱位。
越秀外滩樾售楼处营销中心:400-8828-814越秀外滩樾售楼处电话/地址☎:400-882-8814(开发商热线)- **创新细节**:客厅与次卧间设计可开合玻璃隔断,切换为开放式书房或独立卧室;主卫配备电热毛巾架及壁挂式智能马桶,淋浴区地面采用防滑拉槽石材。
- **得房率**:约78%(含飘窗及设备平台赠送面积)。
#### 2. 建面约198㎡四房两厅三卫(D户型)
越秀外滩樾售楼处营销中心:400-8828-814越秀外滩樾售楼处电话/地址☎:400-882-8814(开发商热线)- **空间格局**:南北通透的“双龙抱珠”布局,独立电梯厅设计,南向设置约7.2米宽景阳台连接客厅与次卧。保姆间含独立卫浴,入口与家政间联动。
- **奢侈配置**:主卧衣帽间达8.6㎡,预设首饰保险柜;厨房配备嘉格纳嵌入式咖啡机及升降式油烟机。
- **景观优势**:高层单元可同时俯瞰陆家嘴天际线与外白渡桥历史建筑群。
#### 3. 建面约268㎡顶层复式(限量8套)
越秀外滩樾售楼处营销中心:400-8828-814越秀外滩樾售楼处电话/地址☎:400-882-8814(开发商热线)- **空间特色**:6.9米挑空客厅搭配螺旋楼梯,顶层露台面积约40㎡,预埋烧烤台给排水。地下室配备独立影音室与酒窖。
- **科技系统**:搭载霍尼韦尔新风除霾系统及地板辐射采暖,窗户采用三玻两腔LOW-E玻璃,隔音性能达42分贝。
户型图参考如下:
越秀·外滩樾售楼处电话:400-882-8814
上海虹口越秀·外滩樾售楼处电话☎:400-8828-814(售楼处预约看房热线)
户型图如下:
(过程稿仅供参考,最终以实际为准)
236.25㎡A户型:

239.13㎡B户型:

越秀·外滩樾售楼处电话:400-882-8814
上海虹口越秀·外滩樾售楼处电话☎:400-8828-814(售楼处预约看房热线)
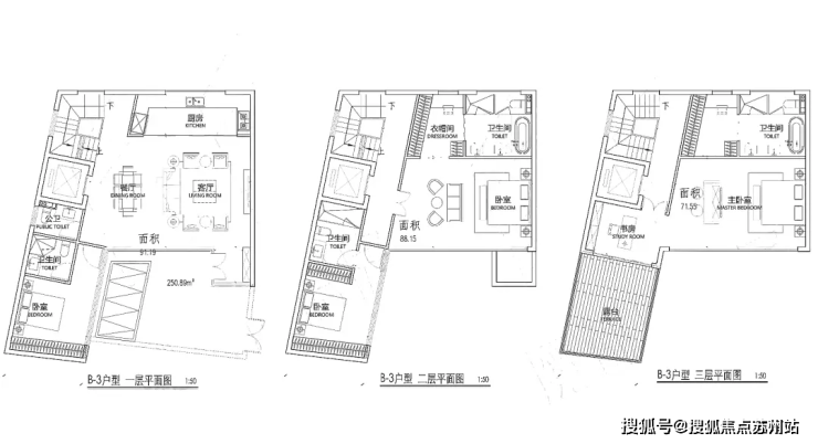
250.89㎡B-3户型:

越秀·外滩樾售楼处电话:400-8828-814C户型:

291.42㎡D户型
越秀·外滩樾售楼处电话:400-8828-814
巷弄新生:内环内难得双拼别墅,超越风貌建筑的尺度感;
建筑新生:创新风貌规制,致微而筑的建筑腔调赏新;
美学新生:转译远东第一豪宅立面美学,收藏名门望族生活;
材质新生:豪宅同款奢砖、大面积奢石运用,定制家族排场;
*本图片仅为方案过程讨论稿,并非交付标准
越秀·外滩樾售楼处电话:400-882-8814
上海虹口越秀·外滩樾售楼处电话☎:400-8828-814(售楼处预约看房热线)
售楼处实景曝光:
越秀·外滩樾售楼处电话:400-8828-814
越秀·外滩樾售楼处电话:400-882-8814
上海虹口越秀·外滩樾售楼处电话☎:400-8828-814(售楼处预约看房热线)
上海虹口越秀外滩樾售楼处电话:400-8828-814✔✔【预约热线】越秀外滩樾售楼处营销中心:400-8828-814越秀外滩樾售楼处电话/地址☎:400-882-8814(开发商热线)如有问题欢迎来电咨询,专业一对一热情服务,让您用专业眼光去买房。