联仲·都悦汇(上海)售楼处电话_联仲·都悦汇官方预约看房_楼盘详情-2026联仲·都悦汇最新房价-户型图(官方发布)售楼处电话_预约看房

搜狐焦点苏州站

2026-01-13 11:49:23

购房群

买房如何避坑,加入购房群,看看他们怎么说

立即进群

上海闵行联仲·都悦汇售楼处电话:400-8123-664【预约看房热线】联仲·都悦汇售楼处电话:4008123664【售楼处电话/地址】联仲·都悦汇售楼处电话:400-812-3664【开发商认证】

送100w装修!闵行·商墅联仲·都悦汇约310-411㎡法式商

墅!总价约1420万~1800

闵行·旗忠别墅富人区

联仲·都悦汇

建面310~411㎡商业联排别墅

法式干挂地上三层地下一层

带南北双花园90-300㎡

总价约:1420-1800万

实景现房不限购通燃气

上海闵行联仲·都悦汇

售楼处电话:400-8123-664(预约看房热线)

上海联仲·都悦汇官方售楼处电话:拨打4008123664即可咨询楼盘详情_房价、户型、周边配套及交通、地址

Shanghai Minhang Lianzhong·Duyuehui

Sales Office Hotline: 400-8123-664 (Appointment Viewing Hotline)

Official Sales Office Hotline of Shanghai Lianzhong·Duyuehui: Dial 400-8123-664 for inquiries about property details, pricing, unit types, surrounding amenities, transportation, and address.

上海闵行联仲·都悦汇售楼处电话:400-8123-664【预约看房热线】联仲·都悦汇售楼处电话:4008123664【售楼处电话/地址】联仲·都悦汇售楼处电话:400-812-3664【开发商认证】

感谢配合!

01.项目基本信息

【开发商】:上海联仲置业有限公司

【物业】:上海仲量联行物业管理公司

【容积率】:1.0

【绿化率】:35%

【车位比】:1:2.1

【物业费】:8元/㎡/月

【本次开盘】:14套

【物业类型】:商业联排别墅

【交付标准】:毛坯

【拿地时间】:2014年8月

【交房时间】:2023年6月

在售户型:建面约310-410平米,地上三层地下一层

(地上:一层层高3.6米/二层层高3.4米/三层层高3.4米/地下层高5.4米)

总价:约1400-1800万️

单价:约5万/平米

小区整体商业:10万方(在建)南北双花园90-300平

水电:商水&商电,电1.3元/度,水6元/吨

产权车位:约30万左右

上海闵行联仲·都悦汇售楼处电话:400-8123-664【预约看房热线】联仲·都悦汇售楼处电话:4008123664【售楼处电话/地址】联仲·都悦汇售楼处电话:400-812-3664【开发商认证】

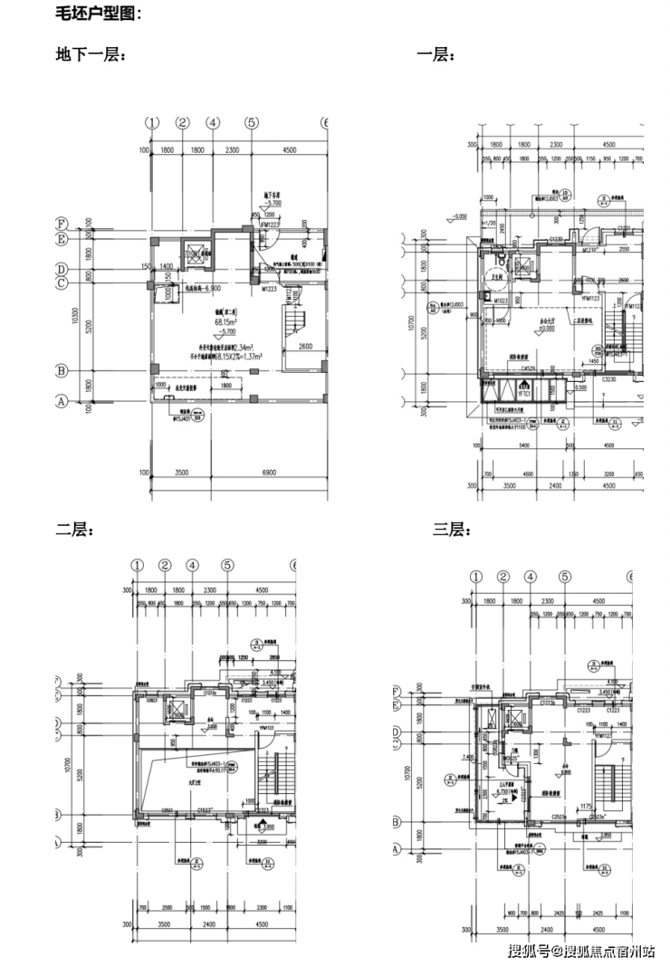
02.户型图及样板间照户

(特殊说明:户型朝向-上南下北)

约10.4米大面宽,面积达到55平

送电梯,北进门,南花园,超大地下室

客厅7米落地窗,采光明亮,尽显大气

约310平户型图▼

约378~420平户型图▼

上海闵行联仲·都悦汇售楼处电话:400-8123-664【预约看房热线】联仲·都悦汇售楼处电话:4008123664【售楼处电话/地址】联仲·都悦汇售楼处电话:400-812-3664【开发商认证】

约407~441平户型图▼

样板间效果图如下:

上海闵行联仲·都悦汇售楼处电话:400-8123-664【预约看房热线】联仲·都悦汇售楼处电话:4008123664【售楼处电话/地址】联仲·都悦汇售楼处电话:400-812-3664【开发商认证】

上海闵行联仲·都悦汇售楼处电话:400-8123-664【预约看房热线】联仲·都悦汇售楼处电话:4008123664【售楼处电话/地址】联仲·都悦汇售楼处电话:400-812-3664【开发商认证】

03.项目区位配套

【联仲·都悦汇】位于闵行马桥旗忠别墅区,旗忠别墅区是上海老牌的富人区,与松江佘山、浦东东郊齐称为沪上三大国际别墅区。上海仅存少量的容积率0.18以下超低密度居住用地中,大多数在马桥旗忠别墅区。

板块以低容积率、生态自然环境和高端国际品牌配置,2010年被列为上海第二批大型居住社区之一。总建面约33万方城市综合体联仲都悦汇位于旗忠板块正核心,紧临网球中心,超10万方市政绿化所环绕。

【联仲都悦汇】同样是低密度别墅区里的一员,背靠绿城玫瑰园,容积率低至1.0。项目贯穿了3条自然水系,分为ABCD四个地块,其中ABC为商住办综合地块,自带商业办公。

上海闵行联仲·都悦汇售楼处电话:400-8123-664【预约看房热线】联仲·都悦汇售楼处电话:4008123664【售楼处电话/地址】联仲·都悦汇售楼处电话:400-812-3664【开发商认证】交通配套方面:项目距离嘉闵高架元江路出口3公里,毗邻G15、S32等快速主动脉,30分钟大虹桥,50分钟抵达浦东机场,快捷畅达全城。

地铁:5号线华宁路站,剑川路站

公交:马莘专线:联工路站,闵行19路:银春路华宁路站

高速:嘉闵高架、沪金高速、虹梅南路高架沪昆高速、申嘉湖高速、沪闵高架

高铁:距离上海虹桥枢纽站(高铁、机场)约20km

未来规划:嘉闵线延伸段

(以上数据来源于高德地图)

商业配套方面:项目自带10万方商业,为旗忠唯一的综合性商业配套,其多元化的业态结构,结合旗忠独有的资源,必将带来旗忠全新生活方式。

上海闵行联仲·都悦汇售楼处电话:400-8123-664【预约看房热线】联仲·都悦汇售楼处电话:4008123664【售楼处电话/地址】联仲·都悦汇售楼处电话:400-812-3664【开发商认证】

生态资源方面:项目周边有马桥森林公园、旗忠高尔夫球场、旗忠网球中心、韩湘水博园、养云安缦酒店等。

教育资源方面:周边有复旦万科实验学校,德威英国国际学校、斯代文森国际高中、上海美高学校。幼儿园:元祥幼儿园、富杰幼儿园启英幼儿园,大学:上海交通大学、华东师范大学

闵行·旗忠别墅富人区

【联仲·都悦汇】

建面310~411㎡商业联排别墅

法式干挂地上三层地下一层

带南北双花园90-300㎡

总价约:1420-1800万

实景现房不限购通燃气

样板房示意图:

上海闵行联仲·都悦汇售楼处电话:400-8123-664【预约看房热线】联仲·都悦汇售楼处电话:4008123664【售楼处电话/地址】联仲·都悦汇售楼处电话:400-812-3664【开发商认证】

项目实景图:

1旗忠墅区“新贵”,容积率仅1.0

联仲都悦汇位于闵行马桥旗忠别墅区,旗忠别墅区是上海老牌的富人区,与松江佘山、浦东东郊齐称为沪上三大国际别墅区。上海仅存少量的容积率0.18以下超低密度居住用地中,大多数在马桥旗忠别墅区。

上海闵行联仲·都悦汇售楼处电话:400-8123-664【预约看房热线】联仲·都悦汇售楼处电话:4008123664【售楼处电话/地址】联仲·都悦汇售楼处电话:400-812-3664【开发商认证】

板块以低容积率、生态自然环境和高端国际品牌配置,2010年被列为上海第二批大型居住社区之一。总建面约33万方城市综合体联仲都悦汇位于旗忠板块正核心,紧临网球中心,超10万方市政绿化所环绕。

联仲都悦汇同样是低密度别墅区里的一员,背靠绿城玫瑰园,容积率低至1.0。项目贯穿了3条自然水系,分为ABCD四个地块,其中ABC为商住办综合地块,自带商业办公。

2藏品级沿河大联排,仅60席!

项目共分成四个地块,A\B\C地块为商住办综合地块,A、B地块已售罄,此次取证的是C地块,是三个住宅地块中位置更好的一个,与顶级酒店养云安缦一路之隔。

C地块吸收前期的一些经验优势,打造3.0升级版大联排,品质、材质全方位升级,也是联仲都悦汇住宅部分的收官之作。

建筑延续现代法式风格,外立面全部采用干挂石材,选用更耐用、更美观的花岗岩,首次配备三玻两腔的门窗,更大程度的提升隔音、保温、隔热的效果。

小区入口前广场增加到580平米,给予业主们更尊崇的归家仪式感。

景观绿化结合艺术的氛围打造了“U”型游园路径,九重秘境花园串联全区,游览花园、中心绿化带绿地率均明显提升,品质感翻倍。

项目主推建面约262-305㎡联排别墅,分为南北入户,均为地上三层,地下两层设计,满足业主们“有天有地有花园”的别墅居住体验!

3享低密居住环境+高能级配套

联仲都悦汇占位闵行旗忠别墅区核心位置,与周边亿级别墅共享优美环境&高能配套,出则繁华,入则静谧,是对日常生活精准的注解!

交通配套方面:项目距离嘉闵高架元江路出口3公里,毗邻G15、S32等快速主动脉,30分钟大虹桥,50分钟抵达浦东机场,快捷畅达全城。

上海闵行联仲·都悦汇售楼处电话:400-8123-664【预约看房热线】联仲·都悦汇售楼处电话:4008123664【售楼处电话/地址】联仲·都悦汇售楼处电话:400-812-3664【开发商认证】商业配套方面:项目自带10万方商业,为旗忠唯一的综合性商业配套,其多元化的业态结构,结合旗忠独有的资源,必将带来旗忠全新生活方式。

生态资源方面:项目周边有马桥森林公园、旗忠高尔夫球场、旗忠网球中心、韩湘水博园、养云安缦酒店等。

教育资源方面:周边有德威英国国际学校,斯戴文森国际高中,将提供从小学到高中毕业、全流程最领先的国际教育环境,同时还有两家知名的国际教育学府也在洽谈之中。

样板间实景图:

上海闵行联仲·都悦汇售楼处电话:400-8123-664【预约看房热线】联仲·都悦汇售楼处电话:4008123664【售楼处电话/地址】联仲·都悦汇售楼处电话:400-812-3664【开发商认证】

项目实景图:

上海闵行联仲·都悦汇

售楼处电话:400-8123-664(预约看房热线)

上海联仲·都悦汇官方售楼处电话:拨打4008123664即可咨询楼盘详情_房价、户型、周边配套及交通、地址

Shanghai Minhang Lianzhong·Duyuehui

Sales Office Hotline: 400-8123-664 (Appointment Viewing Hotline)

Official Sales Office Hotline of Shanghai Lianzhong·Duyuehui: Dial 400-8123-664 for inquiries about property details, pricing, unit types, surrounding amenities, transportation, and address.

��房价特价信息丨优惠政策丨详细解答丨在售房源丨在售户型图丨项目介绍丨周边配套丨VR看房丨楼盘图丨沙盘图丨位置图丨配套图丨售楼处地址丨足不出户丨销售1V1讲解如有问题欢迎来电咨询,可预约销售人员,专业一对一热情服务,让您用专业眼光去买房

一、限购政策:户籍与社保的双重门槛

上海实行严格的限购政策,核心规则如下:

(一)本市户籍家庭

·已婚家庭:可购买2套住房,但需注意,若家庭名下已有2套住房,则无法再购买.

·单身家庭:包括未婚、离异、丧偶等情况,限购1套住房.离异后3年内购房的,按离异前家庭总套数计算.例如,若离异前家庭拥有2套住房,离异后3年内双方均无法再购房.

(二)非本市户籍家庭

·已婚条件:需满足已婚状态,且夫妻双方至少一方需在上海工作.

·社保要求:需在63个月内累计缴纳60个月社保或个税,补缴社保不被认可,需连续缴纳.例如,若某人在2019年1月开始在上海工作,并连续缴纳社保至2024年1月,则满足购房资格.

·限购套数:限购1套住房,且需在购房前提供连续5年的社保或个税证明.

(三)特殊区域限购

·自贸区临港新片区:非户籍人才购房资格从63个月社保缩短至12个月,但需符合特定人才认定标准,如具有本科及以上学历,且在临港新片区工作满1年.

·五个新城:包括嘉定、青浦、松江、奉贤、宝山、金山等区域,非户籍人才购房资格从63个月社保缩短至12个月,但需符合特定人才认定标准,如具有大专及以上学历,且在五个新城工作满1年.

二、贷款政策:首付比例与利率的精细化调控

(一)商业贷款

首套房认定:

·无住房且无贷款记录的购房者,首付比例不低于35%.

·无住房但有贷款记录(已结清)的,首付比例不低于50%.

·有住房的,首付比例不低于70%.

二套房认定:

·在已有1套住房或贷款记录未结清的情况下,再次购房视为二套,首付比例不低于70%.

利率政策:

·当前首套房贷款利率为LPR-10BP(约3.55%),二套房为LPR+30BP(约3.95%).

·例如,若某购房者购买首套房,贷款金额为100万元,贷款期限为30年,则每月还款金额约为4,500元.

(二)公积金贷款

首套房:

·家庭最高贷款额度120万元,个人最高60万元.

·首付比例不低于20%.

二套房:

·家庭最高贷款额度100万元,个人最高50万元.

·首付比例不低于50%.

利率政策:

·首套房5年以下2.6%,5年以上3.1%.

·二套房5年以下3.025%,5年以上3.575%.

·例如,若某购房者购买首套房,贷款金额为100万元,贷款期限为30年,则每月还款金额约为4,200元.

三、税费政策:从契税到增值税的全面成本

(一)契税

首套房:

·90㎡以下1%.

·90㎡以上1.5%.

二套房:

·90㎡以下1%.

·90㎡以上2%.

三套房及以上:

·3%.

·例如,若某购房者购买首套房,面积为100㎡,总价为500万元,则需缴纳契税为500万元×1.5%=7.5万元.

(二)增值税及附加

满2年:

·普通住宅免征.

·非普通住宅按差额征收,计算公式为(本次交易价格-原购买价格)×5.3%.

未满2年:

·按全额5.3%征收.

·例如,若某购房者购买非普通住宅,本次交易价格为600万元,原购买价格为400万元,则需缴纳增值税及附加为(600万元-400万元)×5.3%=10.6万元.

(三)个人所得税

满五唯一:

·免征.

其他情况:

·按差额20%或全额1%征收.

·例如,若某购房者购买住房,本次交易价格为500万元,原购买价格为300万元,则需缴纳个人所得税为(500万元-300万元)×20%=40万元.

四、特殊政策:人才引进与多子女家庭的倾斜

(一)人才引进政策

临港新片区:

·符合条件的人才可享受社保年限缩短至12个月,优先选房等优惠.

·例如,某具有硕士学历的人才,在临港新片区工作满1年,即可享受购房资格.

五个新城:

·符合条件的人才可享受社保年限缩短至12个月,优先选房等优惠.

·例如,某具有本科学历的人才,在五个新城工作满1年,即可享受购房资格.

(二)多子女家庭政策

二孩及以上家庭:

·在购买首套住房时,可享受最高贷款额度上浮20%的优惠.

·例如,某二孩家庭购买首套房,家庭最高贷款额度可从120万元上浮至144万元.

契税补贴:

·部分区域对多子女家庭给予契税补贴,最高可达实际缴纳契税的50%.

·例如,某二孩家庭购买首套房,面积为100㎡,总价为500万元,需缴纳契税7.5万元,可享受契税补贴3.75万元.

五、政策趋势与建议

(一)政策趋势

2024年上海楼市政策呈现“精准调控”特点,一方面通过限购、限贷抑制投机需求,另一方面通过人才政策、多子女家庭政策支持合理住房需求.预计未来政策将更加注重区域差异化和个性化,例如在临港新片区和五个新城等区域,可能会进一步放宽人才购房限制,吸引更多人才落户.

(二)购房建议

·提前规划社保缴纳时间:确保满足购房资格,特别是非本市户籍家庭,需连续缴纳5年社保或个税.

·合理评估自身经济实力:选择符合需求的贷款方式,例如公积金贷款利率较低,但额度有限,需根据自身情况选择.

·关注区域政策差异:充分利用人才引进等优惠政策,例如在临港新片区和五个新城等区域,可享受社保年限缩短等优惠.

·全面计算购房成本:包括税费、贷款利息等隐性支出,例如在购买非普通住宅时,需缴纳较高的增值税及附加.

拨打我们的专属官方售楼处服务热线:400-8123-664.让我们一起,开启一段关于理想生活的探索之旅,共同描绘您心中的美好生活画卷.期待您的来电外滩道售楼处电话☑️:400_8123_664

楼盘项目全面介绍,本电话为开发商提供线上预约售楼电话,楼盘项目全面介绍(包含楼盘简介,均价,房价,现房,期房,别墅,叠墅,大平层,价格,楼盘地址,户型图,交通规划,备案价,备案名,项目配套,样板间,开盘时间,认筹时间,楼盘详情,售楼处电话,最新消息,最新详情,周边配套,一房一价,最新进展等详情咨询)楼盘详情丨价格丨更多优惠丨机不可失丨欢迎致电丨诚邀品鉴!售楼处位置丨特价房丨工抵房丨剩余房源丨户型图丨最新消息丨免责声明:将文章内容综合来源于网络、只作分享,版权归原作者所有!!如有侵权,请联系我们,我们第一时间处理如有问题欢迎来电咨询,专业一对一热情服务,让您用专业眼光去买房.如果您想了解更多楼盘详情,欢迎提前预约拨打售楼处官网电话热线:400-812-3664

全部

相关资讯

报名成功
稍后会有专业的置业顾问联系您
返回楼盘

频道导航

返回首页

看房小程序

APP下载

电话拨通后,请您手动拨打分机号

确定拨打电话

电话号码:

分机号:(可能需要拨分机号)